Sub 1.000 de garaje demolate în şase ani la Timişoara. Cât a plătit primăria despăgubiri
www.tion.ro - Timiş
Uşor de zis, greu de făcut! Demolarea garajelor din Timişoara nu a ajuns nici măcar la jumătate din cele inventariate în urmă cu nouă ani. Până acum, municipalitatea a cheltuit peste 150.000 de euro pentru a scăpa oraşul de astfel de construcţii. Evident, majoritatea au fost puse la pământ în cartierul în care locuieşte edilul-şef, care spunea că îşi doreşte să facă din Soarelui primul cartier liber de garaje din România.
Primarul Robu cere bani de la timişoreni: Donează pentru Monumentul Revoluţiei!
www.tion.ro - Timiş
Primăria Timişoara lansează o campanie de strângere de fonduri pentru Monumentul Revoluţiei, direct pe siteul instituţiei, iar primarul Nicolae Robu cere bani de la timişoreni, pe Facebook. Ideea monumentului este una veche, datează din 2014, dar a fost lăsată baltă pentru că primăria a avut alte priorităţi.
Ce trebuie sa ştii pentru a putea dona sange.
glasul-hd.ro - Hunedoara
Conditii de admisibilitate la donarea de sange Donatorul de sânge este orice cetăţean român cu domiciliul în România sau orice cetăţean al Uniunii Europene care are reşedinţa în România, în deplină stare de sănătate, care se supune regulilor prelevării de sânge total şi componente sanguine de origine umană. Pentru a deveni donator de sange trebuie …
Deva fara apa calda si caldura
glasul-hd.ro - Hunedoara
Conducerea Termocentralei Mintia anunta ca pentru eliminarea unei avarii la Electrocentrala Mintia, partea de termoficare, se va sista furnizarea incalzirii si a apei calde de consum in municipiul Deva in data de 05.11.2019, intre orele 8 –16. Sursa: Big FM Deva
Lovitură de teatru. Grupul german Bosch a decis să nu mai facă fabrica de maşini de spălat de la Simeria.
glasul-hd.ro - Hunedoara
Grupul german Bosch a renunţat la construcţia fabricii de maşini de spălat pe care o plănuise la Simeria, judeţul Hunedoara, o investiţie de 110 mil. euro. „BSH Hausgeräte GmbH a decis să nu-şi continue planurile pentru construcţia unei fabrici de maşini de spălat în Simeria până la o nouă notificare. Din cauza condiţiilor economice şi …
Accident între două Armonii. Vatmanul a patinat cu tramvaiul pe frunze
www.tion.ro - Timiş
Două tramvaie Armonia de pe liniile 6 şi 8 s-au ciocnit chiar în staţia de la Sala Olimpia. Vatmanul care era în garnitura din spate a patinat pe frunzele depuse pe linii, astfel că nu a putut opri tramvaiul la timp.
Pedeapsă de 25 de ani cu executare pentru individul care a decapitat un bărbat cu drujba
www.tion.ro - Timiş
Condamnare în primă instanţă pentru individul care a decapitat un bărbat cu drujba, la Sânandrei. Doru Sebastian Munteanu a fost condamnat la 25 de ani de închisoare cu executare şi plata unor despăgubiri în valoare de 130.000 de euro. Sentinţa nu este definitivă.
„Remains of the feast”, expoziţie interactivă ce oglindeşte societatea de consum şi risipă în care trăim
newsar.ro - Arad
Citeşte azi ce scriu ziarele de mâine!
Lovitură decisivă de la DNA înainte de alegeri! Dan Barna este terminat
newsar.ro - Arad
Informaţie-bombă prezentată de Mihai Gâdea în emisiunea Sinteza Zilei: dosarul penal care-l priveşte pe Dan Barna, redeschis de DNA pe 28 octombrie 2019, a fost clasat nelegal de DNA Alba, pe săvârşirea infracţiunilor de săvârşire sau prezentare cu rea credinţă a documentelor, ori declaraţii false, inexacte sau incomplete. Şefa DNA Alba, o prietenă a Laurei
Percheziţii la mai mulţi suspecţi de trafic cu ecstasy şi canabis, la Timişoara
www.tion.ro - Timiş
Percheziţii ale poliţiştilor timişoreni de la Crimă Organizată, marţi dimineaţă, în 9 locaţii din Timişoara. Oamenii legii au descins în casele unor indivizi suspectaţi de trafic de droguri de mare risc. Indivizii ar fi comercializat ecstasy şi canabis atât la nivel stradal cât şi în cluburi din oraş.
Nicolae Robu a deschis circulaţia pe Podul Eroilor: „Facem Timişoara mai tare ca oricând”
www.tion.ro - Timiş
O zi mai târziu decât era anunţat, Podul Eroilor a fost redeschis circulaţiei, marţi, imediat după ora 13. Primarul Nicolae Robu a ţinut să marcheze momentul în direct pe Facebook, filmat de consilierul personal Cătălin Iapă. Lucrările nu sunt finalizate însă, iar momentul a fost perturbat de vântul care bătea cu putere.
Cod galben de vânt în Bihor până după miezul nopţii
www.ebihoreanul.ro - Bihor
Administraţia Naţională de Meteorologie a emis, marţi seara, o avertizare imediată de cod galben de 'intensificări locale ale vântului cu viteze la rafală de 55...65 km/h', valabilă în mai multe judeţe, inclusiv în Bihor. Potrivit meteorologilor, 'la munte, vitezele la rafală vor atinge 90...100 km/h'.
Managerul Spitalului de Urgenţă, András-Nagy Róbert: „Ar trebui să fie regândite modalităţile de finanţare a spitalelor”
mesageruldecovasna.ro - Covasna
Vrei să fii notificat când apare un articol nou? Abonează-te prin e-mail
FOTO: ”Zeii Olimpului”, spectacol total la Balul Bobocilor ”Papiu” 2019
www.zi-de-zi.ro - Mureş
După cum este deja tradiţia, şi anul acesta Colegiul Naţional „Alexandru Papiu Ilarian” din Târgu-Mu
Proiectul de turism cultural al Teatrului „Andrei Mureşanu” continuă cu spectacolul „Dragonul de aur”
mesageruldecovasna.ro - Covasna
Vrei să fii notificat când apare un articol nou? Abonează-te prin e-mail
Note de călătorie: Fermecătoarea şi misterioasa Indochină (2)
mesageruldecovasna.ro - Covasna
Vrei să fii notificat când apare un articol nou? Abonează-te prin e-mail
Municipiul Sfântu Gheorghe rambursează anticipat împrumutul BERD; rata de îndatorare e zero, spune primarul
mesageruldecovasna.ro - Covasna
Vrei să fii notificat când apare un articol nou? Abonează-te prin e-mail
Ministrul Muncii, despre majorarea salariului minim: Mă voi consulta cu cei afectaţi din piaţa liberă
mesageruldecovasna.ro - Covasna
Vrei să fii notificat când apare un articol nou? Abonează-te prin e-mail
Loc nou de agrement în pregătire la Luduş
www.zi-de-zi.ro - Mureş
Cartierul Luduş Est este situat în zona veche a oraşului, acolo unde predominante sunt casele propri
Kelemen Hunor: Sper că nu va mai exista o astfel de campanie electorală niciodată; cei care au fugit de dezbateri subminează democraţia
mesageruldecovasna.ro - Covasna
Vrei să fii notificat când apare un articol nou? Abonează-te prin e-mail
Târg de cariere în domeniul ingineriei – miercuri şi joi, la UPB; participă peste 60 de companii
mesageruldecovasna.ro - Covasna
Vrei să fii notificat când apare un articol nou? Abonează-te prin e-mail
Candidaţii la alegerile prezidenţiale, invitaţi de Transparency International Romania să semneze un angajament de integritate
mesageruldecovasna.ro - Covasna
Vrei să fii notificat când apare un articol nou? Abonează-te prin e-mail
ONRC: 106.435 persoane fizice şi juridice, înmatriculate în primele nouă luni din 2019
mesageruldecovasna.ro - Covasna
Vrei să fii notificat când apare un articol nou? Abonează-te prin e-mail
Mai mult de jumătate dintre tinerii români colectează deşeurile selectiv (sondaj APPA)
mesageruldecovasna.ro - Covasna
Vrei să fii notificat când apare un articol nou? Abonează-te prin e-mail
Felicitări şi solicitări adresate premierului Orban şi noului guvern PNL, de Asociaţia Municipiilor din România
mesageruldecovasna.ro - Covasna
Vrei să fii notificat când apare un articol nou? Abonează-te prin e-mail
Meniul zilei
mesageruldecovasna.ro - Covasna
Vrei să fii notificat când apare un articol nou? Abonează-te prin e-mail
Un nou exercitiu “Miercurea Alarmelor”. Afla de la ce ora
ziarmm.ro - Maramureş
Miercuri dimineata, incepand cu ora 10.00, va avea loc un nou exercitiu “Miercurea Alarmelor”, anunta IGSU. Sirenele din tara vor emite semnalul „Alarma aeriana”, care are rolul de prevenire a populat
Cosmin Ghita, noul director general al SN Nuclearelectrica SA
www.ziuaconstanta.ro - Constanţa
Bursa de Valori a emis la data de 5 noiembrie 2019 un raport prin care se anunta numirea directrului general al SN Nuclearelectrica SA Societatea Nationala Nuclearelectrica S.A. SNN informeaza ...
O societate a contestat o licitatie a Spitalului de Boli Infectioase Constanta, apoi s-a razgandit. Iata concluzia CNSC!
www.ziuaconstanta.ro - Constanţa
Societatea Elta 90 Medical Research a renuntat la contestatia depusa la Consiliul National de Solutionare a Contestatiilor, impotriva deciziei atribuirii contractului aferent achizitiei unui extractor ...
O societate a contestat o licitatie a Spitalului de Boli Infectioase Constanta, apoi s-a razgandit. Iata concluzia CNSC!
www.ziuaconstanta.ro - Constanţa
Societatea Elta 90 Medical Research a renuntat la contestatia depusa la Consiliul National de Solutionare a Contestatiilor, impotriva deciziei atribuirii contractului aferent achizitiei unui extractor ...
Antoanela Manac, peripetii la Cupa Mondiala din Peru: Cand esti in forma cea mai buna, exact atunci se intampla sa patesti ceva!“ (galerie foto)
www.ziuaconstanta.ro - Constanţa
Sportiva constanteana Antoanela Manac a reprezentat Romania, alaturi de Felix Duchampt, la Cupa Mondiala de triatlon, care s-a desfasurat in Peru, la Lima. Cei doi au participat la concurs prin ...
Antoanela Manac, peripetii la Cupa Mondiala din Peru: Cand esti in forma cea mai buna, exact atunci se intampla sa patesti ceva!“ (galerie foto)
www.ziuaconstanta.ro - Constanţa
Sportiva constanteana Antoanela Manac a reprezentat Romania, alaturi de Felix Duchampt, la Cupa Mondiala de triatlon, care s-a desfasurat in Peru, la Lima. Cei doi au participat la concurs prin ...
Medalii pentru orasul Ovidiu la Campionatul National de Ashihara Karate
www.ziuaconstanta.ro - Constanţa
La Campionatul National de Ashihara Karate, intrecere care s-a disputat la Brasov, a fost reprezentat si orasul Ovidiu din judetul Constanta, pentru care au concurat 11 sportivi. In urma unor evolutii ...
Medalii pentru orasul Ovidiu la Campionatul National de Ashihara Karate
www.ziuaconstanta.ro - Constanţa
La Campionatul National de Ashihara Karate, intrecere care s-a disputat la Brasov, a fost reprezentat si orasul Ovidiu din judetul Constanta, pentru care au concurat 11 sportivi. In urma unor evolutii ...
Constanta, rol important in calificarea Nationalei de baschet 3X3 a Romaniei la Jocurile Olimpice de la Tokyo (galerie foto)
www.ziuaconstanta.ro - Constanţa
Prin calificarea directa la Jocurile Olimpice de la Tokyo 2020 cu echipa nationala feminina de baschet 3x3, Romania a atins o performanta istorica, dupa un sezon in care mobilizarea a fost ...
Constanta, rol important in calificarea Nationalei de baschet 3X3 a Romaniei la Jocurile Olimpice de la Tokyo (galerie foto)
www.ziuaconstanta.ro - Constanţa
Prin calificarea directa la Jocurile Olimpice de la Tokyo 2020 cu echipa nationala feminina de baschet 3x3, Romania a atins o performanta istorica, dupa un sezon in care mobilizarea a fost ...
Merita nota zece!“: Militarul Laurentiu Cobzaru, castigator la Garboavele Trail Run“ (galerie foto)
www.ziuaconstanta.ro - Constanţa
Militarul galatean Laurentiu Cobzaru politist militar la Centrul Secundar de Instruire pentru Lupta Smardan Galati nu a ratat nici cursa Garboavele Trail Run , fidel principiului sau de a se dedica ...
Merita nota zece!“: Militarul Laurentiu Cobzaru, castigator la Garboavele Trail Run“ (galerie foto)
www.ziuaconstanta.ro - Constanţa
Militarul galatean Laurentiu Cobzaru politist militar la Centrul Secundar de Instruire pentru Lupta Smardan Galati nu a ratat nici cursa Garboavele Trail Run , fidel principiului sau de a se dedica ...
Statie de carburanti, pe bulevardul I.C. Bratianu din municipiul Constanta. Ce a solicitat Lukoil Romania SA de la agentia de mediu
www.ziuaconstanta.ro - Constanţa
Lukoil Romania SA, care solicitase de la Agentia pentru Protectia Mediului Constanta aviz de mediu pentru construirea unei statii de carburanti - 3 pompe pe bulevardul I.C. Bratianu in municipiul ...
Statie de carburanti, pe bulevardul I.C. Bratianu din municipiul Constanta. Ce a solicitat Lukoil Romania SA de la agentia de mediu
www.ziuaconstanta.ro - Constanţa
Lukoil Romania SA, care solicitase de la Agentia pentru Protectia Mediului Constanta aviz de mediu pentru construirea unei statii de carburanti - 3 pompe pe bulevardul I.C. Bratianu in municipiul ...
Demersuri pentru construirea unui bloc de trei etaje in Palazu Mare. Neocampus SRL, unda verde de la APM Constanta
www.ziuaconstanta.ro - Constanţa
Neocampus SRL continua demersurile pentru realizarea investitiei imobiliare din Palazu Mare - complex rezidential D P 3E. Firma care solicitase aviz de mediu pentru devierea unui canal pluvial a primit ...
Demersuri pentru construirea unui bloc de trei etaje in Palazu Mare. Neocampus SRL, unda verde de la APM Constanta
www.ziuaconstanta.ro - Constanţa
Neocampus SRL continua demersurile pentru realizarea investitiei imobiliare din Palazu Mare - complex rezidential D P 3E. Firma care solicitase aviz de mediu pentru devierea unui canal pluvial a primit ...
ACROPO cumpara licente pentru diverse programe IT. Iata ce suma aloca! (document)
www.ziuaconstanta.ro - Constanţa
Autoritatea Competenta de Reglementare a Operatiunilor Petroliere Offshore la Marea Neagra ACROPO Constanta organizeaza o licitatie pentru achizitia de licente IT si programe de specialitate. ...
ACROPO cumpara licente pentru diverse programe IT. Iata ce suma aloca! (document)
www.ziuaconstanta.ro - Constanţa
Autoritatea Competenta de Reglementare a Operatiunilor Petroliere Offshore la Marea Neagra ACROPO Constanta organizeaza o licitatie pentru achizitia de licente IT si programe de specialitate. ...
Blocul de patru etaje ridicat de Petra Turnuri SRL pe strada Napoli, supraetajat
www.ziuaconstanta.ro - Constanţa
Petra Turnuri SRL a decis sa supraetajeze imobilul de pe strada Napoli din municipiul Constanta. Pe data de 4 noiembrie, Primaria Constanta a emis certificatul de urbanism nr. 4067 - Supraetajare imobil ...
Blocul de patru etaje ridicat de Petra Turnuri SRL pe strada Napoli, supraetajat
www.ziuaconstanta.ro - Constanţa
Petra Turnuri SRL a decis sa supraetajeze imobilul de pe strada Napoli din municipiul Constanta. Pe data de 4 noiembrie, Primaria Constanta a emis certificatul de urbanism nr. 4067 - Supraetajare imobil ...
Tablourile de la Topalu, supuse expertizei
www.ziuaconstanta.ro - Constanţa
Magistratii Curtii de Apel Galati, in completul C1A al Sectiei civile, format din judecatorii Irina Alexandra Boldea si Doru Benescu, au dispus inceperea expertizei in procesul ce priveste Colectia Dinu ...
Tablourile de la Topalu, supuse expertizei
www.ziuaconstanta.ro - Constanţa
Magistratii Curtii de Apel Galati, in completul C1A al Sectiei civile, format din judecatorii Irina Alexandra Boldea si Doru Benescu, au dispus inceperea expertizei in procesul ce priveste Colectia Dinu ...
Mai multe loturi situate pe strada Brest din Constanta, alipite de Impact Developer Contractor SA. Detalii despre investitie
www.ziuaconstanta.ro - Constanţa
Firma Impact Developer Contractor SA a obtinut pe data de 4 noiembrie de la Primaria Constanta un act de urbanism. Este vorba despre certificatul de urbanism nr. 4068, care consta in Alipire patru ...
Mai multe loturi situate pe strada Brest din Constanta, alipite de Impact Developer Contractor SA. Detalii despre investitie
www.ziuaconstanta.ro - Constanţa
Firma Impact Developer Contractor SA a obtinut pe data de 4 noiembrie de la Primaria Constanta un act de urbanism. Este vorba despre certificatul de urbanism nr. 4068, care consta in Alipire patru ...
Astazi ne aducem aminte de Aurel Vlaicu. 137 de la nasterea inginerului roman
www.ziuaconstanta.ro - Constanţa
Aurel Vlaicu n. 6 noiembrie 1882, Bintinti, langa Orastie, judetul Hunedoara - d. 13 septembrie 1913, Banesti, langa Campina a fost un inginer roman, inventator si pionier al aviatiei romane si ...
Astazi ne aducem aminte de Aurel Vlaicu. 137 de la nasterea inginerului roman
www.ziuaconstanta.ro - Constanţa
Aurel Vlaicu n. 6 noiembrie 1882, Bintinti, langa Orastie, judetul Hunedoara - d. 13 septembrie 1913, Banesti, langa Campina a fost un inginer roman, inventator si pionier al aviatiei romane si ...
Incepe modernizarea bulevardului Mamaia, pe sectorul cuprins intre I.G. Duca si strada Mircea cel Batran
www.ziuaconstanta.ro - Constanţa
Primaria Constanta anunta achizitia serviciului de dirigentie de santier pentru urmarirea verificarea lucrarilor de constructii, reparare si ranforsare din cadrul obiectivului Lucrari de ...
Incepe modernizarea bulevardului Mamaia, pe sectorul cuprins intre I.G. Duca si strada Mircea cel Batran
www.ziuaconstanta.ro - Constanţa
Primaria Constanta anunta achizitia serviciului de dirigentie de santier pentru urmarirea verificarea lucrarilor de constructii, reparare si ranforsare din cadrul obiectivului Lucrari de ...
Beneficiile consumului de gutui
www.ziuaconstanta.ro - Constanţa
Proaspete, gutuile sunt remedii naturiste pentru buna functionare a ficatului, dar si pentru afectiunile psihice. Iar pentru pacientii aflati in etapa de covalescenta, preparatele din gutui, precum ...
Beneficiile consumului de gutui
www.ziuaconstanta.ro - Constanţa
Proaspete, gutuile sunt remedii naturiste pentru buna functionare a ficatului, dar si pentru afectiunile psihice. Iar pentru pacientii aflati in etapa de covalescenta, preparatele din gutui, precum ...
Teren cumparat in 2004 si disputat in instanta 15 ani: Incurcaturi cu cetateni romano-americani, Primaria Constanta si altii
www.ziuaconstanta.ro - Constanţa
Au cumparat un teren ce provenea de la Primaria Constanta in 2004 si abia dupa aproape 15 ani mai exact, la finalul lui 2018 au devenit proprietari efectivi asupra lotului respectiv. Cazul pare ...
Teren cumparat in 2004 si disputat in instanta 15 ani: Incurcaturi cu cetateni romano-americani, Primaria Constanta si altii
www.ziuaconstanta.ro - Constanţa
Au cumparat un teren ce provenea de la Primaria Constanta in 2004 si abia dupa aproape 15 ani mai exact, la finalul lui 2018 au devenit proprietari efectivi asupra lotului respectiv. Cazul pare ...
Patru evenimente de marca, in cadrul Festivalului International al Muzicii si Dansului de la Constanta
www.ziuaconstanta.ro - Constanţa
Festivalul International al Muzicii si Dansului, editia 45, care a inceput pe 27 octombrie la Teatrul National de Opera si Balet Oleg Danovski , continua si in aceasta saptamana cu patru evenimente ...
#citesteDobrogea: Primari ai Medgidiei dupa Primul Razboi Mondial (IV) (galerie foto)
www.ziuaconstanta.ro - Constanţa
In perioada 1938-1940 si-a desfasurat activitatea in cadrul Primariei Medgidia Vasile Vasilescu, profesor, director de scoala si cetatean apreciat de comunitate, ce va detine mandatul de primar in ...
A fost semnat contractul pentru reabilitarea Cetatii Carsium. Iata care sunt firmele castigatoare! (galerie foto)
www.ziuaconstanta.ro - Constanţa
La finele sedintei extraordinare a Consiliului Judetean Constanta, presedintele CJC, Marius Horia Tutuianu, a semnat contractul privind proiectarea, executia de lucrari si asistenta tehnica pentru ...
La Muzeul National al Marinei Romane: Perenitate“ - expozitie dedicata Zilei Dobrogei
www.ziuaconstanta.ro - Constanţa
Sambata, 9 noiembrie 2019, incepand cu ora 11.00, la Muzeul National al Marinei Romane va avea loc vernisajul expozitiei Perenitate . Evenimentul, dedicat Zilei Dobrogei, reuneste pe simezele Salonului ...
Pomul vietii“, tematica lunii noiembrie la Muzeul de Arta Populara Constanta
www.ziuaconstanta.ro - Constanţa
Pomul Vietii - simbol stravechi cu puternice implicatii spirituale care exprima armonia dintre Divin si lumesc, dintre Cer si Pamant, dintre Creator si Creatie - a fost ales pentru tematica lunii ...
Spitalul Militar Constanta, reclamat de Expert Cleaning Consulting SRL la CNSC. Iata motivul!
www.ziuaconstanta.ro - Constanţa
Societatea Expert Cleaning Consulting SRL s-a adresat Consiliului National de Solutionare a Contestatiilor, contestand o licitatie publica organizata de Unitatea Militara 02175 Spitalul Militar ...
#DobrogeaAcademica: Conferinta despre Doua copii necunoscute ale «Celor 12 vise in talcuirea lui Mamer»“, la Academia Romana
www.ziuaconstanta.ro - Constanţa
Maine, in sala de consiliu a Academiei Romane, in ciclul Limba romana si relatiile ei cu cultura si istoria romanilor , dr. Cristinel Sava, cercetator la Departamentul de Limba Literara al Institutului ...
#DobrogeaDigitala Marturii de epoca privind istoria Dobrogei (1878-1947)“: Asta-zi, pestele este un aliment de lux, iar pescarul a devenit un fel de rob al comerciantului“
www.ziuaconstanta.ro - Constanţa
In volumul Marturii de epoca privind istoria Dobrogei 1878-1947 , am gasit printre interventiile jurnalistilor vremii un articol publicat in ziarul Dobrogea , V, nr. 129, din 16 iulie 1904, care ne ...
Rugbystul Kamil Sobota, de la Tomitanii Constanta, convocat la Nationala de seniori a Romaniei (galerie foto)
www.ziuaconstanta.ro - Constanţa
Echipa nationala de rugby seniori a Romaniei desfasoara in perioada 9 - 21 noiembrie, un stagiu de pregatire la Snagov, aceasta fiind prima actiune a primei reprezentative tricolore sub conducerea ...
Primarul Constantei, invins in instanta de un subaltern
www.ziuaconstanta.ro - Constanţa
Iuliana Voicu, sefa Serviciului Juridic din cadrul Primariei Constanta, a castigat definitiv procesul intentat Primarului Municipiului Constanta. Judecatorii Curtii de Apel Constanta au respins recursul ...
Proiectul Lecturi vizuale etnologice“ la aromanii din Balcani, lansat la Constanta
www.ziuaconstanta.ro - Constanţa
Muzeul de Arta Populara din Constanta a gazduit manifestatia national-culturala La fratii din Balcani. 6 foto-albume - Republica Albania Republica Macedonia de Nord . Evenimentul a fost moderat de ...
Fara unicitatea Dobrogei, suntem mai saraci ca popor: Dan Barna - Voi deschide o dezbatere nationala pentru a gasi acea solutie de reforma care se potriveste Romaniei“
www.ziuaconstanta.ro - Constanţa
Dan Barna este candidatul Aliantei 2020 USR-PLUS la alegerile prezidentiale din 10 noiembrie 2019. Candidatul USR-PLUS la cea mai inalta functie in stat a vorbit in cadrul unui interviu acordat cotidianului ...
Viorica Dancila (PSD) - Scopul Guvernului Orban este de a-i da lui Iohannis un nou mandat, nu de a guverna. Iar asta este un afront la democratie“
www.ziuaconstanta.ro - Constanţa
Presedintele PSD si candidatul social-democrat la alegerile prezidentiale, Viorica Dancila, a declarat, dupa investirea in Parlament a Guvernului Orban, ca a fost o zi neagra pentru democratie , in ...
Dan Barna la Constanta: Scaparea de spiritul lui Liviu Dragnea se face duminica, la vot, pentru ca spiritul lui e pe buletinul de vot si se numeste Viorica Dancila“ (galerie foto)
www.ziuaconstanta.ro - Constanţa
Dan Barna s-a aflat, ieri, intr-o vizita electorala la Constanta. El a stat de vorba cu alegatorii si s-a fotografiat cu constantenii. Candidatul USR-PLUS la alegerile prezidentiale considera ca ...
Cladiri emblematice ale Constantei ce vor beneficia de iluminat arhitectural (galerie foto)
www.ziuaconstanta.ro - Constanţa
Primaria municipiului Constanta consulta piata pentru determinarea valorii estimate a realizarii iluminatului arhitectural pentru anumite obiective de interes local din municipiul Constanta. Avand in ...
NEAMȚ: Accident cu victime în Piatra-Neamţ. Maşina a luat foc (FOTO)
www.stiri-neamt.ro - Neamţ
Echipajele Inspectoratului pentru Situaţii de Urgenţă (ISU) Neamţ au intervenit în această seară la un accident rutier în municipiul Piatra-Neamţ.
Cele mai bune motive pentru alegerea unor căşti wireless
www.oradesibiu.ro - Sibiu
Alegerea unor gadgeturi electronice poate fi un proces pasionant, care pune la contribuţie creierul şi imaginaţia umană. Cumpărarea unor căşti wireless sau a unui Iphone XS nu face excepţie de la această regulă nescrisă, determinând cumpărătorul să îşi alcătuiască un filtru propriu de motive pro şi contra. Căşti wired sau…
Luna octombrie a acestui an a fost cea mai caldă lună octombrie înregistrată vreodată în lume
ziarulunirea.ro - Alba
Prea ni s-a părut nouă că luna trecută am asistat la nişte temperaturi neaşteptat de ridicate, faţă de obicei. Ei bine, luna octombrie a anului 2019 a
Post vacant la Liceul Teoretic Traian din Constanta. Nu se solicita vechime
www.ziuaconstanta.ro - Constanţa
Liceul Teoretic Traian Constanta, organizeaza concurs pentru ocuparea postului vacant de muncitor intretinere un post , corespunzator functiilor contractuale, in baza H.G. nr. 286 2011 si a H.G. nr. ...
Viaţă sănătoasă prin kinetoterapie şi vitamina Soarelui
www.oradesibiu.ro - Sibiu
Pentru a beneficia de o viaţă sănătoasă, corpul uman necesită îngrijire continuă. Terapia prin mişcare sau kinetoterapia, se adresează atât persoanelor care se află într-o terapie de recuperare medicală dar şi sportivilor sau pur şi simplu celor care doresc să aibă parte de un corp cu funcţii motorii la maximum.…
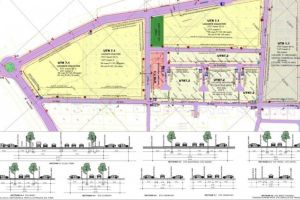
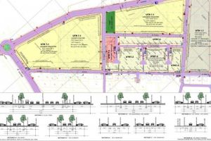
O nouă zonă de agrement în Satu Mare: terenuri de tenis, parcări şi alei pietonale
portalsm.ro - Satu Mare
O nouă zonă de agrement în Satu Mare: terenuri de tenis, parcări şi alei pietonale
NEAMȚ: Accident cu victime în Piatra-Neamţ. O maşină a luat foc (ultima oră)
www.stiri-neamt.ro - Neamţ
Echipajele Inspectoratului pentru Situaţii de Urgenţă (ISU) Neamţ au intervenit în această seară la un accident rutier în municipiul Piatra-Neamţ.
Simona Halep cere MTS reluarea finantarii Federatiei Romane de Tenis
ziarmm.ro - Maramureş
Jucatoarea Simona Halep a solicitat, marti, prin intermediul unui mesaj postat pe pagina sa de facebook, ca Ministerul Tineretului si Sportului sa reia finantarea in regim de urgenta a Federatiei Roma
Pro Romania: Deputatii care au votat investirea Guvernului Orban – sanctionati; prim-vicepresedintii si vicepresedintii, suspendati
ziarmm.ro - Maramureş
Biroul Executiv al Pro Romania a decis, luni, ca deputatii care au actionat in afara deciziilor luate in interiorul partidului si au votat pentru investirea Guvernului Orban sa fie revocati din functi
Pentru că pacienţii grav bolnavi sunt trimişi la clinici învecinate la Spitalul Judeţean de Urgenţă Alba Iulia s-a făcut doar o prelevare de organe în 6 ani de la înfiinţarea centrului acreditat
ziarulunirea.ro - Alba
Pentru că pacienţii grav bolnavi sunt trimişi la clinici învecinate, la Spitalul Judeţean de Urgenţă Alba Iulia s-a făcut doar o prelevare de organe în 6
Nouă ani de la moartea lui Adrian Păunescu! Vizita marelui poet la Satu Mare, în 1977
portalsm.ro - Satu Mare
Nouă ani de la moartea lui Adrian Păunescu! Vizita marelui poet la Satu Mare, în 1977
Judecatorii Curtii de Apel Ploiesti au dat in judecata Curtea de Apel Ploiesti. Vezi aici motivul
ph-online.ro - Prahova
Tensiuni majore in Justitie dupa publicarea Deciziei Curtii Constitutionale a Romaniei nr. 417/2019 privind completele specializate. Judecatorii...
Cine ocupa functia de director economic provizoriu al ROMGAZ
www.ziuaconstanta.ro - Constanţa
Bursa de Valori a emis la data de 5 noiembrie 2019 un raport prin care se anunta numirea unui director economic provizoriu al SNGN Romgaz SA Consiliul de Administratie S.N.G.N. Romgaz S.A., intrunit in ...
Investirea noului Guvern Orban, motiv de glumă pentru presa maghiară
ziarulunirea.ro - Alba
Făcându-se aluzie la similitudinea de nume dintre premierii României şi Ungariei, Ludovic Orban şi respectiv Viktor Orbán, în presa maghiară au început să
Butelia le-a distrus casa
ziarulargesul.ro - Argeş
Azi dimineaţă, o gospodărie din Uda, satul Chiriţeşti, a fost cuprinsă de flăcări, iar către localitatea precizată a pornit un echipaj al pompierilor de la Garda de Intervenţie Vedea. Când a ajuns, echipa de stingere a constatat că focul, izbucnit iniţial la o anexă, s-a propagat şi la casa de...
Cod galben de vânt în Bihor până după miezul nopţii
www.ebihoreanul.ro - Bihor
Administraţia Naţională de Meteorologie a emis, marţi seara, o avertizare imediată de cod galben de 'intensificări locale ale vântului cu viteze la rafală de 55...65 km/h', valabilă în mai multe judeţe, inclusiv în Bihor. Potrivit meteorologilor, 'la munte, vitezele la rafală vor atinge 90...100 km/h'.
Tinerii sportivi bihoreni au fost premiaţi la Gala "Campionii Viitorului"
www.ebihoreanul.ro - Bihor
Tinerii sportivi orădeni cu rezultatele cele mai bune în anul 2018 au fost premiaţi, luni, în cadrul ediţiei 2019 a Galei 'Campionii Viitorului', desfăşurată la Arena 'Antonio Alexe'.
Faimosul spectacol de balet „Cocoşatul de la Notre-Dame” ajunge la Satu Mare
portalsm.ro - Satu Mare
Un spectacol extraordinar de balet, având ca subiect romanul Notre-Dame de Paris de Victor Hugo, va avea o reprezentaţie în data de 13 noiembrie la Satu Mare, în regia şi coregrafia talentatului
Solaris, ofertant unic pentru autobuzele electrice ale primariei Craiova
www.oltenasul.ro - Dolj
Related Posts via CategoriesCAO va sista furnizarea apei potabile in data de 05.11.2019, intre orele 10:00 – 16:00, in zona cuprinsa intre str. Calea Bucuresti, str. A.I.Cuza, str. Aries, str. Caracal, Bld. Decebal, Cartierul LapusPrimăria Craiova ACORDĂ O IMPORTANȚĂ MAJORĂ ÎNVĂȚĂMÂNTULUIPiaţă Volantă şi săptămâna aceasta, în centrul CraioveiPrimăria Craiova acordă facilităţi fiscale pentru obligaţiile bugetare restante la 31.12.2018Bani pentru linia […]
Un botoşănean a îndurat o durere cumplită de spate timp de 45 de ani. Abia acum a ajuns la spital
www.botosaninews.ro - Botoşani
...
Doliu la ULBS – A murit profesorul universitar Lucian Vinţan
www.oradesibiu.ro - Sibiu
Lucian Vinţan, unul din academicienii sibieni şi profesor la Facultatea de Inginerie a ULBS, a murit în cursul zilei de marţi. Profesorul universitar fusese internat în spital la mijlocul lunii octombrie, după ce a suferit un infarct. De atunci, acesta s-a aflat în stare gravă. Astăzi însă, Lucian Vinţan a…
Vârsta de pensionare la magistraţi, poliţişti şi militari ar trebui să CREASCĂ, iar PENSIILE SPECIALE ar trebui plafonate, opiniile liderilor unui partid politic
ziarulunirea.ro - Alba
Vârsta de pensionare la magistraţi, poliţişti şi militari ar trebui să CREASCĂ, iar PENSIILE SPECIALE ar trebui plafonate, opiniile liderilor unui partid
Garda de Coasta: Pescar roman cazut in Delta Dunarii, salvat de politistii de frontiera
www.ziuaconstanta.ro - Constanţa
In data de 05.11.2019, in jurul orei 17.30, politistii de frontiera din cadrul Sectorului Politiei de Frontiera Pardina au fost informati de catre Inspectoratul pentru Situatii de Urgenta Delta ...
Târg de joburi pentru studenţii de la Ştiinţe
www.oltenasul.ro - Dolj
Related Posts via Categories[INVITAȚIE] “Bilet de iertare” – debutul în regie de film al Alinei Șerban – şi proiecţie specială “Singură la nunta mea” 10 noiembrie, ora 19:00 – Cinema Patria Craiova„Bune practici în lupta împotriva comerţului ilicit cu ţigarete în scopul protejării intereselor financiare ale Uniunii Europene – GRILLER-EU”Istoria presei, istorie uitatăCentrul Judeţean pentru Conservarea şi Promovarea Culturii Tradiţionale […]
Universitatea din Craiova, în avangarda românească pentru ORIZONT 2020
www.oltenasul.ro - Dolj
Related Posts via Categories[INVITAȚIE] “Bilet de iertare” – debutul în regie de film al Alinei Șerban – şi proiecţie specială “Singură la nunta mea” 10 noiembrie, ora 19:00 – Cinema Patria CraiovaBiblioteca Aman a transportat peste o mie de cărţi la biblioteca Aeroportului Internaţional Craiova, „FlyingBooks”Duminică, 03 noiembrie 2019, va avea loc la sediul Casei de Cultură, str. Traian Demetrescu, nr. 31, […]
Hoţ fără frică: Un bărbat a fost filmat în timp ce fura ţigările din buzunarul unui poliţist (VIDEO)
www.ebihoreanul.ro - Bihor
Unii hoţi se dovedesc de neoprit, chiar dacă au de-a face cu oamenii legii. Un bărbat a fost filmat în timp ce fură ţigările din buzunarul unui poliţist care completa un proces-verbal.
Constanta. Noua nave sunt avizate pentru sosire in porturile maritime romanesti. Sub ce pavilion sunt
www.ziuaconstanta.ro - Constanţa
Conform listei navelor avizate pentru sosire in data de 5 noiembrie 2019 in porturile maritime romanesti, publicate de portalul Compania Nationala Administratia Porturilor Maritime Constanta, sunt avizate ...
Restanţă nepromovată! SCM Poli se întoarce învinsă de la Vaslui
expressdebanat.ro - Caraş-Severin
”Studenţii” de la Poli au picat un examen important. Handbaliştii alb-violeţi au pierdut la scorul de 28-24, în deplasare la CSM Vaslui, un joc amânat din runda a VII-a. Elevii lui Pero Milosevic rămân cu o situaţie complicată, în clasament după acest rezultat, în afara locurilor de play-off! Debutul partidei nu a fost rău pentru…
FOTO Un BMW s-a izbit puternic într-un gard. Un tânăr şi iubita sa, grav răniţi
www.botosaninews.ro - Botoşani
...
Imaginea zilei! Premierul Ludovic Orban, sărind un gard la Satu Mare
portalsm.ro - Satu Mare
Imaginea zilei îl prezintă pe premierul Ludovic Orban în timp ce sare un gard, în municipiul Satu Mare. Imaginea zilei îl prezintă pe premierul Ludovic
FOTO Un BMW s-a izbit puternic într-un gard. Un tânăr şi iubita sa, grav răniţi
www.botosaninews.ro - Botoşani
...
Prima LUPTĂ a Guvernului Orban: DEPESEDIZAREA. Se începe cu ministerele unde se face inventarul aparatului de rude, pile şi amante
ziarulunirea.ro - Alba
Prima LUPTĂ a Guvernului Orban: DEPESEDIZAREA. Se începe cu ministerele, unde se face inventarul aparatului de rude, pile şi amante Guvernul Orban va avea
Miercuri, premierea Festivalului Universitar de Baschet 3x3, la Constanta
www.ziuaconstanta.ro - Constanţa
Miercuri, 6 noiembrie 2019, incepand cu ora 13 00, pe terenul de sport acoperit de balon al Facultatii de Educatie Fizica si Sport va avea loc festivitatea de premiere a Festivalului Universitar de Baschet ...
FOTO: Investiţii de 7 milioane de euro pe platforma DAW Benţa
www.zi-de-zi.ro - Mureş
Compania DAW Benţa, prin Remus Aurel Benţa şi dr. Ralf Murjahn, a inaugurat joi, 31 octombrie, pe pl
Nume vehiculate pentru şefie la Prefectura Argeş
ziarulargesul.ro - Argeş
După învestirea noului Guvern, liberalii aşteaptă să le ia locul social-democraţilor la "butoane". Şi în Argeş, după cum ne-a declarat în exclusivitate premierul Ludovic Orban, vor fi schimbări, dar cel mai devreme după primul tur de scrutin care va avea loc pe 10 noiembrie. Despre aceste...
Leul în depreciere cu 2% faţă de euro în primele 10 luni din 2019
ziarulunirea.ro - Alba
Leul a cumulat după primele 10 luni din 2019 o depreciere de 4,6% faţă de dolar comparativ cu nivelul de la sfârşitul anului 2018, în timp ce în raport cu
Temperaturi incredibile pentru noiembrie. Maximele ating 27 de grade Celsius!
www.gazetadambovitei.ro - Dâmboviţa
PROGNOZA METEOROLOGICĂ PENTRU INTERVALUL 06.11.2019 ORA 08 – 07.11.2019 ORA 08 Vremea va fi frumoasă şi deosebit de caldă pentru
Echipa de cadeţi de la LPS CSS Bihorul Oradea este din nou campioană naţională la judo
www.ebihoreanul.ro - Bihor
Componenţii echipei de cadeţi a clubului LPS CSS Bihorul Oradea au izbutit să cucerească din nou titlul naţional, la Finala Campionatului Naţional, de la Deva. Sportivii orădeni au câştigat clar primele două confruntări şi au învins apoi în finală, cu 3-2, pe CSM FC Argeş Piteşti.
TIR-uri implicate în accidente la Morăreşti şi Drăganu
ziarulargesul.ro - Argeş
Un bărbat a fost rănit şi a ajuns la spital după ce maşina la volanul căreia se afla a fost implicată într-un accident rutier în care au mai fost angrenate şi două tiruri. Remorca a derapat Evenimentul a avut loc în jurul orei 21.15 a serii de luni la Morăreşti. Din cercetări s-a stabilit că...
FOTOGALERIE. Accident cu victime multiple. Plan roşu de intervenţie între Satu Mare şi Sălaj (exerciţiu)
portalsm.ro - Satu Mare
Accident cu victime multiple. Plan roşu de intervenţie între Satu Mare şi Sălaj (exerciţiu)
Rezultate bune pentru tinerii sportivi de la CSU Oradea la Memorialul "Ioan Stănescu" la tir sportiv (FOTO)
www.ebihoreanul.ro - Bihor
Desfăşurate la Sala Polivalentă a Universităţii din Oradea, întrecerile ediţiei din acest an a Memorialului 'Ioan Stănescu' şi cele din etapa a II-a a Campionatului Naţional de tir sportiv la aer comprimat au scos la rampă câţiva tineri sportivi orădeni.
Bacteria E.coli face ravagii în absenţa igienei stricte
ziarulunirea.ro - Alba
Bacteria E.coli face ravagii în absenţa igienei stricte Bacteria Escherichia coli se răspândeşte mult mai rapid dacă nu se respectă normele de igienă după
Mureşean încarcerat pentru complicitate la escrocherii financiare
www.zi-de-zi.ro - Mureş
Poliţişti din cadrul Poliţie municipiului Târnăveni au pus în aplicare luni, 4 noiembrie, un mandat
Și Călin Dobra şi Nicolae Robu au aşteptări şi de la noul Guvern Orban, dar şi „teme” pentru noua putere!
expressdebanat.ro - Caraş-Severin
Schimbarea de Guvern vine într-un moment în care Timişul şi Timişoara au în derulare mai multe proiecte de modernizare, multe, destul de ample. Din tabăra învinsă a pesediştilor, Călin Dobra a precizat că speră ca noua putere să nu boicoteze proiectele importante pentru Timiş care vor fi realizate din fonduri guvernamentale. Din tabără învingătorilor (cel puţin de moment) din PNL, Nicolae Robu a ţinut să jubileze în stilul său caracteristic, dar şi să îi dea lui Orban patru proiecte importante în ”braţe”.
Șagunistă accidentată pe zebră, în Braşov
feedproxy.google.com - Braşov
Accident rutier in municipiul Brasov, pe Șoseaua Cristianului. O persoană a fost accidentata pe trecerea pentru pietoni, a anunţat purtătorul de cuvânt al IPJ Braşov, scms. Alina Maria Ivan. Victima este conştientă. Este vorba despre o fată de 16 ani. Fata este elevă la Colegiul Naţional „Andrei Șaguna” şi locuieşte în Codlea. Poliţiştii efectuează cercetări
Pro România, în pragul ruperii: Ponta ameninţă cu excluderi, cei care au votat Guvernul vor să plece, iar organizaţia Bihor nu ştie pe cine să urmeze
www.ebihoreanul.ro - Bihor
Înfiinţată de „transfugi” de la PSD şi asociată în această vară cu ALDE, după ce fostul premier Victor Ponta l-a convins pe Călin Popescu Tăriceanu să iasă de la guvernare, Pro România este pe cale să se scindeze după ce alţi trei lideri au votat Guvernul Orban, în ciuda interdicţiei impuse de Ponta. În Bihor, liderii locali Octavian Bara şi Claudiu Pop sunt debusolaţi.
Botoşăneanul salvat de la moarte de familia unei femei în stare gravă. „Eram disperat, plângeam”
www.botosaninews.ro - Botoşani
...
Sportivii târgovişteni, medalii la Campionatul European de Karate WUKF
www.gazetadambovitei.ro - Dâmboviţa
În perioada 24-27 octobrie 2019, în localitatea Odense (Danemarca) a avut loc Campionatul European de Karate WUKF unde au participat
ATENȚIE! Timişorenii, preveniţi să ia măsuri împotriva pestei porcine
expressdebanat.ro - Caraş-Severin
Direcţia Sanitară Veterinară şi pentru Siguranţa Alimentelor Timiş informează cetăţenii de pe raza oraşului Timişoara să fie vigilenţi la cumpărarea produselor din carne de porc în perioada imediat următoare. Aproprierea sărbătorilor este o perioadă critică în care virsul pestei porcine poate lua amploare. Timişorenii sunt sfătuiţi să evite achiziţionarea porcinelor şi a produselor fabricate din…
Episcopul romano-catolic din Satu Mare îndeamnă enoriaşii să iasă la vot, duminică
portalsm.ro - Satu Mare
Episcopul romano-catolic din judeţul Satu Mare, Eugen Schönberger, a transmis un mesaj în care îndeamnă enoriaşii să iasă duminică la vot.
A murit Liviu Paraschiv, antrenor roman de handbal
www.ziuaconstanta.ro - Constanţa
Unul dintre cei mai bine cotati antrenori romani de handbal din ultimii 30 de ani, Liviu Paraschiv, a incetat din viata, marti, la varsta de 72 de ani. Nascut la Brasov in data de 12 mai 1947, Liviu ...
Zilele Bibliotecii Judeţene „V.A. Urechia” – 129 de ani de la inaugurare
www.stiridegalati.ro - Galaţi
În perioada 7 – 14 noiembrie 2019, Biblioteca Judeţeană „V.A. Urechia” Galaţi va organiza un program de manifestări, reunite sub genericul „Zilele Bibliotecii Judeţene V.A. Urechia”, cu prilejul împlinirii a 129 de ani de la inaugurarea prestigioasei instituţii de cultură (11 noiembrie 1890), fondată prin donaţia generosului om de cultură, politician, profesor universitar, istoric şi …
Post vacant în AFIR Dâmboviţa. Condiţiile de concurs
www.gazetadambovitei.ro - Dâmboviţa
Agenţia pentru Finanţarea Investiţiilor Rurale, aflată în subordinea Ministerului Agriculturii şi Dezvoltării Rurale, organizează concurs pentru ocuparea pe perioadă nedeterminată
Luminiţa Jivan nu se-mpiedică de Guvernul Orban pentru dezvoltarea judeţului Caraş-Severin! Pregăteşte amendamente!
expressdebanat.ro - Caraş-Severin
Instalarea noului Guvern la Palatul Victoria şi trecerea social-democraţilor în opoziţie reprezintă o reală provocare pentru planurile celor care, până ieri, se aflau la putere. Adevăratul test al Guvernului Orban abia acum începe, după cum a explicat şefa PSD Caraş-Severin, Luminiţa Jivan.
Veşti proaste pentru români, ce se întâmplă cu Minivacanţa de Sf. Andrei şi 1 Decembrie 2019
www.botosaninews.ro - Botoşani
...
Reacţia femeii care şi-a ucis fiul în Botoşani: „Toată lumea a vrut să ne despartă”
www.botosaninews.ro - Botoşani
...
Transfăgărăşanul e închis, dar vremea e frumoasă…
ziarulargesul.ro - Argeş
Aşa cum v-am informat, Transfăgărăşanul, cel mai frumos şi mai spectaculos drum din lume - după opinii avizate - s-a închis până la 1 iulie anul viitor. Omul de afaceri Dumitru Grecu se revoltă din nou, mai ales că nu sunt probleme de natură meteorologică. "Transfăgărăşanul s-a închis în...
USR Vrancea nu vede cu ochi buni numirea lui Ion Ștefan la Dezvoltare: „Un domn care nu a ieşit primar va fi şeful primarilor din ţară”
www.jurnaldevrancea.ro - Vrancea
Reprezentanţii USR Vrancea au susţinut o conferinţă de presă în care s-au arătat reticenţi în capacităţile de conducere a proaspătului ministru de la | Jurnal de Vrancea - Stiri din Vrancea si Focsani
USR Vrancea nu vede cu ochi buni numirea lui Ion Ștefan la Dezvoltare: „Un domn care nu a ieşit primar va fi şeful primarilor din ţară”
www.jurnaldevrancea.ro - Vrancea
Reprezentanţii USR Vrancea au susţinut o conferinţă de presă în care s-au arătat reticenţi în capacităţile de conducere a proaspătului ministru de la | Jurnal de Vrancea - Stiri din Vrancea si Focsani
Mircea Banias si-a pierdut functia din Comisia Parlamentara. Alti sase membri, sanctionati de liderul PRO Romania
www.ziuaconstanta.ro - Constanţa
Dupa ce Guvernul Orban s-a instalat ca 240 de voturi din 240, liderul PRO Romania, Victor Ponta a luat decizia de a le aplica sanctiuni celor din formatiunea sa politica care au votat cu PNL. Astfel, ...
Balul Palatului, momente inedite şi planuri de viitor
www.zi-de-zi.ro - Mureş
Pentru a 3-a ediţie, Balul Palatului îşi propune să fie din ce în ce mai spectaculos. Aşadar, în dat
100 de ani de la naşterea lui Mihail Kalaşnikov, creatorul celui mai apreciat produs militar din istoria omenirii. În 1964, arma care îi poartă numele a fost lansată în fabricaţie la Uzina Mecanică Cugir
ziarulunirea.ro - Alba
Se împlinesc 100 de ani de la naşterea lui Mihail Kalaşnikov, creatorul celui mai apreciat produs militar din istoria omenirii. În 1964, arma care îi
FOTO| Alba Iulia începe pregătirile pentru sărbătorile de iarnă: Încep să fie montate beculeţele pe podurile de la porţile Cetăţii
ziarulunirea.ro - Alba
Există un studiu care spune că persoanele care decorează mai devreme de Sărbători sunt mai fericite! Aşa vor fi şi locuitorii municipiului Alba Iulia.
PSD Timiş atacă Guvernul Orban la doar o zi de la intrarea în opoziţie!
expressdebanat.ro - Caraş-Severin
PSD a trecut de doar o zi în opoziţie şi începe să critice Guvernul Orban! România a trecut de la o guvernare pentru bunăstarea românilor la o guvernare pentru austeritate şi altfel de interese. Dăncilă a fost înlăturată de partide politice care au format un guvern clădit pe ură şi dezbinare, acuză social-democraţii. PSD Timiş…
Hora bucuriei: Gloria învinge campioana SCM Rm. Vâlcea şi urcă pe 5
timponline.ro - Bistriţa-Năsăud
Gloria 2018 Bistriţa-Năsăud a învins pe teren propriu campioana SCM Râmnicu Vâlcea, într-o partidă contând pentru etapa a 8-a, şi i-a produs prima înfrângere din acest sezon liderului Ligii Florilor, ajungând totodată la a patra victorie consecutivă.
Echipa antrenată de Horaţiu Paşca, care a cond
Economia de piaţă din România cu documente din comunism
feedproxy.google.com - Braşov
Din 1990 funcţionăm, teoretic, după principiile şi regulile economiei de piaţă. Unul dintre principiile de bază ale acesteia este concurenţa dintre actorii economici, care trebuie să găsească permanent variante pentru a-şi optimiza activitatea în aşa fel încât să poată aduce pe piaţă produse mai bune la preţuri mici. În schimb, fără a avea ceva de-a
Conferinta stiintifica internationala Securitatea si apararea intre istorie, teorie si politici publice: Cine va participa la dezbatere si ce subiecte vor fi abordate
www.ziuaconstanta.ro - Constanţa
In contextul aniversarii a 160 de ani de la infiintarea Statului Major al Apararii si a 155 de ani de la infiintarea revistei Gandirea Militara Romaneasca , Statul Major al Apararii organizeaza, ...
În loc de centură primim „minicentură” – se asfaltează drumul dintre Săcălaz şi Dudeştii Noi!
expressdebanat.ro - Caraş-Severin
Până la începerea lucrărilor la Centura de Sud, Consiliul Judeţean Timiş investeşte într-un nou proiect de asfaltare: o „minicentură”, un drum de legătură între Săcălaz şi DN6, care se speră că va ajuta la degrevarea oraşului de traficul de tranzit.
Informaţii utile în contextul desfăşurării alegerilor prezidenţiale
www.oradesibiu.ro - Sibiu
În contextul desfăşurării alegerilor pentru Preşedintele României în data de 10 noiembrie, respectiv 24 noiembrie, Primăria Municipiului Sibiu face câteva anunţuri de utilitate pentru sibieni. Program extins pentru înnoirea cărţilor de identitater Programul Serviciului de Evidenţă a Persoanelor din cadrul Primăriei Sibiu va fi prelungit pentru a veni în sprijinul…
PSD se organizează în opoziţie: Miniştrii lui Orban vor avea viaţă grea (surse)/ Social-democraţii nu mai repetă greşeala de la europarlamentare
ph-online.ro - Prahova
PSD se adaptează rapid la noul statul de partid de opoziţie. Social-democraţii au decis să facă o monitorizare strictă a Guvernului Orban. Potrivit su...
Baia Mare: “Targul Brazilor de Craciun 2019”-Piata Revolutiei; afla aici, ziua in care se va deschide
ziarmm.ro - Maramureş
"Targului Brazilor de Craciun 2019" va avea loc pe platoul din Piata Revolutiei din Municipiul Baia Mare. Deschiderea targului se va face in data de 10 decembrie si se va inchide in ziua de 25 decembr
Aproape 1500 de botoşăneni cu viroze respiratorii. Cele mai multe îmbolnăviri, la copii
www.botosaninews.ro - Botoşani
...
LIVE VIDEO Gloria – SCM Rm. Vâlcea, în Liga Florilor
timponline.ro - Bistriţa-Năsăud
Gloria 2018 Bistriţa-Năsăud, locul 7 în campionatul de handbal feminin, întâlneşte pe teren propriu campioana SCM Râmnicu Vâlcea, liderul Ligii Florilor, într-o partidă contând pentru etapa a 8-a. Gloria vine după trei victorii consecutive, în timp ce SCM Râmnicu Vâlcea are opt succese din tot atâte
Victorie pentru ASU Poli la Buzău. Un fost idol alb-violet aşteaptă să-i fie propus postul de antrenor!
expressdebanat.ro - Caraş-Severin
ASU Poli nu se întoarce cu mâna goală după cinci zile departe de casă. Timişorenii s-au impus cu 1-0 pe terenul celor de la SCM Gloria Buzău, într-un meci restant din etapa a XI-a. Din nou, ”atacantul” a fost Mera, pentru un rezultat ce o duce pe Poli la 17 puncte. De asemenea, în perioada…
Darren Cahill rupe tacerea, dupa ce i-a spus Simonei Halep: "Ai fost o rusine pe teren!"
www.ziuaconstanta.ro - Constanţa
Simona Halep a incheiat sezonul 2019 pe locul 4 WTA si a plecat in vacanta, de unde a postat primele poze pe retelele sociale, scrie digisport.ro. Imaginile cu on-court coaching-ul de la Turneul ...
“Iarna Baimareana” 2019-Activitati dedicate copiilor de Mos Nicolae, concerte de colinde si muzica moderna, spectacole de artificii si multe altele
ziarmm.ro - Maramureş
“Iarna Baimareana” se va desfasura in perioada 1 decembrie 2019 – 1 ianuarie 2020. Programul evenimentului va cuprinde un spectacol care va marca Ziua Nationala – 1 Decembrie, activitati dedicate copi
VIDEO: Ce spune primarul Misăilă despre audierea la DNA
www.jurnaldevrancea.ro - Vrancea
La finalul şedinţei extraordinare a Consiliului Local, primarul Focşaniului, Cristi Misăilă a confirmat că a fost audiat de procurorii anticorupţie. | Jurnal de Vrancea - Stiri din Vrancea si Focsani
"100 de voci pentru Tereza Mózes": Mai mulţi elevi vor citi din cartea supravieţuitoarei Holocaustului, la Muzeul Evreilor (VIDEO)
www.ebihoreanul.ro - Bihor
Muzeul Istoriei Evreilor din Oradea organizează un eveniment deosebit, miercuri, în ziua în care Tereza Mózes, supravieţuitoare a Holocaustului şi autoare a cărţilor 'Decalog însângerat' şi 'Evreii din Oradea', împlineşte 100 de ani. În cadrul programului '100 de voci pentru Tereza Mózes', elevii participanţi la proiectul 'Ambasadorii Memoriei' vor citi 100 de fragmente din cartea scrisă de Tereza Mózes, 'Decalog însângerat', în care autoarea relatează întâmplările din ghetoul din Oradea, respectiv din lagărele naziste.
Marş cu mănuşi albe, joi, în Oradea, pentru a marca centenarul Asociaţiei Naţionale a Surzilor
www.ebihoreanul.ro - Bihor
Asociaţia Naţională a Surzilor din România împlineşte săptămâna aceasta 100 de ani de la înfiinţare, prilej cu care filiala din Bihor organizează, joi, în centrul oraşului, un marş al tăcerii. La eveniment vor participa circa 130 de persoane cu deficienţe de auz, dar şi alţi orădeni care vor purta mănuşi albe, pentru sensibilizarea comunităţii cu privire la felul de comunicare şi la nevoile surzilor.
Trei infracţiuni comise de o singură persoană
www.stiridegalati.ro - Galaţi
Poliţiştii din Rădeşti au descoperit în urma unui control de rutină că un tânăr care conducea un moped neînmatriculat, nu avea nici permis de conducere şi era şi băut. „Poliţiştii Secţiei 5 de Poliţie Rurală Rădeşti au oprit în trafic, pe DJ 251A, în localitatea Fundeanu, un moped, fără număr de înmatriculare, condus de un …
Tir incarcat cu oi, rasturnat pe soseau de centura / Animale moarte intinse pe camp
www.infobraila.ro - Brăila
Astazi, in jurul orei 16.20, pe soseaua de centura a Brailei, in dreptul liniei de tramvai ce leaga orasul de statiunea Lacu Sarat, un tir incarcat cu ovine s-a rasturnat. In urma impactului cu solul, mai multe animale au murit, ramanand intinse pe sosea iar restul, care au reusit sa scape cu viata, au fost […]
PNL se pregăteşte să numească prefect la Braşov
feedproxy.google.com - Braşov
Următorul pas important pentru liberali braşoveni, după ungerea Guvernului Sică Orban, este numirea unui prefect. Cum gura lumii e slobodă, umblă vorba prin târg că deja au avut loc discuţii pe acest subiect. Cea mai bine situată pentru această fucnţie este Adrian Donţu, care a mai deţinut această funcţie, dar şi pe aceea de subprefect,
Metoda “CUREAUA” se întoarce – Video
www.gazetadambovitei.ro - Dâmboviţa
Numitul BM, hoţul din buzunare specializat în metoda “CUREAUA”, a fost reţinut a treia oară. In ziua de 01.11.2019 numitul
Legea penală e mai presus decât legea junglei. Ce a păţit un bărbat care a atacat cu toporul un poliţist
ziarulunirea.ro - Alba
Anul trecut, un bărbat în vârstă de 55 de ani, din comuna Valea Lungă, şi-a ameninţat membrii familiei cu un topor, un poliţist fiind nevoit să intervină
Delegatia Armatei Romaniei la Jocurile Mondiale Militare, primita la sediul MApN de seful Statului Major al Apararii
www.ziuaconstanta.ro - Constanţa
Marti, 5 noiembrie, generalul-locotenent Daniel Petrescu, loctiitorul sefului Statului Major al Apararii, i-a primit, la sediul Ministerului Apararii Nationale, pe membrii delegatiei care a reprezentat ...
Pregătiri de iarnă
ziarulargesul.ro - Argeş
Autorităţile locale din Piteşti au început de pe-acum pregătirile de iarnă. Zeci de saci cu material antiderapant au fost plasaţi în mai multe zone ale oraşului, în special pe pante, în intersecţii sau sensuri giratorii. Până ieri fuseseră aduşi în jur de 100 de saci cu nisip în Găvana II...
Mandatul de ministru al Justitiei, preluat de Catalin Predoiu
www.ziuaconstanta.ro - Constanţa
Catalin Predoiu a preluat, marti, de la Ana Birchall, mandatul de ministru al Justitiei, in cadrul unei ceremonii la care au luat parte presedintele Klaus Iohannis si premierul Ludovic Orban informeaza ...
Dan Barna: ”A venit vremea să scăpăm de pesedism şi coşmarurile trecutului. Ne-au trebuit 30 de ani să ajungem aici”
www.jurnaldevrancea.ro - Vrancea
Dan Barna, candidatul la Preşedinţia României din partea Alianţei USR PLUS, transmite un mesaj de unitate către toţi românii din ţară şi străinătate, să | Jurnal de Vrancea - Stiri din Vrancea si Focsani
Schimb de comanda intre colonei americani, la Baza Aeriana Mihail Kogalniceanu
www.ziuaconstanta.ro - Constanţa
Ceremonia, condusa de Generalul Maior Christopher Mohan, comandantul 21st Theater Sustainment Command, a avut loc pe Campul de Parada din Baza 57 Aeriana Mihail Kogalniceanu. Dupa intonarea imnurilor ...
Începe sezonul de schi – Când se dă drumul la distracţie la Arena Platoş
www.oradesibiu.ro - Sibiu
Final de lună cu surprize. La Arena Platoş se deschide sezonul de iarnă. Sibienii sunt aşteptaţi să participe la un concurs de schi şi snowboard, dar şi la o mega petrecere. Sezonul de schi la Arena Platoş Păltiniş se deschide pe 30 noiembrie. Pe timpul zilei se desfăşoară concursul de…
COD ROȘU, activat. Cozi kilometrice de camioane la Vama Petea
portalsm.ro - Satu Mare
COD ROȘU, activat. Cozi kilometrice de camioane la Vama Petea. A fost activat codul roşu pentru camioane la Vama Petea, timpul de aşteptare fiind de peste două. Traficul intens este prezent pe sensul de ieşire din România.
Motiv de bucurie: Noi echipamente profesionale pentru Salvamont Maramures (FOTO)
ziarmm.ro - Maramureş
Serviciul Public Judetean Salvamont Maramures a achizitionat mai multe echipamente profesionale cu ajutorul carora salvamontistii vor putea face fata interventiilor, dar si situatiilor medicale deoseb
Guvernul Orban îl va propune pe Siegfried Mureşan comisar european
www.ebihoreanul.ro - Bihor
Guvernul Orban va trimite marţi sau miercuri o scrisoare Comisiei Europene, prin care îl va propune pe europarlamentarul liberal Siegfried Mureşan pentru funcţia de comisar european, potrivit unor surse din PNL.
Mureşean închis pentru tâlhărie calificată
www.zi-de-zi.ro - Mureş
Poliţişti din cadrul Poliţie municipiului Târnăveni au pus în aplicare luni, 4 noiembrie, un mandat
Povestea lui Sebi, un bebeluş din Sibiu născut prematur – A stat un an în spital
www.oradesibiu.ro - Sibiu
Sebi, un bebeluş din Sibiu, s-a născut prematur. A venit pe lume la doar 26 de săptămâni şi cântărea 700 de grame. A stat un an în spital, iar cu ajutorul medicilor din Sibiu a plecat sănătos acasă. Șansa lui Sebi la viaţă au fost medicii sibieni, dar şi aparatura…
FOTO/VIDEO. Accident frontal provocat de un sătmărean de 72 de ani. Patru persoane au ajuns la spital
portalsm.ro - Satu Mare
Accident frontal provocat de un sătmărean de 72 de ani. Patru persoane au ajuns la spital
Director nou la SCM, dar mai puţini bani de la primărie. Robu: Vom vedea, ne este foarte greu
www.tion.ro - Timiş
Clubul Sportiv Municipal al oraşului ar putea primi mai puţini bani de la primărie. Situaţia nu este roz nici acum, pentru că sunt întârziate salariile, dar primarul Nicolae Robu spune că nu se poate mai mult. Are nevoie de bani pentru investiţiile oraşului.
Primarul din Preuteşti, lovit cu pumnul în faţă de un localnic băut şi nemulţumit
feeds.monitorulsv.ro - Suceava
Ultima ora: Ion Vasiliu, primarul comunei Preutesti, a fost batut de un localnic. Incidentul s-a petrecut marti, in jurul orei 11.00, in timp ce primarul se afla la scoala din Leucusesti, acolo unde urmarea evolutia lucrarilor de renovare a unitatii de invatamant. Barbatul care aflase de prezenta primarului in scoala a venit special pentru a-l intalni.
Orban despre cresterea salariului minim: Vrem sa luam decizia pe baza unei analize serioase a efectelor
ziarmm.ro - Maramureş
Premierul Ludovic Orban a declarat marti ca Executivul va lua o decizie in privinta cresterii salariului minim in urma unei analize a efectelor acestei masuri, avand la baza indicatori economici obiec
Restaurant Graf revine pe scena gastronomică a Oradiei (FOTO)
www.ebihoreanul.ro - Bihor
Unul dintre cele mai cunoscute şi apreciate localuri din Oradea, Restaurantul Graf, se redeschide, cu o nouă identitate, meniuri îmbogăţite, dar cu aceleaşi standarde de calitate şi bun-gust.
Conflict la Serviciul de Medicina Legala Constanta. S-a intocmit dosar penal
www.ziuaconstanta.ro - Constanţa
Astazi, in jurul orei 10 30, politistii din cadrul Sectiei 2 au fost sesizati prin apel 112 cu privire la faptul ca, in fata sediului Serviciului de Medicina Legala Constanta, are loc o incaierare ...
Sanatoriul Balnear si de Recuperare Mangalia angajeaza. Ce posturi sunt vacante
www.ziuaconstanta.ro - Constanţa
Sanatoriul Balnear si de Recuperare Mangalia, judetul Constanta organizeaza concurs de recrutare pentru ocuparea pe perioada nedeterminata a functiilor contractuale vacante, de asistent medical ...
Judecat pentru furt de telefoane
ziarulargesul.ro - Argeş
Poliţişti ai formaţiunii de investigaţii criminale din cadrul Secţiei 2 Piteşti au finalizat cercetările într-un dosar penal privind comiterea infracţiunii de furt calificat. Din cercetări s-a stabilit că, în noaptea de 17 spre 18 octombrie 2018, un tânăr din Piteşti, Răzvan Constantin G., în...
Ciobani din Sibiu cercetaţi pentru trafic de minori
www.oradesibiu.ro - Sibiu
Trei ciobani din Sibiu şi Mureş sunt cercetaţi pentru trafic de minori. Aceştia au obligat mai mulţi copii să muncească în folosul lor. În plus, ciobanii îi şi băteau. Doi dintre inculpaţi sunt în arest preventiv din luna septembrie, ca urmare a unei propuneri adresate judecătorilor de către procurori din…
A murit un antrenor care a făcut istorie la echipa de handbal Rulmentul Braşov
feedproxy.google.com - Braşov
Născut în 1947 la Braşov, Liviu Paraschiv a antrenat aproximativ 35 de ani în handbalul românesc. Și-a început activitatea la Tractorul Braşov, în 1980, iar după mai bine de două decenii a trecut la Minaur. Din sectorul masculin a mai pregătit Fibrex P. Neamţ. La feminin, tehnicianul a pregătit mai multe echipe de top, Rulmentul,
Sfat de la Aquatim: plătiţi online factura de apă!
www.tion.ro - Timiş
Orice plată online vă scuteşte de un drum şi de o coadă la un ghişeu. Reprezentanţii societăţii de apă şi canal vă recomandă să plătiţi factura de apă online, este mai simplu.
Fapte, nu vorbe! Prahova, pe locul 1 in topul accesarii fondurilor europene: 500 MILIOANE DE EURO, bani pentru dezvoltarea judetului
ph-online.ro - Prahova
2,415 miliarde de lei - solicitaţi pentru 304 proiecte prin Programului Operaţional Regional 2014-2020 de autorităţi publice sau societăţi comerciale...
Au început lucrările la parcarea supraetajată de pe strada Braşovului
www.ebihoreanul.ro - Bihor
La începutul acestei săptămâni, s-a dat ordinul de începere a lucrărilor la parcarea publică etajată de pe str. Braşovului. Societatea care a câştigat licitaţia, SC Electrogrup SA Cluj Napoca, a demarat organizarea de şantier, termenul de execuţie fiind de 12 luni de la emiterea ordinului de începere a lucrărilor.
FOTO S-a reaprins incendiul de pădure de la Măgura – Pompierii intervin de urgenţă
www.oradesibiu.ro - Sibiu
Arde din nou pădurea de la Măgura. Pompierii sibieni sunt în alertă şi intervin pentru stingerea flăcărilor. „Pompierii militari din cadrul ISU Sibiu intervin de urgenţă pentrul localizarea şi stingerea unui incendiu care se manifesta în zona pădurii Măgura pe o suprafaţă de aproximativ 100 mp”, anunţă reprezentanţii ISU Sibiu.…
Un botoşănean, în cărţi pentru şefia unei instituţii din subordinea Guvernului
www.botosaninews.ro - Botoşani
...
Alex-Dia Construct şi Zitico „se bat” pentru refacerea faţadei Liceului „Lenau”
www.tion.ro - Timiş
Două oferte pentru lucrarea de reabilitare a faţadei Liceului „Lenau”. Primăria pune la bătaie aproape jumătate de milion de euro pentru contract, la mai bine de şase ani de la începerea lucrărilor la clădirea care a dat doi laureaţi de Nobel.
Prima veste proastă a noului ministru de Finanţe, Florin Cîţu
ph-online.ro - Prahova
Florin Cîţu, noul ministru al Finanţelor, nu este convins că România se poate încadra în ţinta de deficit de 3% pentru acest an, în condiţiile în care...
ACCIDENT pe drumul Arad – Pecica: Mercedes vs. Mercedes. Unul a ieşit „ȘIFONAT” rău
newsar.ro - Arad
Citeşte azi ce scriu ziarele de mâine!
Ziua Dobrogei : Evenimente in Constanta si Tulcea organizate de Institutia Prefectului
www.ziuaconstanta.ro - Constanţa
La data de 14 noiembrie se sarbatoreste Ziua Dobrogei. Cu aceasta ocazie, Institutia Prefectului Judetul Constanta a organizat o serie de evenimente. Iata lista completa Data ...
Se împlinesc 9 ani de la moartea lui Adrian Păunescu
ziarulunirea.ro - Alba
În dimineaţa zilei de 5 noimebrie 2010, inima poetului "generaţiei în blugi" a încetat să mai bată, la Spitalul de Urgenţă Floreasca din Bucureşti, cauza
Pieton accidentat pe zebră, în Braşov
feedproxy.google.com - Braşov
Accident rutier in municipiul Brasov, pe Șoseaua Cristianului. O persoană a fost accidentata pe trecerea pentru pietoni, a anunţat purtătorul de cuvânt al IPJ Braşov, scms. Alina Maria Ivan. Victima este conştientă. Poliţiştii efectuează cercetări pentru stabilirea cauzelor şi împrejurărilor în care s-a produs accidentul. Revenim cu amănunte! Share via: 0 Shares Facebook Twitter LinkedIn
Experiment psihologic interactiv la Biblioteca Astra din Sibiu
www.oradesibiu.ro - Sibiu
Biblioteca Astra invităţi sibienii să ia parte la un eveniment inedit. Vineri, 8 noiembrie 2019, începând cu ora 18:00, la Sala Festivă a Bibliotecii Judeţene ASTRA Sibiu, va avea loc evenimentul „Proust în Transilvania”, un experiment psihologic interactiv. Pornind de la experimentele fenomenului Proust şi de la evenimentul de succes…
Iohannis: “PSD bagă în disperare pensionarii cu o minciună gogonată” (P)
www.gazetadambovitei.ro - Dâmboviţa
Preşedintele Klaus Iohannis a declarat că PSD se ”agaţă cu disperare de putere”. Șeful statului îi acuză pe social-democraţi că,
Ce spun reprezentanţii Spitalului despre vizita Vioricăi Dăncilă în secţia Neonatologie
www.jurnaldevrancea.ro - Vrancea
Reprezentanţii Spitalului Judeţean din Focşani au formulat un punct de vedere după ce Viorica Dăncilă, Sorina Pintea şi Marian Oprişan s-au plimbat prin | Jurnal de Vrancea - Stiri din Vrancea si Focsani
test
www.stiridegalati.ro - Galaţi
aici e un rezumat
Interviu online cu Zafer Sadic, procuror-sef sectie Urmarire Penala - Parchetul de pe langa Tribunalul Constanta: Tema este - Sharenting-ul - pericolele nebanuite ale postarii imaginilor cu copii in mediul online
www.ziuaconstanta.ro - Constanţa
Invitatul ZIUA de Constanta este procurorul criminalist Zafer Sadic, sef al Sectiei Urmarire Penala din cadrul Parchetului de pe langa Tribunalul Constanta. De-a lungul timpului, procurorul criminalist a ...
,,Dans de vifor” este conceptul iluminatului festiv pentru Braşov, oraş din poveste
feedproxy.google.com - Braşov
De astăzi (5 noiembrie n.n.) a început montarea luminiţelor de Crăciun pe străzile din centrul istoric, pentru ca până la sfârşitul lunii să fie montate şi pe brazii din cele patru pieţe publice, Piaţa Sfatului, Piaţa Unirii, Piaţa Sf. Ioan şi Piaţa Enescu. Ca şi anul trecut, startul pentru ,,Braşov, oraş din poveste” va fi
Primarul interimar din Predeal a pierdut procesul cu PNL
feedproxy.google.com - Braşov
Primarul interimar al staţiunii Predeal, Sebastian Fleşieru, a pierdut în prima instanţă procesul intentat Partidului Naţional Liberal, care i-a retras sprijinul politic şi l-a dat afară din partid. Mai mult, l-a obligat să plătească PNL şi cheltuieli de judecată. Scandalul din administraţia publică de la Predeal continuă cu un nou episod, la instanţă de această
Conducerea D.G.A., prezenta la cea de-a patra Reuniune Regionala a Unitatilor de Afaceri Interne din cadrul Ministerelor de Interne (NERCISU) din Bulgaria
www.ziuaconstanta.ro - Constanţa
In perioada 4-6 noiembrie a.c., conducerea Directiei Generale Anticoruptie, reprezentata prin comisar sef de politie Octavian Melintescu, director general adjunct, participa la lucrarile Celei de-a ...
E-Distributie Dobrogea: Programul intreruperilor programate in judetul Constanta
www.ziuaconstanta.ro - Constanţa
Pentru lucrarile anuale de reparatii si intretinere instalatii si retele electrice, precum si posturi de transformare, SC E- Distributie Dobrogea SA - Zona MT-JT Constanta, anunta intreruperea ...
Cu sacii plini de gunoaie pe bicicletă, ca să-i arunce pe stradă
www.tion.ro - Timiş
Un biciclist a fost amendat de Poliţia Locală după ce a fost prins cu sacii de gunoaie pe bicicletă, pe care i-a aruncat pe domeniul public, pe str. Ardealul.
Anunţ Nova Apaserv! Apa se opreşte, miercuri, pe mai multe străzi din municipiul Botoşani şi în patru localităţi din judeţ
www.botosaninews.ro - Botoşani
...
Actiuni de promovare a sportului in scolile constantene (galerie foto)
www.ziuaconstanta.ro - Constanţa
Miercuri, 06 noiembrie 2019, copiii de la Scoala Gimnaziala Nr. 3 Ciprian Porumbescu din Constanta vor lua parte la demonstratii de volei organizate de ACS Top Volei 05 Constanta, echipa finantata ...
Usoara scadere a cursului euro spre 4,75 lei
ziarmm.ro - Maramureş
Evolutia perechii euro/leu in prima sedinta a pietei valutare care a urmat instalarii noului guvern PNL a fost una calma. Cursul euro a scazut de la 4,7550 la 4,7540 lei. Tranzactiile din prima jumata
IPJ Constanta, despre un eveniment rutier produs in aceasta dimineata, in afara localitatii Mihail Kogalniceanu
www.ziuaconstanta.ro - Constanţa
In aceasta dimineata, un eveniment rutier s-a produs in afara localitatii Mihail Kogalniceanu. Iata ce spune purtatorul de cuvant al IPJ Constanta, Andreea Iliescu, despre producerea evenimentului ...
Internet-ul 5G lansat de companiile de telefonie mobilă – Va fi disponibil şi în Sibiu
www.oradesibiu.ro - Sibiu
Trei operatori de telefonie mobilă de pe piaţa din România, şi anume Orange, Vodafone şi Digi Mobil, au lansat servicii 5G în mai multe oraşe. În curând, serviciul va fi disponibil şi în Sibiu. Prima companie care a lansat servicii comerciale 5G în România a fost Vodafone. Acestea sunt disponibile…
VIDEO – Violatorul din Piteşti, arestat!
ziarulargesul.ro - Argeş
# Individul riscă ani grei de puşcărie dacă va fi găsit vinovat Judiciarişti din cadrul Serviciului Investigaţii Criminale Argeş l-au ridicat de acasă şi adus la audieri pe Antonio Laurenţiu S., de 50 de ani, din Piteşti, bănuit de comiterea infracţiunii de viol. Astăzi, în jurul orei 14...
Mandat de executare a pedepsei cu închisoarea, pus în executare de poliţişti
www.jurnaldevrancea.ro - Vrancea
La data de 01.11.2019, poliţiştii din cadrul Serviciului de Investigaţii Criminale Vrancea au identificat pe raza mun. Focşani un bărbat, în vârstă de 41 | Jurnal de Vrancea - Stiri din Vrancea si Focsani
Viorica Dăncilă: „Nu-mi plec capul în faţa acestui preşedinte dictator”
ph-online.ro - Prahova
Preşedintele PSD, Viorica Dăncilă, a susţinut o declaraţie de presă, luni, de la ora 18, la sediul central al PSD, după votul de învestitură al Guvern...
Medalii pentru popicarii juniori în întrecerea seniorilor
www.zi-de-zi.ro - Mureş
După cele 12 medalii cucerite de popicarii mureşeni în cadrul finalelor Campionatului Naţional în pr
A murit în timp ce se afla la pescuit. Unul dintre copiii lui a dat alarma
www.jurnaldevrancea.ro - Vrancea
La data de 04.11.2019, ora 16.03, poliţiştii Secţiei de Poliţie Rurală Năneşti au fost sesizaţi prin SNUAU 112 de către un tânăr, din comuna Măicăneşti, | Jurnal de Vrancea - Stiri din Vrancea si Focsani
Bilete online pentru meciul României
ph-online.ro - Prahova
Tricolorii Under 21 continuă drumul spre EURO 2021! Partida cu Finlanda se va disputa la Voluntari, pe stadionul “Anghel Iordănescu, în data de 14 noi...
Miss Boboc 2019, în stilul anilor ’70, la Moldova Nouă
expressdebanat.ro - Caraş-Severin
Libertatea de exprimare, curajul, efervescenţa şi diversitatea sunt doar câteva elemente pe care bobocii Liceului Tehnologic „Clisura Dunării” vor încerca să le pună în valoare pentru câştigarea mult râvnitelor titluri de Miss şi Mister Boboc, concursul adolescenţei şi al frumuseţii urmând să aibă loc la mijlocul acestei luni, în oraşul de la malul Dunării.
Doi minori de 14 ani cercetaţi după ce au furat peste 2.000 de lei dintr-un sertar
www.jurnaldevrancea.ro - Vrancea
La data de 02.11.2019, ora 16.30, Poliţia Municipiului Adjud a fost sesizată de către o femeie, în vârstă de 33 de ani, din mun. Adjud, despre faptul că | Jurnal de Vrancea - Stiri din Vrancea si Focsani
Trafic blocat, sâmbătă, pe strada Iuliu Maniu din Oradea
www.ebihoreanul.ro - Bihor
Circulaţia pe strada Iuliu Maniu din Oradea va fi restricţionată, sâmbătă, în urma deciziei luate, marţi, de Comisia de Circulaţie din cadrul municipalităţii.
FOTO. Adolescentă, drogată şi violată în timpul unui ritual satanic
portalsm.ro - Satu Mare
Adolescentă, drogată şi violată în timpul unui ritual satanic
Ofertă 1+1 la concertul susţinut de Ștefan Bănică la botoşani
www.botosaninews.ro - Botoşani
...
Noul ministru al Transporturilor e ambiţios – „O să iau la verificat fiecare obiectiv de autostradă”
www.oradesibiu.ro - Sibiu
Noul ministru al Transporturilor, Lucian Bode a declarat că va verifica fiecare obiectiv de autostradă pentru a vedea clar stadiul lucrărilor. Acesta a menţionat că nu va face nicio promisiune în ceea ce priveşte autostrăzile. "În acest an au fost daţi în trafic 22 de kilometri de autostradă, Lugoj-Deva Lotul…
Zeci de medalii pentru gimnastele CSM-ului
ph-online.ro - Prahova
Gimnastele de la CSM Ploieşti s-au întors pline de medalii de la un campionat important. Recent, în zona de nord a ţării, a avut loc o nouă ediţie a „...
Zeci de medalii pentru gimnastele CSM-ului
ph-online.ro - Prahova
Gimnastele de la CSM Ploieşti s-au întors pline de medalii de la un campionat important. Recent, în zona de nord a ţării, a avut loc o nouă ediţie a „...
Becali vrea un jucător de la FC Botoşani, Iftime nu îl dă: Nu vreau să mă păcălesc ca la Moruţan, care joacă la FCSB ca boxerii!
www.botosaninews.ro - Botoşani
...
Becali vrea un jucător de la FC Botoşani, Iftime nu îl dă: Nu vreau să mă păcălesc ca la Moruţan, care joacă la FCSB ca boxerii!
www.botosaninews.ro - Botoşani
...
Accident cu 3 victime pe DN73
feedproxy.google.com - Braşov
Alertă la Braşov, după ce a fost anunţat un accident pe DN13, prin serviciul 112, pe raza localităţii Moieciu. UPDATE „Sunt 3 victime conştiente, neîncarcerate. Intervine ISU Braşov cu 1 autospeciala cu apa şi spuma, 2 echipaje de prim ajutor si un echipaj de terapie intensiva. Victimele nu sunt în stare gravă”, a anunţat purtătorul
Săgeţi bine plasate de mureşeni, la darts
www.zi-de-zi.ro - Mureş
În ultimele zile sportivii mureşeni au obţinut rezultate remarcabile la una dintre ramurile foarte p
FOTO. Caz şocant! Adolescentă, drogată şi violată în timpul unui ritual satanic
portalsm.ro - Satu Mare
Caz şocant! Adolescentă, drogată şi violată în timpul unui ritual satanic
Accident cu o victimă pe DN73
feedproxy.google.com - Braşov
Alertă la Braşov, după ce a fost anunţat un accident pe DN13, prin serviciul 112, pe raza localităţii Moieciu. UPDATE „Sunt 3 victime conştiente, neîncarcerate. Intervine ISU Braşov cu 1 autospeciala cu apa şi spuma, 2 echipaje de prim ajutor si un echipaj de terapie intensiva. Victimele nu sunt în stare gravă”, a anunţat purtătorul
TIR Răsturnat pe Valea Bogăţii
feedproxy.google.com - Braşov
Un TIR s-a rasturnat la intrare în Padurea Bogatii, pe serpentine, pe sensul de urcare spre Rupea. O banda de circulaţie este blocata. Potrivit purtătorului de cuvânt al IPJ Braşov, scms. Alina MAria Ivan, nu au existat victime. Camionul era incarcat cu var. Foto: Arhivă Share via: 0 Shares Facebook Twitter LinkedIn More
NEAMȚ: Accident cu victime. Impact între un microbuz de transport persoane şi un autoturism (ultima oră)
www.stiri-neamt.ro - Neamţ
Echipajele Inspectoratului pentru Situaţii de Urgenţă (ISU) Neamţ intervin la această oră (15:30) la un accident rutier în localitatea Secuieni. Potrivit
Salvatorii ISU Dobrogea continua cautarile minorului disparut la Pecineaga
www.ziuaconstanta.ro - Constanţa
La Pecineaga, in aceste momente se continua verificarile pentru gasirea minorului in varsta de opt ani dat disparut sambata. Potrivit Inspectoratului pentru Situatii de Urgenta Dobrogea, se ...
Patru răniţi după ce un şofer a întors peste linia dublă continuă, în Calea Aradului din Timişoara
www.tion.ro - Timiş
Accident de circulaţie, marţi dimineaţă, la ieşire din Timişoara, în Calea Aradului. Patru persoane au ajuns la spital, după ce un şofer a încercat să întoarcă pe drumul ce leagă Timişoara de Arad.
De ce refuza Iohannis sa participe la dezbateri electorale. "Preferă monologul şi mitingurile cu acoliţii"
ph-online.ro - Prahova
Analistul politic Stelian Tănase susţine că prezidenţiabilii se consideră ”semizei” şi se tem foarte tare de o dezbatere electorală pentru că atunci a...
Accident rutier pe strada Varful cu Dor din Constanta. Un biciclist a fost ranit
www.ziuaconstanta.ro - Constanţa
Astazi, in jurul orei 09.05, un barbat a condus o bicicleta pe strada Varful cu Dor, dinspre bulevardul Aurel Vlaicu catre strada Gheorghe Marinescu, iar la intersectia cu strada Ion Ursu, in timpul ...
Mai multe străzi din municipiul Satu Mare vor rămâne vineri fără curent
portalsm.ro - Satu Mare
Mai multe străzi din municipiul Satu Mare vor rămâne vineri fără curent
Bihorel: Zece efecte ale înlocuirii Guvernului Dăncilă cu Guvernul Orban
www.ebihoreanul.ro - Bihor
Bihorel enumeră efectele schimbării Guvernului: 1. Pentru că membrii guvernului au trebuit să plece în grabă, liberalii au găsit în sediu 23 de cagule, 15 răngi, 7 şperacluri şi 143 de mănuşi de unică folosinţă. 2. Școala profesională din Videle va fi prima din ţară care va avea profesor de lucru manual un fost premier. 3. PSD a fost împuternicit să declare că la putere a ajuns o gaşcă de duşmani ai patriei, pentru că mai toţi miniştrii vorbesc limba engleză. 4. Ianoş Mang s-a interesat dacă aeroportul din Debreţin are zboruri directe către Costa Rica.
NEAMȚ: Zi tristă în handbalul românesc. Liviu Paraschiv s-a stins din viaţă
www.stiri-neamt.ro - Neamţ
Liviu Paraschiv, unul dintre antrenorii la modă în anii 1990-2010 în handbalul românesc, s-a stins din viaţă la vârsta de 72 de ani, după o lungă
Ateliere de poveşti şi creaţie, la Centrul de Formare al Bibliotecii Judeţene
www.jurnaldevrancea.ro - Vrancea
Biblioteca Judeţeană „Duiliu Zamfirescu” Vrancea vă invită să vă înscrieţi copiii la atelierele de poveşti şi creaţie care se vor desfăşura în perioada 13 | Jurnal de Vrancea - Stiri din Vrancea si Focsani
Constanteanca Daria Kraus, pe podiumul Cupei Romaniei de Ju-Jitsu (galerie foto)
www.ziuaconstanta.ro - Constanţa
Sportiva de 12 ani, legitimata la Clubul Sportiv Marina Constanta a confirmat din nou calitatile de campioana. Daria Kraus a obtinut locul intai la fighting, categoria U16, locul II la fighting, ...
Un nou act de violenţă la o şcoală din Timişoara. O elevă şi-a agresat colega în curtea liceului
www.tion.ro - Timiş
Actele de violenţă ies la lumină în acest început de săptămână, în Timiş. După ce s-a aflat de cazul petrecut în această dimineaţă la „Liceul Calderon”, când un elev de clasa a IX-a l-a lovit pe un coleg de-al său, luni, la Liceul „I.C.
O zonă din Reşiţa intră în reabilitare totală după 30 de ani!
expressdebanat.ro - Caraş-Severin
„Avem o veste extraordinară pentru locuitorii din cartierul Micro III - zona «inelarului»” - aşa începe anunţul făcut astăzi de reprezentaţii Primăriei Reşiţa. După 3 decenii, zona ocolită până acum de utilaje va fi complet modernizată. În zona Colegiului Economic al Banatului Montan, şoferii, dar şi pietonii, au tot „luptat” cu asfaltul serios avariat de…
FOTO. Gabriel Leş a predat conducerea Ministerului Apărării. Mesaj la final de mandat
portalsm.ro - Satu Mare
Gabriel Leş a predat conducerea Ministerului Apărării. Mesaj la final de mandat
Poliţia Mureş, la raport: Peste 80 de infracţiuni constatate în 4 zile!
www.zi-de-zi.ro - Mureş
Poliţiştii mureşeni au acţionat, în perioada 1-4 noiembrie, la nivel judeţean, pentru prevenirea fap
Piesa de teatru „Diagnostic rezervat” cu Anca Sigartău, Claudiu Bleonţ, Jojo, la Suceava
feeds.monitorulsv.ro - Suceava
Ultima ora: Actori indragiti de publicul sucevean, Anca Sigartau, Claudiu Bleont, Catalina Grama Jojo/Doina Teodoru, Claudiu Maier, Damian Victor Oancea, 1-Q Sapro si Teodor Sofian, vor aduce vineri, 29 noiembrie, de la ora 19:00, spectacolul Diagnostic rezervat. Biletele costa 65 de lei si pot fi cumparate de la secretariatul Casei de Cultura a Sindicatelor Suceava, intrare B, etaj I, telefon: 0230 523 718.
Deputatul Cristian Achiţei: Mă voi afla cât voi putea de des în preajma ministrului Transportului şi ministrului Dezvoltării, pentru a-i determina să sprijine proiectele de investiţii din judeţul Botoşani
www.botosaninews.ro - Botoşani
...
Andronache: „Rămân în Parlament. Acolo se va da cea mai mare bătălie şi e nevoie de experienţa mea”
feedproxy.google.com - Braşov
Deputatul Gabriel Andronache a declarat, contactat de newsbv.ro, că nu a acceptat funcţia de secretar general al Guvernului: „De la bun început am stabilit cu preşedintele partidului că rămân vicelider la grupul PNL de la Camera Deputaţilor, pentru că eu consider că cea mai mare bătălie se va da în Parlament, iar aici este nevoie
Accident rutier in zona Doraly Mall din Constanta. Un pieton a fost ranit
www.ziuaconstanta.ro - Constanţa
In urma cu cateva momente, Inspectoratul pentru Situatii de Urgenta Dobrogea a fost solicitat sa intervina in municipiul Constanta, pe soseaua Mangaliei. Din primele informatii, in zona Doraly Mal a ...
Viceprimarul Cristi Ganea, in vizita pe santierul noii gradinite care se va construi in Ploiesti
ph-online.ro - Prahova
Viceprimarul Ploiestiului Cristian Ganea a vizitat, astazi, santierul celei mai noi gradinite ce urmeaza sa se construiasca in Ploiesti, pe strada&nbs...
Cum putem preveni fraudele atunci cand facem cumparaturi online?
ziarmm.ro - Maramureş
Pentru ca sunt mult mai comode iar ofertele sunt mult mai diversificate, cumparaturile online sunt o optiune din ce in ce mai atractiva pentru tot mai multi romani. Insa toate aceste facilitati vin la
Start în retur, favorabil mureşenelor
www.zi-de-zi.ro - Mureş
Miercuri, 6 noiembrie, se dispută partidele etapei a VIII-a, prima din returul Campionatului Naţiona
Adio, Autostrada Ploieşti – Comarnic – Braşov cu chinezi! Guvernul demis nu a apucat să o aprobe, iar cel nou nu o susţine
ph-online.ro - Prahova
Proiectul cu chinezii pentru Autostrada Ploieşti – Comarnic – Braşov nu a mai apucat să fie aprobat de către Guvernul PSD demis. Cum noul Guvern PNL n...
Daniel Funeriu îi ia la rost pe USR-isti: 'Băbăeţi, stop! Nu vă crapă obrazul de ruşine...?'
ph-online.ro - Prahova
Fostul ministru al Educaţiei Daniel Funeriu îi ia la rost pe useriştii care par „obsedaţi” de întrebarea „de ce candidează Paleologu”. „Pentru că aşa...
Philip Morris International lanseaza IQOS 3 DUO in Constanta
www.ziuaconstanta.ro - Constanţa
In cadrul viziunii sale pentru un viitor fara fum, compania continua sa investeasca in cercetare si tehnologii avansate , adaptand produsul la nevoile consumatorilor Constanta, 31 octombrie ...
Arădeanul care a DECAPITAT un om cu DRUJBA, condamnat la 25 de ani de închisoare
newsar.ro - Arad
Citeşte azi ce scriu ziarele de mâine!
Spectacolul „Spărgătorul de nuci”, cu solişti ai Teatrului de Operă şi Balet din Kiev, ...
feeds.monitorulsv.ro - Suceava
Ultima ora: Spectacolul Spargatorul de nuci, cu solisti ai Teatrului de Opera si Balet din Kiev, va avea loc luni, 25 noiembrie, de la ora 19:00, pe scena Casei de Cultura a Sindicatelor Suceava. Din corpul baletului fac parte nu mai putin de 60 de dansatori absolventi ai prestigioaselor scoli de coregrafie din Kiev, Moscova si Sankt Petersburg. Repertoriul companiei numara mai mult de 30 de spectacole de balet clasic si modern.
Tanara, amendata dupa ce a sunat la 112 si a mintit ca este sechestrata
www.ziuaconstanta.ro - Constanţa
O femeie care a alertat in mod fals autoritatile, pretinzand ca este lipsita de libertate intr-o casa din municipiul Alba Iulia, fiind cautata de 20 de politisti si jandarmi, a fost amendata cu 5.500 ...
FOTO. Accident în lanţ. Impact între două maşini şi două TIR-uri lângă Petea
portalsm.ro - Satu Mare
Accident în lanţ. Impact între două maşini şi două TIR-uri lângă Petea
”Și-n ultima zi de guvernare am redus rata şomajului!”
timponline.ro - Bistriţa-Năsăud
(PE) Și-n ultima zi de guvernare am redus rata şomajului! Acum are şi domnu’ Orban loc de muncă! Era şomer, săracu’…!
Ar putea să fie un film de comedie, dar învestirea Guvernului Orban/ a lu’ Iohannis înseamnă aducerea la putere a unui guvern al sărăciei naţionale, în totală contradicţie cu ce v
Concert susţinut de Johann Strauss Ensemble şi Russel McGregor, la Braşov
feedproxy.google.com - Braşov
Sărbătorile de iarnă vor fi celebrate pe ritmul muzicii clasice în şapte oraşe din România, cu ocazia turneului naţional aniversar ,,VIENNA CRYSTAL CHRISTMAS” susţinut de unii dintre cei mai iubiţi muzicieni austrieci, membrii orchestrei JOHANN STRAUSS ENSEMBLE conduşi de maestrul dirijor Russel McGregor. În perioada 11 – 18 decembrie, artiştii vor marca aniversarea celor 15
Tânăr din judeţul Braşov, urmărit de poliţişti în trafic
feedproxy.google.com - Braşov
Poliţişti din cadrul Biroului Rutier Făgăraş efectuează cercetări în cadrul unui dosar penal sub aspectul săvârşirii infracţiunilor de „conducerea unui vehicul fără permis de conducere” şi ,,distrugere din culpă”. În fapt, la data de 04 noiembrie a.c., în jurul orei 00.40, în timp ce desfăşurau activităţi de patrulare, supraveghere şi control trafic rutier pe strada
Ministrul Vela declară de azi război infractorilor şi clanurilor interlope!
expressdebanat.ro - Caraş-Severin
Ion Marcel Vela vine de astăzi să obţină performanţe la Ministerul Afacerilor Interne. Senatorul PNL de Caraş-Severin, singurul bănăţean în cabinetul Orban, a fost astăzi învestit în funcţie în prezenţa preşedintelui României, Klaus Iohannis, a noului premier Ludovic Orban şi a ministrului secretar de stat Dumitru Daniel Chirilă. Misiunea lui Marcel Vela este de a…
Restricţii pe centura Oradea. Constructorii încep joi dezafectarea giraţiei din intersecţia cu strada Universităţii
www.ebihoreanul.ro - Bihor
Traficul rutier pe şoseaua de centură în zona Cimitirului Municipal va fi restricţionat. Constructorii vor începe de joi demontarea parapeţilor şi dezafectarea giraţiei de la intersecţia cu strada Universităţii. Începând din 21 noiembrie până în aprilie 2020, traficul în zonă se va desfăşura pe o singură bandă pe sens pentru desfăşurarea în bune condiţii a lucrărilor la viitorul pasaj suprateran.
CSU Oradea s-a impus cu 3-1 în disputa cu CSS Turda
www.ebihoreanul.ro - Bihor
Voleibalistele de la CSU Oradea au obţinut cea de-a doua victorie din noua ediţie de campionat a Diviziei A2. Orădencele au evoluat la Borş, în jocul considerat acasă, cu CSS Turda şi s-au impus cu 3-1, consolidându-şi cea de-a treia poziţie a clasamentului.
Un film cât o istorie, bazat pe fapte reale! Săptămâna aceasta, în cinematografele cărăşene!
expressdebanat.ro - Caraş-Severin
O adevărată lecţie de istorie va fi predată săptămâna aceasta celor care aleg să meargă la cinema, la unul dintre cele mai aşteptate filme produse în România.
Singura creşă din municipiul Suceava a fost închisă de DSP
feeds.monitorulsv.ro - Suceava
Ultima ora: Singura cresa din municipiul Suceava, unde sunt inregistrati 140 de copii cu varste pana la 3 ani, a fost inchisa, luni, de Directia de Sanatate Publica DSP, dupa ce trei copii au fost internati in spital cu infectie cu rotavirus. Directorul DSP Suceava, dr.
Bărbat din Șona, reţinut pentru a treia oară, în ultimele 20 de zile, pentru furt. Locuieşte fără forme legale în Alba Iulia
ziarulunirea.ro - Alba
Un bărbat din comuna Șona, care locuieşte fără forme legale în Alba Iulia, a fost reţinut, pentru a treia oară, în ultimele 20 de zile, pentru furt. Va fi
Femeie din Alba Iulia, amendată după ce a sunat la 112 şi a spus că este lipsită de libertate, într-o casă din municipiu
ziarulunirea.ro - Alba
O femeie din Alba Iulia a fost amendată cu 5.500 de lei după ce a alertat fals autorităţile. Aceasta a sunat pe 112 şi a spus că este lipsită de
Anunt important de la Primaria Constanta despre alegerile prezidentiale
www.ziuaconstanta.ro - Constanţa
Pentru buna desfasurare a exercitarii dreptului de vot a cetatenilor municipiului Constanta la alegerile prezidentiale, care vor alea loc in data de 10 noiembrie 2019, cetatenii trebuie sa aiba ...
Anunt important de la Primaria Constanta despre alegerile prezidentiale
www.ziuaconstanta.ro - Constanţa
Pentru buna desfasurare a exercitarii dreptului de vot a cetatenilor municipiului Constanta la alegerile prezidentiale, care vor alea loc in data de 10 noiembrie 2019, cetatenii trebuie sa aiba ...
Serviciul de stare civila Constanta. Publicatii de casatorie 04 noiembrie 2019
www.ziuaconstanta.ro - Constanţa
Ghenu Razvan Ionut - Bratu Cristina Neacsu Adrian Valeriu Tutuianu Loredana Ionita Tudor Narla Nicoleta Buzea Daniel Botea Alinusa Mariana Cirlig Vasile Florea Ionela Memet Allan - ...
Serviciul de stare civila Constanta. Publicatii de casatorie 04 noiembrie 2019
www.ziuaconstanta.ro - Constanţa
Ghenu Razvan Ionut - Bratu Cristina Neacsu Adrian Valeriu Tutuianu Loredana Ionita Tudor Narla Nicoleta Buzea Daniel Botea Alinusa Mariana Cirlig Vasile Florea Ionela Memet Allan - ...
FOTO: Acţiune a poliţiştilor din Alba pentru combaterea conducerii autovehiculelor de către persoane aflate sub influenţa băuturilor alcoolice sau a substanţelor psihoactive
ziarulunirea.ro - Alba
În perioada 01- 03 noiembrie 2019, poliţiştii rutieri din judeţul Alba au organizat o acţiune pentru combaterea conducerii autovehiculelor de către
Daniel Suciu: Plec cu fruntea sus
timponline.ro - Bistriţa-Năsăud
”Pentru că abia mâine s-a stabilit că va fi predarea mandatului, astăzi nu voi vorbi despre bilanţ sau cifre, ci despre oameni şi comunităţi. În fiecare zi din cele 8 luni de mandat am încercat să onorez această uriaşă responsabilitate. Am avut uşa deschisă pentru absolut toată lumea, am mers peste
Actorul Marius Bodochi, pe afişul lunii noiembrie al Filarmonicii
www.zi-de-zi.ro - Mureş
A sosit şi luna noiembrie, prilej pentru managerul Filarmonicii de Stat Tîrgu-Mureş, dirijorul Vasil
O fi bine, o fi rau? Elevii de la Spiru care intarzie la ore sunt tinuti la poarta
ph-online.ro - Prahova
Surpriză neplăcută, luni dimineaţă, pentru elevii Colegiului Naţional Spiru Haret din Ploieşti, care au întârziat la prima oră. Poarta unităţii de înv...
CFR face angajări la Braşov
feedproxy.google.com - Braşov
Compania Naţională de Căi Ferate CFR SA, administrator al reţelei feroviare naţionale, a demarat programul de selecţie pentru ocuparea a 90 de posturi de ingineri, absolvenţi din ultimii 3 ani, în cele mai importante domenii de specialitate ale companiei. CFR SA oferă absolvenţilor din instituţiile de învăţământ tehnic superior oportunităţi de dezvoltare a unei cariere
A mâncat 42 de ouă. Ar fi trebuit 50 dar nu a mai apucat, i s-a „tăiat”… de tot
ph-online.ro - Prahova
Bărbatul pariase cu un prieten că va mânca 50 de ouă. Totul a decurs conform planului până la oul cu numărul 42 care i-a fost fatal. Trebuia să...
Autobuz cu 25 de persoane, implicat intr-un accident rutier, in Ploiesti
www.ziuaconstanta.ro - Constanţa
Un accident rutier a avut loc astazi, pe strada Postei, din Ploiesti. In eveniment este implicat un autobuz cu 25 de persoane si un autoturism. Din primele informatii, o persoana din autobuz este ranita ...
Ministrul de Interne, Marcel Vela declară, de azi război infractorilor şi interlopilor
expressdebanat.ro - Caraş-Severin
Ion Marcel Vela, vine de astăzi să obţină performanţe la Ministerul Afacerilor Interne. Senatorul PNL de Caraş-Severin, singurul bănăţean în cabinetul Orban a fost astăzi învestit în funcţie în prezenţa preşedintelui României, Klaus Iohannis, a noului premier Ludovic Orban şi a ministrului secretar de stat Dumitru Daniel Chirilă. Misiunea lui Marcel Vela este de a…
Accident in Ploiesti, pe strada Postei. Un autobuz si un autoturism implicate
ph-online.ro - Prahova
Un accident de circulatie s-a produs in jurul orei 14:00 pe strada Postei din Ploiesti. Potrivit informatiilor primite prin apelul unic la 112,...
Beat bine, un sătmărean a intrat cu maşina într-un stâlp şi s-a răsturnat în şanţ
portalsm.ro - Satu Mare
Beat bine, un sătmărean a intrat cu maşina într-un stâlp şi s-a răsturnat în şanţ
”Color Circle”, soluţii pentru facilitarea tranziţiei către economia circulară
www.zi-de-zi.ro - Mureş
Facultatea de Inginerie şi Tehnologia Informaţiei, a găzduit la finele lunii octombrie, în AULA MAGN
LOCURI de MUNCĂ în Alba: 355 posturi disponibile în Alba Iulia, Aiud, Blaj, Câmpeni, Cugir şi Sebeş. Oferta completă AJOFM
ziarulunirea.ro - Alba
AJOFM Alba a transmis locurile de muncă vacante la data de 5 noiembrie 2019, în Alba Iulia, Blaj, Câmpeni, Aiud, Cugir şi Sebeş. În judeţ sunt
Vă faceţi CUMPĂRĂTURILE de pe NET? Poliţia Română arată cum vă apăraţi de FRAUDELE ONLINE
ziarharghita.ro - Harghita
Tot mai mulţi dintre dumneavoastră optaţi pentru cumpărăturile online. Este mai comod, oferta mult mai diversificată, dar toate aceste facilităţi vin cu
E aniversare la Teatrul Radu Stanca. Un actor îşi serbează ziua de naştere
www.oradesibiu.ro - Sibiu
Este prinţesa din „Povestea prinţesei deocheate”, regia Silviu Purcărete, spectacol care a primit Premiul UNITER pentru cel mai bun spectacol al anului 2018 în România şi prinţul din „Yvonne”, regia Botond Nagy, a câştigat în anul 2017, Premiul UNITER pentru debut, pentru rolul Georg din spectacolul secţiei germane „Märtyrer/Martiri”, regia…
FOTO! Noi lucrări pe drumurile naţionale din judeţul Botoşani. Se fac reparaţii şi se montează semnalizări de iarnă
www.botosaninews.ro - Botoşani
...
Târgu-Mureş: Femeie omorâtă pe trecerea de pietoni!
www.zi-de-zi.ro - Mureş
Luni, 4 noiembrie, în jurul orei 11.50, pe strada Gheorghe Doja din municipiul Târgu-Mureş, un bărba
Ministrul Muncii anunta o reducere a structurii ministerului si verificari serioase cu privire la bugetul de pensii
ziarmm.ro - Maramureş
Noul ministru al Muncii, Violeta Alexandru, anunta o reducere a structurii ministerului dar si verificari serioase cu privire la situatia bugetului de pensii in conditiile in care, potrivit acesteia,
Proiect pilot în România: parapeţi de protecţie pe rulouri
www.tion.ro - Timiş
CNAIR a demarat lucrări de montare a gardurilor de protecţie pe rulouri pe Drumurile Naţionale din România.
Când vin oamenii de la televizor
www.ebihoreanul.ro - Bihor
Că e o vedetă media, artist, politician ori simplu concurent la emisiuni de talente, omul de la televizor continuă să fascineze. Mirajul televiziunii creează în timp record celebrităţi şi îi menţine în viaţă pe cei dependenţi de aparate - de aparatul de filmat, de microfon, de luminile din platou, de camera de filmat. Sâmburele dorinţei de a fi văzut şi recunoscut de toată lumea pare să germineze în fiecare dintre noi.
Garda de Mediu, în control la Satu Mare. Inspecţii pe bandă rulantă şi amenzi de peste 280 mii lei
portalsm.ro - Satu Mare
Garda de Mediu, în control la Satu Mare. Inspecţii pe bandă rulantă şi amenzi de peste 280 mii lei
Fiu de preot cu BMW seria 5 la 19 ani, beat, fără permis, urmărit cu 140 km/h prin Iaşi, de poliţişti
www.botosaninews.ro - Botoşani
...
Violenţe la o şcoală din Timişoara: Un elev l-a lovit cu pumnul pe un coleg de clasa a IX-a
www.tion.ro - Timiş
Marţi, înaintea primei ore de curs, la Liceul „Jean Louis Calderon” din Timişoara, un elev l-a lovit cu pumnul pe un alt coleg, de clasa a IX-a. Elevul care a fost lovit în zona nasului a fost transportat la spital, iar elevul care l-a agresat va fi sancţionat disciplinar. Sancţiunea poate însemna scăderea notei la purtare sau mutarea disciplinară într-o altă clasă.
Singura ”casă a viitorului” din Mureş îşi deschide porţile!
www.zi-de-zi.ro - Mureş
Casele viitorului sau casele eficiente îşi deschid oficial porţile, două dintre aceste clădiri aflân
Conferinţa Memorială „Joannes Caioni 390″
ziarharghita.ro - Harghita
Centrul Cultural Judeţean Harghita, Consiliul Judeţean Harghita, Departamentul Pentru Relaţii Interetnice şi Uniunea Cadrelor Didactice din România vă
Trafic de cosmar in Ploiesti. Se asfalteaza Bulevardul Castanilor, inainte de alegeri
ph-online.ro - Prahova
Inca de la primele ore ale diminetii, traficul in Ploiesti a fost de cosmar. Pe tronsonul Bariera Bucuresti - Centru se circula bara la bara, din cauz...
Trafic de cosmar in Ploiesti. Se asfalteaza Bulevardul Castanilor, inainte de alegeri
ph-online.ro - Prahova
Inca de la primele ore ale diminetii, traficul in Ploiesti a fost de cosmar. Pe tronsonul Bariera Bucuresti - Centru se circula bara la bara, din cauz...
Ultraşi dinamovişti, sancţionaţi pentru acte de vandalism după meciul Foresta-Dinamo
feeds.monitorulsv.ro - Suceava
Ultima ora: Un grup de ultrasi dinamovisti, care si-au exteriorizat in mod deplasat trairile dupa meciul Foresta - Dinamo, au fost sanctionati pentru acte de vandalism, dupa ce au fost identificati in baza imaginilor video ale sistemului de supraveghere din oras.
Judetul Constanta: Incendiu la o locomotiva, intre Halta Dorobantu si Nazarcea
www.ziuaconstanta.ro - Constanţa
Pompierii constanteni actioneaza, in aceste momente, pentru stingerea unui incendiu ce se manifesta la o locomotiva decuplata de la garnitura trenului de marfa, intre Halta Dorobantu si Nazarcea. ...
Ludovic Orban, declaraţii în EXCLUSIVITATE pentru Ziarul Argeşul
ziarulargesul.ro - Argeş
... Cu privire la schimbările şefilor de instituţii publice din Argeş Azi-dimineaţă, Ludovic Orban, prim-ministrul României, a avut amabilitatea să ne răspundă telefonic la câteva întrebări legate de evenimentul politic pe care-l trăim cu toţii, şi anume schimbarea Guvernului. Este evident că...
Fostul primar al Timişoarei, condamnat la închisoare! Robu: ”Mă dezamăgeşte domnul Ciuhandu”
expressdebanat.ro - Caraş-Severin
Procesul finanţării din bani publici a Poli Timişoara, cea deţinută de Marian Iancu, s-a finalizat cu verdicte diferite faţă de cea a dat prima instanţă. Curtea de Apel Timişoara a dictat sentinţe de închisoare cu suspendare pentru patru persoane, între care şi primarul Gheorghe Ciuhandu. Faptul că celor patru li se şi impută prejudiciu a …
Avertismentul făcut de APC: Cum să NU vă lăsaţi PĂCĂLIȚI de BLACK FRIDAY
newsar.ro - Arad
Citeşte azi ce scriu ziarele de mâine!
Alegerile prezidenţiale: Prefectura împarte buletinele de vot şi ştampilele la secţii
www.oradesibiu.ro - Sibiu
Prefectul judeţului Sibiu, Maria Minea, a stabilit, prin Ordinul nr. 455/24.10.2019, graficul de distribuire a buletinelor de vot şi a materialelor necesare desfăşurării procesului electoral pentru alegerea Preşedintelui României din data de 10 noiembrie 2019 (primul tur de scrutin), respectiv 24 noiembrie 2019 (al doilea tur de scrutin, dacă va…
Spărgătorul de pe Centrul Vechi a fost prins
www.gazetadambovitei.ro - Dâmboviţa
Lucrătorii Biroului Investigaţii Criminale l-au prins pe autorul spargerilor de ieri noapte de pe Centrul Vechi. Este vorba despre M.L.A,
Ponta îl dă afară pe Daniel Constantin din Pro România
ziarulargesul.ro - Argeş
Fostul premier Victor Ponta anunţă că parlamentarii Pro România care au votat luni pentru învestirea Guvernului Orban, în ciuda deciziei contrare luate în forurile statutare, vor fi daţi afară din partid. Printre cei care au votat altfel decât cerea partidul se numără şi piteşteanul Daniel...
Dacia electrică: Cât de scump va fi cel mai nou model din gamă
ziarulunirea.ro - Alba
Dacia se pregăteşte să-şi extindă gama cu o ofertă electrică, bazată pe un model Renault deja existent. Ultimele informaţii indică faptul că preţul
(P) “Începe orbanizarea instituţiilor statului”
www.gazetadambovitei.ro - Dâmboviţa
Liberalii nu se sfiesc să declare public că vor politiza instituţiile statului şi că vor da afară bugetarii, pe
Clubul foto de la o şcoală din Timiş unde elevii au obţinut peste o sută de premii
www.tion.ro - Timiş
Într-o şcoală din Timiş funcţionează un club foto, unde învaţă să „deseneze cu lumină” 18 elevi din localitate, la ora actuală. Elevii din acest club foto din Timiş au obţinut peste o sută de premii în aproape cinci ani de activitate a clubului.
Sibienii invitaţi să ajute la renovarea secţiei de Cardiologie – Și tu te poţi implica
www.oradesibiu.ro - Sibiu
“O cană de fericire” va însemna o sumă ce va ajuta la renovarea Secţiei de Cardiologie a Spitalului Judeţean Sibiu. Proiectul celor de la Rotaract îşi propune să adune la târgul de Crăciun cât mai mulţi bani pentru acest scop. Cănile vor putea fi cumpărate, în schimbul unei donaţii, de…
Autoutilitară încărcată cu cherestea fără documente interceptată de poliţişti în zona oraşului Vlăhiţa
ziarharghita.ro - Harghita
Prins c-un transport ilicit De cherestea răşinoase, Un PeVe i s-a-ntocmit, Cu efecte… păguboase! Aseară, în jurul orei 19:15, un bărbat de 41 de ani, din
Un comerciant din Salonta a vrut să-şi monteze un aparat de aer condiţionat în magazin şi a rămas fără el. Vezi ce s-a întâmplat!
www.ebihoreanul.ro - Bihor
Un comerciant din Salonta care a vrut să-şi monteze, luni, un aparat de aer condiţionat în magazin şi a lăsat partea exterioară pe stradă, pentru a fi amplasată pe perete, s-a trezit fără ea, fiind furată de un hoţ care se afla în preajmă. Norocul păgubitului a fost că infractorul nu a ajuns prea departe, întrucât în zonă se afla şi un echipaj de poliţişti de ordine publică...
Gheorghe Sorescu: La partea de dezvoltare lucrurile stau de-a dreptul catastrofal la nivelul Consiliului Judeţean
www.botosaninews.ro - Botoşani
...
Presedintele CJC, Marius Horia Țutuianu - Semnam contractul pentru restaurarea cetatii Carsium"
www.ziuaconstanta.ro - Constanţa
La finalul sedintei de Consiliu Judetean, presedintele CJC, MArius Horia Tutuianu, a declarat ca va semna contractul privind proiectarea si restaurarea Cetatii Carsium. ...
In ultima saptamana de campanie, Dan Barna printre constanteni (galerie foto)
www.ziuaconstanta.ro - Constanţa
Candidatul Aliantei USR - PLUS se afla astazi la Constanta in ultima saptamana de campanie inainte de primul tur al prezidentialelor. Dan Barna se afla acum pe strada Stefan cel Mare din Constanta ...
PNL vrea schimbarea rapidă a prefectului. Ce se va întâmpla cu şefii de instituţii
timponline.ro - Bistriţa-Năsăud
Preşedintele PNL Bistriţa-Năsăud, Ioan Turc, a spus că liberalii îşi doresc ca, până la primul tur al alegerilor prezidenţiale, care va fi duminică, prefectul actual să fie înlocuit din funcţie.
Ioan Turc a fost întrebat dacă liberalii au transmis vreo listă la Bucureşti cu propuneri pentru fun
NEAMȚ: Tânăr prins drogat la volan în Piatra-Neamţ
www.stiri-neamt.ro - Neamţ
Poliţiştii rutieri din cadrul Poliţiei municipiului Piatra Neamţ au depistat în trafic, ieri, un bărbat din Piatra Neamţ, aflat sub influenţa substanţelor
22 de permise de conducere reţinute şi 200 de amenzi date în trei zile de controale în trafic
feeds.monitorulsv.ro - Suceava
Ultima ora: Serviciul Rutier Suceava si formatiunile rutiere din cadrul politiilor municipale si orasenesti au desfasurat in perioada 1-3 noiembrie actiuni punctuale pe raza judetului, pe una din principalele cauze generatoare de evenimente rutiere grave, respectiv conducerea de vehicule pe drumurile publice de catre persoane aflate sub influenta alcoolului sau a drogurilor.
Scrisoare deschisă noului ministru al Fondurilor Europene, pentru Aeroportul de la Braşov
feedproxy.google.com - Braşov
Proiectul construirii aeroportului Internaţional Ghimbav Braşov este unul necesar economiei şi turismului României, nu doar judeţului Braşov. Titularul investiţiei – Consiliul Judeţean Braşov – şi-a asumat să realizeze această investiţie cu resurse proprii, cu resurse împrumutate dar şi cu o primă alocare din bugetul de stat, aprobată în bugetul de stat pentru anul 2019. Pe măsură
Autoturism lovit de tren, în Braşov
feedproxy.google.com - Braşov
Un accident feroviar a avut loc, în urmă cu scurt timp, un autoturism a fost lovit de tren la ieşire din Râşnov, în zona Chimica spre Zărneşti. La faţa locului se deplasează o autospecială cu apă şi spumă şi un echipaj SMURD. Potrivit I.S.U. nu sunt victime. Share via: 0 Shares Facebook Twitter LinkedIn More
Orban de Ungaria îl felicită pe Orban de România
ziarharghita.ro - Harghita
Marţi dimineaţă, premierul ungar Viktor Orbán l-a felicitat printr-o scrisoare pe Ludovic Orban, noul prim-ministru al României, a transmis, către agenţia
Anunt
www.infobraila.ro - Brăila
EVW Holding SRL, cu sediul în Gilău, str. Principală, nr. 1333, jud. Cluj, J12/2088/1997, CUI RO 9951956 declara pierdut Avizul de functionare nr. 7649/02.07.2014 emis de Primaria Braila. Se declaram nul. Comentarii comentariu
TUPEU fără limită - Anchetă în Poliţie, după ce un prahovean i-a furat ţigările unui poliţist din buzunar/ VIDEO
ph-online.ro - Prahova
Poliţia Prahova a început o anchetă după ce un bărbat a fost filmat când fură ţigările din buzunarul unui poliţist, în timpul unei intervenţii. La sce...
O minoră de 10 ani A FUGIT DE ACASĂ şi CERȘEȘTE pe străzile Aradului
newsar.ro - Arad
O minoră surprinsă la cerşit alături de doi adulţi, în zona bisericii din cartierul Subcetate, a fost identificată de poliţiştii locali cu atribuţii de ordine publică duminică, 3 noiembrie 2019, în urma unui apel la numărul de telefon al Dispeceratului DGPL Arad. Cele două persoane alături de care micuţa a fost găsită au fost sancţionate
Judetul Constanta: Accident rutier in Lazu, pe trecerea de pietoni. Echipajele de interventie la fata locului (galerie foto)
www.ziuaconstanta.ro - Constanţa
In urma cu putin timp, unaccident rutier a avut loc in Lazu, judetul Constanta. Din primele informatii accidentul s-a petrecut pe trecerea de pietoni, pe sensul de mers catre Agigea. La fata ...
Șoferii de camioane blochează autostrada Arad-Nădlac din cauza timpilor de aşteptare de la vamă
www.tion.ro - Timiş
Șoferii de camioane trebuie să aştepte mai bine de 10 ore ca să se iasă din România pe la Nădlac II. Aşa că blochează autostrada.
Ședinta extraordinara la Consiliul Judetean Constanta (galerie foto)
www.ziuaconstanta.ro - Constanţa
In aceste momente, in sala Remus Opreanu din cadrul Palatului Administrativ - Consiliul Judetean Constanta, are loc sedinta extraordinara a Consiliului Judetean Constanta, cu urmatorul proiect al ...
Femeie ameninţată cu toporul în judeţul Satu Mare. Vecinul i-a spus că o taie
portalsm.ro - Satu Mare
O femeie din comuna Certeze, judeţul Satu Mare a fost ameninţată cu toporul. Femeia spune că un vecin, în vârstă de 74 de ani, a ameninţat-o cu toporul şi i-a spus că o taie.
Consiliul Judetean va organiza la Milano proiectul „Dor de Romania – Maramuresul si Diaspora”
ziarmm.ro - Maramureş
Consilierii judeteni au aprobat in sedinta ordinara din 29 octombrie participarea judetului la realizarea proiectului „Dor de Romania - Maramuresul si Diaspora”, proiect care va consta in organizarea
CONCERTUL ANIVERSAR „VIENNA CRYSTAL CHRISTMAS” ÎN TURNEU NAȚIONAL
ziarharghita.ro - Harghita
Regal muzică clasică pentru al 15-lea an consecutiv în România! Sărbătorile de iarnă vor fi celebrate pe ritmul muzicii clasice în şapte oraşe din
Studenţiada aduce distracţia la Universitatea „Eftimie Murgu”
expressdebanat.ro - Caraş-Severin
„Studenţiada 2019”, un festival al organizaţiilor studenţeşti membre în Uniunea Naţională a Studenţilor din România, este organizată de Liga Studentilor UEMR în parteneriat cu Casa de Cultură a Studenţilor Reşiţa şi cu Universitatea „Eftimie Murgu” din Reşiţa.
Disperare intr-o familie din Braila / Femeie de 72 de ani disparuta de acasa. Familia se teme de ce este mai rau
www.infobraila.ro - Brăila
La data de 4.11.2019 a disparut de la domiciliul sau din municipiul Braila, Serban Jeana in varsta de 72 de ani. Persoana disparuta are urmatoarele semnalmente: – 1,50 m inaltime, aproximativ 54 kg, par scurt de culoare inschisa Femeia a disparut de acasa intre orele 10:30-12:30, din zona Dorobantilor nr. 50 (langa Profi). Purta pantaloni […]
Lupte GRELE pentru fotoliul de PREFECT! Pierde Falcă în faţa lui Cionca?
newsar.ro - Arad
Citeşte azi ce scriu ziarele de mâine!
Stelian Dolha le-a dat două veşti triste lui Radu Moldovan şi Ioan Deneş
timponline.ro - Bistriţa-Năsăud
În prima zi în care liberalii au intrat la guvernare, prim-vicepreşedintele PNL Bistriţa-Năsăud, Stelian Dolha, a ţinut să le transmită două mesaje, unul lui Radu Moldovan, preşedintele PSD Bistriţa-Năsăud şi al CJ, altul senatorului Ioan Deneş, fostul ministru al Apelor şi Pădurilor în Cabinetul Dă
I s-a făcut rău şi a murit
ziarulargesul.ro - Argeş
O femeie din Piteşti a murit astăzi în zona pieţei Smârdan după ce a anunţat persoanele din apropiere că îi este foarte rău. În scurt timp, şi-a pierdut cunoştinţa şi nimeni nu a avut ce să-i mai facă. Nu sunt suspiciuni cu privire la producerea decesului, cauzele fiind medicale. Avea 89 de ani...
Filmele toamnei, proiectate la Miercurea Ciuc. Dana Rogoz, printre invitaţii speciali
ziarharghita.ro - Harghita
Cum e să fii studentă şi să fii abuzată de profesorul tău? Cum e să pleci din ţară şi să găseşti acolo dragostea, dar şi o mare provocare? Cum e să fii în
NEAMȚ: Țepar pe internet, prins de poliţiştii pietreni
www.stiri-neamt.ro - Neamţ
Operaţiune de succes pentru poliţiştii din Piatra-Neamţ! În urma unei percheziţii în municipiul Bucureşti, au reţinut un tânăr bănuit de înşelătorii
Majorarea salariului minim, pasată între guverne. Ce spun Marius Budăi şi noul ministru al Muncii
www.botosaninews.ro - Botoşani
...
Cum a ajuns o comună din Alba să devenină primul „smart village” din ţară
ziarulunirea.ro - Alba
Comuna Ciugud, campioană la absorbţia de fonduri europene, a reuşit să atragă în ultimii ani peste 30 de milioane de lei din fonduri europene pentru
FOTO. Au dăruit o şansă la viaţă. Poliţiştii de frontieră sătmăreni au donat sânge
portalsm.ro - Satu Mare
Au dăruit o şansă la viaţă. Poliţiştii de frontieră sătmăreni au donat sânge
Sinteza zilei. Document devastator pentru Dan Barna
ph-online.ro - Prahova
Dosarul penal al proiectelor finanţate din bani europeni ale lui Dan Barna, redeschis de DNA pe 28 octombrie 2019, a fost clasat nelegal de DNA Alba p...
Sibiul poate fi duminică capitala politică a României
www.oradesibiu.ro - Sibiu
Sibiul poate fi duminică, capitala politică a României, fiind ziua în care va avea loc primul tur al alegerilor prezidenţiale. Sunt aşteptaţi să voteze la Sibiu, doi candidaţi la funcţia de preşedinte şi doi membri din Guvernul Orban. Iohannis, Barna, Turcan şi Costache - aşteptaţi la vot duminică la Sibiu…
A inceput sa o scalde! Ce spune Orban despre majorarea salariului minim
ph-online.ro - Prahova
Premierul Ludovic Orban a declarat marţi că Executivul va lua o decizie în privinţa creşterii salariului minim în urma unei analize a efectelor aceste...
Care sunt priorităţile orădeanului Marcel Boloş la conducerea Ministerului Fondurilor Europene
www.ebihoreanul.ro - Bihor
Miniştrii Cabinetului Orban îşi preiau, marţi, efectiv, mandatele, prima zi fiind dedicată evaluării situaţiei din fiecare minister, după guvernarea PSD. Ministrul Fondurilor Europene, orădeanul Marcel Boloş, a anunţat că principala sa preocupare este evitarea riscului de dezangajare de fonduri. 'Sper să putem trece cu succes primul test pe care îl avem până la sfârşitul anului, acela de a evita riscul de dezangajare de fonduri”, a spus el.
Amenzi pentru reşiţeni în schimbul mobilierului vechi şi al molozului
expressdebanat.ro - Caraş-Severin
Mai mulţi cetăţeni ai oraşului de pe Bârzava au aruncat deşeuri şi mobilier pe domeniul public. Autorităţile locale i-au idenficat şi sancţionat ca atare pe cei care nu au dat dovadă de spirit civic.
L-ati vazut? Un minor de 13 ani din Fersig a disparut de acasa
ziarmm.ro - Maramureş
Politistii maramureseni cauta un minor de 13 ani, care a plecat luni, 4 noiembrie, in jurul orei 12.00 de la locuinta sa din satul Fersig, comuna Satulung si pana in prezent nu s-a mai intors. Pop Cat
Ion Ștefan, ministrul Dezvoltarii, prima minciună după preluarea funcţiei
ph-online.ro - Prahova
Ministrul Dezvoltării se laudă că a rezolvat problema care a creat controverse atunci când a fost nominalizat. Ion Ştefan susţine că şi-a plătit toate...
Lupta pentru Cotroceni, la pariuri! Cine e favorit să ajungă preşedintele României?
feedproxy.google.com - Braşov
Casele de pariuri din România au stabilit cotele pentru alegerile prezidenţiale, care vor avea loc pe 10 noiembrie. Bookmakerii au un mare favorit pentru scrutinul de peste câteva zile. Acesta este actualul preşedinte al României, Klaus Iohannis. La unele agenţii de pariuri, liderul PNL nu are nici măcar cotă că va ajunge în turul 2,
Accident grav pe Calea Feldioarei. 2 pietoni au fost spulberaţi de o maşină
feedproxy.google.com - Braşov
Inspectoratul pentru Situaţii de Urgenţă (ISU) Braşov a fost alertat cu puţin înainte de orele prânzului să inervină la un accident care a avut loc pe Calea Feldioarei, lângă Kronospan. Purtătorul de cuvânt al ISU Braşov, maior CIprian Sfreja, a precizat că doi pietoni au fost loviţi de un autoturism. „O victima este în stop
Două noi contracte de asociere semnate, astăzi, la sediul CJD
www.gazetadambovitei.ro - Dâmboviţa
COMUNICAT DE PRESĂ Sala Unirii a Consiliului Judeţean Dâmboviţa a găzduit, astăzi, 5 noiembrie 2019, evenimentul de semnare a
Constanta: Instructor auto, prins baut la volan
www.ziuaconstanta.ro - Constanţa
Un instructor auto a fost depistat, astazi, in timp ce conducea un autoturism, sub influenta bauturilor alcoolice. Potrivit IPJ Constanta, politistii Biroului Rutier Constanta au depistat un barbat ...
Politistii baimareni, masuri ferme in cazul agresiunii de la cinema
ziarmm.ro - Maramureş
Prin sanctionarea ferma a actelor de violenta, politistii isi doresc sa descurajeze agresivitatea, sa condamne astfel de manifestari in spatiul public pentru ca orice activitate sa se desfasoare in co
Informare cu privire la situaţia pestei porcine africane în judeţul Ialomiţa
obiectiv.net - Ialomiţa
Direcţia Sanitară Veterinară şi pentru Siguranţa Alimentelor Ialomiţa informează proprietarii/deţinătorii de porcine, atât din exploataţiile comerciale cât şi din gospodăriile... Vezi tot
DSVSA Alba: Noi măsuri de prevenire a răspândirii Pestei Porcine Africane pe teritoriul judeţului
ziarulunirea.ro - Alba
Direcţia Sanitară Veterinară şi pentru Siguranţa Alimentelor (DSVSA) Alba, ca urmare a confirmării unui focar de Pestă Porcină Africană în Munţii Apuseni,
Icoană vindecătoare de cancer, adusă marţi la biserica Spitalului TBC
www.oradesibiu.ro - Sibiu
Icoana "Pantanassa" va fi adusă marţi, la ora 17.00, la biserica din curtea Spitalului TBC din Sibiu, anunţă preotul Cătălin Dumitrean. Icoana va rămâne la Sibiu, timp de o săptămână. Icoană cunoscută pentru mai multe minuni, mai ales pentru vindecarea bolnavilor de cancer Această Icoană este cunoscută pentru multele minuni…
Târgul de Crăciun vine cu surprize – patinoar modern şi concerte de top în Piaţa Mare
www.oradesibiu.ro - Sibiu
Mai sunt 10 zile până la deschiderea Târgului de Crăciun din Piaţa Mare. sibienii şi turiştii vor avea parte de surprize, iar Atelierul lui Moş Crăciun vine cu activităţi noi pentru cei mici. Și de la căsuţe vor putea fi cumpărate cadouri inedite, aduse la Sibiu de artişti handmade. Ediţia…
Gala Excelenţei Bănăţene, la o nouă ediţie! S-a dat startul înscrierilor!
expressdebanat.ro - Caraş-Severin
S-au deschis înscrierile ediţiei a VI-a a Galei Excelenţei Bănăţene. Evenimentul din acest an este dedicat comemorării a 30 de ani de la Revoluţia Română declanşată în Banat, la Timişoara.
Ioan Turc: PNL începe guvernarea în forţă arătând că ştie ce trebuie făcut
timponline.ro - Bistriţa-Năsăud
Preşedintele PNL Bistriţa-Năsăud Ioan Turc a spus, marţi, într-o conferinţă de presă, că ”acţiunea PNL de înlăturare de la putere al celui de-al treilea şi cel mai toxic guvern PSD este un gest de responsabilitate politică înainte de orice”.
”Preşedintele Ludovic Orban şi PNL nu am ales calea uş
Biciclistul şi-a rupt mâna în accident
ziarulargesul.ro - Argeş
# A fost acroşat de un autoturism al cărui şofer a pierdut controlul volanului şi a intrat pe contrasens Ieri seară, un eveniment rutier soldat cu rănirea unui bărbat a avut loc la Pietroşani, şoferul şi victima având opinii diferite referitoare la împrejurările în care s-a produs accidentul...
Trupa Uniforma pregăteşte un concert tare pentru fanii timişoreni
www.tion.ro - Timiş
Uniforma vine la Timişoara şi invită publicul la o seară de post punk exploziv.
Accident rutier pe strada Baba Novac din Constanta. Doua autoturisme implicate. Doua victime
www.ziuaconstanta.ro - Constanţa
In urma cu cateva momente, Inspectoratul pentru Situatii de Urgenta Dobrogea a fost solicitat sa intervina in municipiul Constanta. Din primele informatii, este vorba despre un accident rutier ...
Baia Mare: Targul de Craciun se va desfasura in Piata Libertatii. Vezi aici, cand se deschide targul si care va fi programul de functionare al patinoarului
ziarmm.ro - Maramureş
Targul de Craciun 2019 se va desfasura in Piata Libertatii in perioada 30 noiembrie-12 ianuarie 2020. In cadrul targului vor fi desfasurate activitati de alimentatie publica, artizanat, dar si activit
Ploaia l-a sabotat pe Robu – încă nu se poate circula pe podul Eroilor!
expressdebanat.ro - Caraş-Severin
Ploaia a împiedicat terminarea marcajelor pe podul Eroilor, astfel încât, deşi primarul a promis că se va da drumul la trafic luni dimineaţă, timişorenii încă nu puteau traversa zona nici în această dimineaţă. În ciuda faptului că marcajele de pe pod, necesare pentru buna desfăşurare a traficului auto, au fost realizate, trecerea tot nu este…
Întâlnire Ludovic Orban – Viktor Orban?
www.zi-de-zi.ro - Mureş
Premierul Ungariei, Viktor Orban, i-a trimis o scrisoare de felicitare liderului PNL Ludovic Orban p
Viitorul nostru nu poate fi diferit dacă facem mereu aceleaşi alegeri
www.ebihoreanul.ro - Bihor
La aceste alegeri prezidenţiale nu este vorba despre un candidat sau altul. Îi cunoaştem pe toţi, cu bune şi cu limitele lor. Pe unii chiar de mulţi ani, cum ar fi Klaus Iohannis, Viorica Dăncilă, Mircea Diaconu, Toader Paleologu, oameni care sunt de mult în politică, dar nu au reuşit să producă schimbările care să ne facă viaţa mai bună. Bilanţul lor este valul de români care au plecat din România pentru că au simţit că nu mai au nicio şansă la o viaţă împlinită în ţara lor.
Concurs de fotografie pentru tinerii din Braşov
feedproxy.google.com - Braşov
Liceenii şi tinerii din Braşov sunt invitaţi să participe la un concurs de fotografie care îi pune în mişcare pentru a fotografia locuri, poteci sau vârfuri de munte din jurul oraşului nostru. Personalitatea şi originalitatea care se vor regăsi în fotografiile trimise vor fi puse în legătură cu istoria potecilor, cabanelor, poveştilor de munte de
Cutremur, marţi dimineaţă, în Vrancea
www.jurnaldevrancea.ro - Vrancea
În Zona Seismică Vrancea s-au produs două cutremure, marţi dimineaţă. Un seism cu magnitudinea de 3,6 grade pe scara Richter a avut loc la ora 09:19, în | Jurnal de Vrancea - Stiri din Vrancea si Focsani
Ce spun distrusi de durere, parintii baiatului disparut la Pecineaga: "Sper sa nu-l fi luat nimeni, sa isi bata joc de el"
www.ziuaconstanta.ro - Constanţa
Alexandra Paulet, mama copilului de 8 ani disparut din Pecineaga, spune ca fiul ei era trist si probabil a plecat de acasa, informeaza romaniatv.net. Femeia a marturisit, intr-un interviu pentru ...
Maşină răsturnată la intrarea în Șieuţ. Șoferul, rănit uşor
timponline.ro - Bistriţa-Năsăud
Marţi, în jurul orei 10.00, pe DJ 154 C la intrare în Șieuţ s-a produs un accident rutier în urma căruia o persoană a fost rănită uşor. ”În urma primelor verificări efectuate la faţa locului, poliţiştii Serviciului Rutier au stabilit faptul că pe Drumul Judeţean 154 C, la intrare în localitatea Șieu
Implică-te şi schimbă destine: donaţi sânge pentru copii internaţi în spital, la Timişoara!
www.tion.ro - Timiş
Sunteţi chemaţi să donaţi sânge, la Timişoara, pentru copii internaţi în Secţia de Hemato-Oncologie a Spitalului de Copii „Louis Ţurcanu”. Reprezentantele asociaţiei „Academia Mămicilor din Timişoara” continuă campania „Implică-te şi schimbă destine”.
Restricţii de trafic pe două drumuri din Timiş. Se circulă pe o singură bandă
www.tion.ro - Timiş
Sunt restricţii de trafic pe două drumuri din Timiş. Timp de aproape o săptămână, începând de marţi, 5 noiembrie, pe DJ 609F Remetea Mare (intersecţia cu DN6) - Bucovăţ şi DJ 591A Diniaş - Peciu Nou, la intersecţia cu DJ 593 traficul se va desfăşura alternativ.
Publicul din Timişoara este invitat la o seară plină de umor şi voie bună cu Bordea şi Micutzu
www.tion.ro - Timiş
Bordea şi Micutzu vin în oraşul nostru pentru două show-uri de stand-up, iar alături de ei sunt invitaţi Cortea Nelu, Popa Claudiu şi Florin Gheorghe.
ALERTĂ! Minor dispărut. Poliţia cere ajutorul cetăţenilor
portalsm.ro - Satu Mare
Poliţiştii maramureşeni caută un minor de 13 ani, care a plecat ieri, în jurul orei 12.00 de la locuinţa sa din satul Fersig, comuna Satulung şi până în prezent nu s-a mai întors.
NEAMȚ: Și-a găsit soţia spânzurată
www.stiri-neamt.ro - Neamţ
O femeie în vârstă de 38 de ani a fost găsită, de soţul ei, spânzurată în podul casei. Aseară, în jurul orei 22:30, poliţiştii au fost sesizaţi de către
Braşoveanul Gabriel Andronache, secretar general al Guvernului
feedproxy.google.com - Braşov
La Secretariatul General al Guvernului va fi numit deputatul PNL, Gabriel Andronache. Acesta va renunţa la funcţia de deputat, cele două fiind incompatibile. Andronache are 45 de ani, este licenţiat în Drept, deputat PNL din 2008, a lucrat la Protecţia Copilului Braşov şi a fost viceprimar al municipiului Braşov. Potrivit colegilor de partid, Andronache este un
SC Confort Urban SRL continua interventiile pe bulevardul Tomis si in aceasta luna (galerie foto)
www.ziuaconstanta.ro - Constanţa
Primaria Municipiului Constanta, prin SC Confort Urban SRL, continua in aceasta luna procesul de reabilitare a carosabilului pe bulevardul Tomis iar pe tronsonul cuprins intre strada Ion Ratiu si ...
Un nou termen in dosarul Belina. Printre inculpati se numera si Sevil Shhaideh
www.ziuaconstanta.ro - Constanţa
Azi, la Tribunalul Bucuresti va avea loc un nou termen, in dosarul Belina. Cauza a fost instrumentata de procurorii DNA. Printre inculpati se numera si Sevil Shhaideh, fost vicepremier al Romaniei si fost ...
Accident în centrul Oradiei: O femeie a ajuns la spital după ce a fost izbită de un şofer care a ieşit cu spatele din parcare, fără să se asigure
www.ebihoreanul.ro - Bihor
O orădeancă a ajuns la spital, luni dimineaţa, după ce a fost izbită de o autoutilitară în parcarea din Piaţa 1 Decembrie. Din cercetările poliţiştilor reiese că şoferul, un tânăr în vârstă de 23 ani din comuna Sânpaul, judeţul Cluj, nu s-a asigurat corespunzător la efectuarea manevrei de mers înapoi.
Săptămâna în care moartea a secerat trei nume grele: Mihai Constantinescu, Leo Iorga, Sorin Frunzăverde. Ultimii doi nu aveau nici 60 de ani
www.7est.ro - Iaşi
%
Secţiile externe ale SJU Bistriţa de pe str. Alba Iulia vor fi reabilitate cu 1,6 mil. euro
timponline.ro - Bistriţa-Năsăud
La Consiliul Judeţean Bistriţa-Năsăud s-a semnat contractul de proiectare şi execuţie pentru obiectivul de investiţii ”Creşterea eficienţei energetice a Secţiilor externe ale Spitalului Judeţean de Urgenţă Bistriţa, situate pe str. Alba Iulia, nr. 7, Bistriţa, judeţul Bistriţa-Năsăud”, proiect derul
Mircea Diaconu. Despre UN OM Preşedinte
obiectiv.net - Ialomiţa
Te salut! Sunt Mircea Diaconu. Om. Preşedinte. Viitor Preşedinte. Eu cred că ţara noastră merită un viitor. De aceea merită... Vezi tot
Doliu la Teatrul Naţional din Sibiu. Actriţa Ema Veţean a murit, la doar 38 de ani, în urma unui tragic accident rutier
www.7est.ro - Iaşi
%
Reparaţii pe strada Grigore Ghica Vodă
www.7est.ro - Iaşi
%
Locuri de muncă la Administraţia Bazinală de Apă Olt – Sistemul de Gospodărire a Apelor Harghita
ziarharghita.ro - Harghita
Administraţia Bazinală de Apă Olt – Sistemul de Gospodărire a Apelor Harghita organizează concurs de recrutare pentru ocuparea pe perioadă nedeterminată a
Exemplu de bună practică administrativă: la Teiuş a fost asfaltat drumul spre Mănăstirea Râmeţ
ziarulunirea.ro - Alba
După lucrările la reţeaua de canalizare şi de înlocuire a conductelor de apă potabilă, pe str. Avram Iancu din Teiuş a venit acum şi rândul refacerii
Marcaje rutiere pe aleea Tudor Neculai
www.7est.ro - Iaşi
%
Încă un motiv de mândrie pentru UVT! Studenţii Facultăţii de Arte şi Design, câştigători ai unui concurs de proiecte şi finanţaţi cu 5.000 de lei!
expressdebanat.ro - Caraş-Severin
Trei studenţi ai Facultăţii de Arte şi Design din Timişoara au câştigat concursul de proiecte „Urban Installations Hackathon”! Dintre cele 16 echipe înscrise, primele cinci echipe clasate au fost alcătuite din studenţi de la Facultatea de Arte şi Design UVT, specializarea Design, iar proiectele selectate vor beneficia de finanţare de până la 5.000 de lei, pentru a fi implementate!
În curând timişorenii vor avea parte de un nou concept de târg de carte, intitulat „Sit and Read”
www.tion.ro - Timiş
„Sit and Read” reuneşte atât artişti contemporani, cât şi publicaţii independente, internaţionale şi naţionale, iar vizitatorii se vor putea bucura de diferite reviste, benzi desenate, ilustraţii şi printuri.
Traseele către Zona de Agrement Ciric ale Companiei de Transport Public au intrat în obişnuitul program de iarnă
www.7est.ro - Iaşi
%
Viorica Dăncilă, singurul prim ministru care a adus mai mulţi bani în buzunarele românilor
obiectiv.net - Ialomiţa
Dintre toţi candidaţii la preşedinţia României doamna Viorica Dăncilă este singura care a făcut lucruri concrete pentru a aduce mai... Vezi tot
Zip Escort, Zip Security Sistems si Vip Escort Security - in topul judetean al firmelor constantene (galerie foto)
www.ziuaconstanta.ro - Constanţa
Camera de Comert, Industrie, Navigatie si Agricultura a premiat, in cadrul Topului societatilor comerciale constantene, companiile ZIP ESCORT, ZIP SECURITY SISTEMS si VIP ESCORT SECURITY pentru ...
ZILE LIBERE 2019. Veşti proaste pentru români, ce se întâmplă cu Minivacanţa de Sf. Andrei şi 1 Decembrie 2019
ph-online.ro - Prahova
ZILE LIBERE 2019. Deşi 30 noiembrie (Sfântul Andrei) şi 1 decembrie (Ziua Naţională a României) sunt, în mod normal, zile libere legale, anul acesta d...
5.000 de arbori pentru C.A. Rosetti
www.7est.ro - Iaşi
%
Turişti blocaţi luni seară pe Valea Caraimanului, fără lanterne, pe o ploaie torenţială
ph-online.ro - Prahova
Echipele Salvamont Prahova şi Salvamont Buşteni au intervenit, luni seară, pe Valea Caraimanului, după ce doi turişti au anunţat că au rămas blocaţi ş...
Turişti blocaţi luni seară pe Valea Caraimanului, fără lanterne, pe o ploaie torenţială
ph-online.ro - Prahova
Echipele Salvamont Prahova şi Salvamont Buşteni au intervenit, luni seară, pe Valea Caraimanului, după ce doi turişti au anunţat că au rămas blocaţi ş...
Poliţia prahoveană avertizează: “Aveţi grijă de copiii dumneavoastră!”
ph-online.ro - Prahova
Parcă-i un făcut: de când a avut loc tragedia de la Caracal, s-au înmulţit şi în Prahova dispariţiile de copii. Ce-i drept, la câteva ore sau o zi, ma...
Scene horror în Giurgiu: Fată de 16 ani, drogată şi violată în cadrul unui ritual satanist
www.ebihoreanul.ro - Bihor
Scene cumplite în Giurgiu, unde o adolescentă de 16 ani a fost drogată, tăiată în palmă cu un ciob de sticlă şi violată în timpul unui ritual satanist, după care imaginile au fost răspândite pe reţele de socializare. Agresorul, un tânăr de 25 de ani, a fost arestat pentru pornografie infantilă şi viol, după ce a fost 'săltat' de procurorii DIICOT în Aeroportul Otopeni.
Accident pe DN1B, la intersectia cu Ceptura. Doua masini s-au facut praf
ph-online.ro - Prahova
Un accident de circulatie s-a produs in aceasta dimineata pe DN1B, la intersectia cu Ceptura, fiind implicate doua autoturisme. "Din primele date, se...
Un bărbat a plantat 40.000 de copaci pe terenul său. Garda de Mediu l-a amendat
portalsm.ro - Satu Mare
Un bărbat a plantat 40.000 de copaci pe terenul său. Garda de Mediu l-a amendat
Adolescentă de 16 ani, drogată şi violată de un tânăr de 25 de ani. Tot momentul a fost filmat
ph-online.ro - Prahova
O fată de 16 ani a fost violată de un tânăr de 25 după un ritual satanic şi după ce a fost drogată. Fata si-a recăpătat cunoştinţa abia a doua zi, cân...
Spitalul Municipal Topliţa angajează portar şi brancardier
ziarharghita.ro - Harghita
Spitalul Municipal Topliţa, judeţul Harghita, organizează concurs de recrutare pentru ocuparea pe perioadă nedeterminată a funcţiilor contractuale de
BREAKING - Mihai Tudose îi cere DEMISIA lui Victor Ponta
ph-online.ro - Prahova
Europarlamentarul Pro România, Mihai Tudose, îl acuză pe Victor Ponta că are ”şcoala lui Dragnea” şi vrea să-i excludă din partid pe cei care nu sunt...
Au zis ca nu vor da OUG, dar au mintit. Guvernul Orban pregateste o Ordonanta de Urgenta BOMBA
ph-online.ro - Prahova
Premierul Ludovic Orban a anunţat marţi că OUG de restructurare a Guvernului este în lucru şi de aceea nu poate spune la ce oră va avea loc şedinţa de...
Târg la Piteşti, cu haine româneşti. Cât costă să te găteşti?
ziarulargesul.ro - Argeş
Astăzi a început târgul producătorilor autohtoni de haine şi încălţăminte. Veniţi din mai multe localităţi la Piteşti, aceştia şi-au amenajat standuri la Casa Cărţii şi întâmpină clienţii cu o ofertă diversificată. Când spun diversificată, înseamnă că te poţi găti din cap până în picioare...
Vrei să devii dansator la „Rapsodia Călimanilor”? Există două posturi vacante la nivel debutant
ziarharghita.ro - Harghita
Centrul Cultural Topliţa, judeţul Harghita organizează concurs de recrutare pentru ocuparea pe perioadă nedeterminată a funcţiei contractuale de execuţie
Primăria Sibiu îi taxează mai scump pe cei care aruncă deşeurile pe unde apucă
www.oradesibiu.ro - Sibiu
Din 28 octombrie, Legea nr. 211/2011 privind regimul deşeurilor s-a modificat, crescând cuantumul amenzilor pentru depozitarea deşeurilor în alte locuri decât cele autorizate, pentru nedeţinerea documentelor de avizare a fluxurilor pentru deşeuri, dar şi pentru lipsa documentaţiei de transport a acestora. De la data menţionată amenzile care se vor aplica…
Masina de politie, implicata intr-un accident, la Eforie. Autospeciala a ajuns intr-un stalp
www.ziuaconstanta.ro - Constanţa
O autospeciala de politie care se deplasa spre Mangalia a fost implicata marti intr-un accident rutier, in Eforie, ajungand intr-un stalp de electricitate. Potrivit IPJ Constanta, un autoturism ...
Mama a patru copii din Sibiu, ameninţată cu un cuţit de concubin – A intrat cu forţa în casa ei
www.oradesibiu.ro - Sibiu
Un sibian a fost reţinut, după ce a intrat cu forţa în casa concubinei şi a ameninţat-o pe ea şi pe proprietara apartamentului. Acesta avea asupra sa un cuţit. De faţă erau şi cei patru copii minori ai femeii. „La data de 4 noiembrie a.c., poliţiştii Biroului de Investigaţii Criminale…
Infractor de Sibiu – Beat, fără permis, cu o maşină neînmatriculată, a furat un utilaj de pe un drum din judeţ
www.oradesibiu.ro - Sibiu
Un sibian a fost reţinut după ce a comis şase infracţiuni într-o singură zi. Acesta a condus beat o maşină neîmatriculată, fără să aibă permis şi a furat un utilaj folosit la reabilitarea unui drum judeţean. „La data de 31 octombrie, în jurul orei 06,45, poliţiştii din cadrul Poliţiei Oraşului…
Pericol in trafic: Șofer beat si fara permis, depistat de politistii constanteni. Ce alcoolemie avea
www.ziuaconstanta.ro - Constanţa
Politistii de frontiera din cadrul Sectorului Politiei de Frontiera Isaccea au depistat in trafic un barbat care conducea un autoturism fara numere de inmatriculare, fara a detine permis de ...
Un milion de euro pentru copiii cu dizabilităţi! Investiţie importantă în centrul Timişoarei
expressdebanat.ro - Caraş-Severin
Copiii cu dizabilităţi din judeţul Timiş vor beneficia de condiţii mult mai bune în curând. La Timişoara va apărea un nou centru de zi pentru micuţii care au fost mai puţin norocoşi, iar investiţia de ridică la un milion de euro.
Anunt
www.infobraila.ro - Brăila
IN CONFORMITATE CU PREVEDERILE LEGII APELOR NR 107/1996, CU MODIFICARILE COMPLETARILE ULTERIOARE, COMPANIA NATIONALA ADMINISTRATIA PORTURILOR DUNARII MARITIME SA GALATI, CU SEDIUL IN GALATI, STRADA PORTULUI NR 34, COD POSTAL 800025, INREGISTRATA LA OFICIUL REGISTRULUI COMERTULUI GALATI CU NR J17/905/1998, RO 11776466, TELEFON 0136/460660-61.62.63 FAX: 0239/460140, EMAIL: APDM@APDMGALATI.RO A SOLICITAT DE LA ADMINISTRATIA BAZINALA DE […]
Si-a abandonat masina in rau ca sa scape de politistii de frontiera. Acum, soferul este cautat de autoritati
ziarmm.ro - Maramureş
Masina de teren era inmatriculata in Marea Britanie. Soferul a preferat sa se faca nevazut pentru a scapa de politistii de frontiera, care il urmareau in trafic. Nici focurile de arma trase nu l-au pu
Biciclist în vârstă de 84 de ani, accidentat de o maşină
feeds.monitorulsv.ro - Suceava
Ultima ora: Un batran de 84 de ani, care se deplasa cu o bicicleta, a fost accidentat de o masina dupa ce a virat stanga fara sa se asigire. Accidentul a avut loc luni, in jurul orei 09:50, pe DJ 209D, in localitatea Botosanita Mare, comuna Calafindesti.
Expoziţia interactivă pentru copii „First Kids on Mars”, la Iulius Mall Suceava
feeds.monitorulsv.ro - Suceava
Ultima ora: Pana pe 10 noiembrie 2019, copiii au ocazia, la Iulius Mall Suceava, sa se distreze si sa invete despre Univers si planeta Marte, in cadrul expozitiei First Kids on Mars. Micilor curiosi li s-a pregatit un circuit cu misiuni spatiale, pe care il realizeaza cu ajutorul animatorilor.
Un tânăr de 21 de ani, beat şi fără permis, a fost prins conducând o maşină
feeds.monitorulsv.ro - Suceava
Ultima ora: Un tanar de 21 de ani a fost prins conducand o masina chiar daca nu are permis de conducere si se afla sub influenta bauturilor alcoolice. In noaptea de duminica spre luni, la ora 01.30, politistii Sectiei Rurale Scheia, aflandu-se in exercitarea atributiilor de serviciu pe raza localitatii, pe str.
Val de cutremure în România! Trei seisme, în trei locuri diferite din ţară
portalsm.ro - Satu Mare
Un cutremur cu magnitudinea de 2,6 grade pe scara Richter s-a produs în această dimineaţă, în Vrancea. Seismul a fost urmat de altul, de 2,8 grade, în Banat, potrivit Institutului Naţional pentru Fizica Pământului (INFP).
FOTO! Femeia care şi-a ucis cu cruzime fiul, internată la Secţia Psihiatrie a Spitalului Judeţean
www.botosaninews.ro - Botoşani
...
Avarie CET Palas. Mai multi constanteni, fara apa calda
www.ziuaconstanta.ro - Constanţa
Electrocentrale Constanta S.A. CET Palas a comunicat in data de 05.11.2019 ca inregistreaza o avarie pe reteaua care alimenteaza cu energie termica primara punctul termic nr. 45. In consecinta, in ...
Secretele fotografiei expuse la Timişoara
expressdebanat.ro - Caraş-Severin
Prima ediţie Imagine Timişoara Festival are loc în 18-22 noiembrie şi aduce fotografia de eveniment, de stradă, de produs, fine art, frumuseţe sau fashion pentru pasionaţii de acest domeniu. Scopul ITF este promovarea fotografiei sub toate formele sale şi sporirea interesului publicului larg faţă de acest domeniu cu ajutorul profesioniştilor din acest sector. Participanţii au…
Posturi vacante la Serviciul Public de Salubrizare Topliţa
ziarharghita.ro - Harghita
Serviciul Public de Salubrizare Topliţa, judeţul Harghiţa, organizează concurs de recrutare pentru ocuparea pe perioadă nedeterminată a funcţiilor
Ultimul cadou al Guvernului Dăncilă pentru Braşov
feedproxy.google.com - Braşov
Viceprim-ministrul Vasile-Daniel Suciu, ministrul dezvoltării regionale şi administraţiei publice, a semnat astăzi, 4 noiembrie, 31 de contracte de finanţare cu fonduri nerambursabile, prin Programul Operaţional Regional (POR) 2014-2020, pentru proiecte care vizează sprijinirea dezvoltării durabile în 19 judeţe din România. Proiectele vor fi implementate de Ministerul Dezvoltării Regionale şi Administraţiei Publice (în calitate de lider
Hochei: 6 jucători de la Corona, convocaţi la naţională
feedproxy.google.com - Braşov
Lotul naţional de seniori va participa la un turneu internaţional de hochei pe gheaţă în Estonia, la Tallinn, Turkish Airlines Baltic Challenge Cup, în perioada 7-10 noiembrie, potrivit site-ului Federaţiei Române de Hochei pe Gheaţă. România va face parte din Grupa B şi va juca pe 8 noiembrie cu selecţionata Under-20 a Kazahstanului şi pe
Constanteni, incarcerati la Poarta Alba dupa ce au condus fara pemis
www.ziuaconstanta.ro - Constanţa
Doi barbati au fost escortati si introdusi in Penitenciarul Poarta Alba dupa ce au fost prinsi la volan fara permis de conducere. Astfel, la data de 4 noiembrie a.c., politisti din cadrul ...
LPS Suceava s-a clasat pe primul loc în competiţia cluburilor
feeds.monitorulsv.ro - Suceava
La sfarsitul saptamanii trecute, la Pitesti a avut loc Cupa Romaniei la lupte greco-romane pentru juniori II. Sportivii suceveni si-au aratat din clasa incontestabila si au demonstrat ca scoala de lupte bucovineana are resurse nebanuite.
Kangen Team a ajuns la 10 victorii în 11 etape
feeds.monitorulsv.ro - Suceava
Ultimul meci disputat saptamana trecuta in Campionatului judetean de old-boys Avastar, dintre Kangen Team si Intermontana, s-a incheiat cu victoria echipei manageriate de Tudor Hotnogu. Echipa condusa de Iliuta Trandafir s-a impus la final cu scorul de 5-1, cu ajutorul golurilor marcate de Gafita 2, Romascan, Macovei si Stan. Pentru formatia lui Bogdan Ostrovanu a punctat Serban.
Juniorii U 18 de la Gura Humorului au obţinut încă un succes important în drumul spre un ...
feeds.monitorulsv.ro - Suceava
Echipa de rugby juniori Under 18 a CSS Gura Humorului a obtinut inca un succes important, in deplasare, in tentativa de a cuceri al patrulea titlul national consecutiv.
Weekend horror pentru "granzi"
feeds.monitorulsv.ro - Suceava
De la inceput trebuie sa fac precizarea ca orice trimitere la echipa Rapid Bucuresti este neavenita, deoarece numai cei neinformati ii zic Podului Grant complet gresit Podul Grand. Asadar, pluralul granzi nu inseamna nicidecum ca vorbim despre fanii Rapidului, echipa de langa Podul Grant.
CSU Suceava continuă şirul victoriilor în campionat
feeds.monitorulsv.ro - Suceava
CSU Suceava si-a continuat sirul victoriilor in etapa a VIII-a a seriei A a Campionatului National de handbal masculin pentru juniori I, dupa ce in urma cu o runda se impusese in derbiul cu colegii de la LPS. De aceasta data, la finele saptamanii trecute elevii antrenorului Ion Tcaciuc au castigat cu 34-24 14-10 meciul cu LPS Vaslui.
O nouă etapă cu goluri multe în Liga a V-a
feeds.monitorulsv.ro - Suceava
Viitorul Negostina a realizat scorul etapei a VIII-a in campionatul Ligii a V-a, dupa ce a invins cu scorul de 8-0 pe Viitorul Adancata, o victorie la fel de clara repurtand si Unirea Horodnic de Sus, in duelul cu Sporting Vointa Bunesti. Mult mai echilibrat a fost derbiul rundei in Seria I, dintre Viitorul Veresti si Steaua Dumbraveni, incheiat nedecis.
Susţinere din partea elevilor pentru profesoara Colegiului Tehnic Rădăuţi care a umilit un ...
feeds.monitorulsv.ro - Suceava
Cazul elevului din clasa a XI-a, de la Colegiul Tehnic Radauti, care a fost umilit in timpul unei ore de curs de profesoara de istorie, a fost discutat, luni, in Consiliul de Administratie al institutiei. Directorul liceului, prof. Gelu Tugulea, a mentionat ca toti elevii din clasa de Stiinte sociale, unde s-a petrecut incidentul, au fost consultati cu privire la cele intamplate.
Primarul din Dumbrăveni va fi premiat de Centrul Cultural Israeliano-Român din Tel Aviv
feeds.monitorulsv.ro - Suceava
Ioan Paval, primarul comunei Dumbraveni, a fost invitat in Israel pentru a fi premiat de catre Centrul Cultural Israeliano-Roman din Tel Aviv. Festivitatea de premiere va avea loc in zilele de 23-25 ianuarie 2020 ca semn de recunostinta si apreciere pentru actiunile culturale care au loc la Dumbraveni de cativa ani buni.
Campania "Un copil ~ un brăduţ”, provocarea silvicultorilor pentru sărbătorile de iarnă
feeds.monitorulsv.ro - Suceava
Sub sloganul O prietenie pe viata, silvicultorii din cadrul Regiei Nationale a Padurilor - Romsilva, lanseaza campania Un copil ~ un bradut.
Făcutu-m-am tuturor toate...
feeds.monitorulsv.ro - Suceava
Zis-a Domnul: Cu cine voi asemana pe oamenii acestui neam? Si cu cine sunt ei asemenea? Sunt asemenea copiilor care sed in piata si striga unii catre altii, zicand: V-am cantat din fluier si n-ati jucat; v-am cantat de jale si n-ati plans.
Sinaxa stareţilor şi stareţelor din Arhiepiscopia Sucevei şi Rădăuţilor
feeds.monitorulsv.ro - Suceava
La Manastirea Sucevita a avut loc pe 31 octombrie 2019, Sinaxa monahala anuala a staretilor si staretelor din Arhiepiscopia Sucevei si Radautilor. Sinaxa a fost condusa de Inalt Prea Sfintitul Pimen, Arhiepiscop al Sucevei si Radautilor, alaturi de Prea Sfintitul Damaschin Dorneanul, Episcop-vicar al Arhiepiscopiei Sucevei si Radautilor.
Balul Bobocilor, la Colegiul „Alexandru cel Bun” Gura Humorului: „Exploring Wonderland”
feeds.monitorulsv.ro - Suceava
In fiecare an, evenimentul foarte asteptat de elevi, parinti si cadre didactice deopotriva este Balul Bobocilor. La Colegiul Alexandru cel Bun din Gura Humorului acesta reprezinta altceva pentru fiecare dintre noi.
Elevele Colegiului ”Petru Rareş” au luat spuma premiilor unui concurs naţional de poezie, ...
feeds.monitorulsv.ro - Suceava
Rezultate excelente pentru doua eleve ale Colegiului National Petru Rares Suceava in cadrul Concursului National de Poezie Tradem, organizat de Casa de Cultura Traian Demetrescu din Craiova, a carui premiere s-a desfasurat la inceputul acestei luni. Premiul Tradem Marele Premiu, in valoare de 2.000 de lei, a fost obtinut de Elena Ailenei din Cornu Luncii, eleva in clasa a XII-a la Colegiul National Petru Rares.
Peste o sută de copii de la Şcoala Primară „Sf. ...
feeds.monitorulsv.ro - Suceava
Peste o suta de copii de la Scoala Primara Sf. Ioan cel Nou de la Suceava, impreuna cu parintii lor si cadrele didactice coordonatoare, au plantat saptamana trecuta pomi fructiferi, infiintand livada scolii. La sfarsitul activitatii, atat copiii, cat si parintii au fost serviti cu placinte, fursecuri si ceai cald. Prof.
Sucevean pe podium, la un concurs internaţional de canto organizat la Paris
feeds.monitorulsv.ro - Suceava
Profesorul de canto Cezar Mititiuc, bariton, de la Colegiul de Arta ,,Ciprian Porumbescu din municipiul Suceava, a urcat pe podium la Concursul International de Canto din cadrul Rencontres Musicales Enesco, desfasurat in octombrie, la Paris, obtinand un meritoriu loc II, la sectiunea Mari amatori de arta vocala.
Recital al Cvartetului Royal, miercuri, la Biroul Francez
feeds.monitorulsv.ro - Suceava
Miercuri, 6 noiembrie, incepand cu ora 18:00, sucevenii sunt invitati la vals de catre prof. Iulia Buraciuc si membrii Cvartetului Royal - Ciprian Constandache, Angelica Banea, Letitia Costache, Andreea Petruneac. Recitalul va avea loc la Biroul Francez Casa Prieteniei, Aleea Ion Gramada, nr. 1-3.
Agresor reţinut după ce l-a lovit cu pumnii şi picioarele pe concubinul surorii sale
feeds.monitorulsv.ro - Suceava
Un conflict mai vechi cu concubinul surorii sale l-a facut pe un barbat de 34 de ani din comuna Sucevita sa-si iasa din minti si sa-i aplice o bataie zdravana, sub ochii speriati ai celor aflati intr-un magazin din comuna. Din cauza violentei de care a dat dovada si care i-a inspaimantat pe cei aflati de fata, cei care ancheteaza agresiunea au luat masura retinerii agresorului in spatele gratiilor, pentru 24 de ore.
Casa de Asigurări de Sănătate Suceava îşi anunţă disponibilitatea de a aproba ...
feeds.monitorulsv.ro - Suceava
Medicii specialisti si managerii spitalelor publice - pentru cabinetele ambulatorii de specialitate ale spitalelor - pot solicita Casei de Asigurari de Sanatate Suceava prelungirea programului de lucru, in cazul in care exista adresabilitate crescuta din partea pacientilor pentru o anumita specialitate, a informat, vineri, printr-un comunicat de presa, presedintele - director al CAS Suceava, dr. Claudiu Cobuz.
Finanţele sucevene organizează luna aceasta două întâlniri pe tema ajutoarelor de stat ...
feeds.monitorulsv.ro - Suceava
Administratia Judeteana a Finantelor Publice Suceava va organiza, in aceasta luna, alte doua intalniri pentru persoanele fizice din judet pe tema schemelor de ajutor de stat. Cele doua intalniri de informare vor avea loc la sediul Finantelor din municipiul Suceava.
Insolite, inedite... (7). Parametri
feeds.monitorulsv.ro - Suceava
Don Juan.Perfectul Don Juan trebuie sa fie foarte bine nascut si foarte prost crescut, sa aiba multi bani si vreme putina, sa calatoreasca mult si sa-si schimbe firea cat mai putin. El va studia, in primul rand, caracterul barbatului celei pe care vrea s-o cucereasca si sa faca tocmai contrariul: in adulter, femeia cauta un contrast, o evaziune. Politica. Politica este arta de a fi oportunist, fara sa pari lichea.
Preasfinţitul Damaschin a sfinţit pictura Bisericii Fălticenii Vechi
feeds.monitorulsv.ro - Suceava
Sute de credinciosi din Falticeni, dar si din localitatile invecinate, au participat duminica, 3 noiembrie, la sfintirea picturii si a lucrarilor efectuate la Biserica cu hramul Sfintii Arhangheli Mihail si Gavriil din Falticeni, cunoscuta printre localnici ca Parohia Falticenii Vechi.
Vernisajul expoziţiei internaţionale de pictură realizată în Tabăra de pictură de la ...
feeds.monitorulsv.ro - Suceava
La Muzeul de Istorie Suceava va avea loc miercuri, 6 noiembrie 2019, la ora 13:00, vernisajul expozitiei internationale de pictura realizata in Tabara de pictura de la Vama. Vor fi expuse 26 de lucrari apartinand celor 13 artisti plastici participanti: Sorin Dumitru Baciu, Niculai Morosan si Viorica-Ana Moruz Suceava, Dumitru D.
Zilele Casei Corpului Didactic Suceava, 5-9 noiembrie
feeds.monitorulsv.ro - Suceava
Casa Corpului Didactic CCD George Tofan Suceava sarbatoreste, in perioada 5-9 noiembrie, Zilele CCD Suceava, institutia celebrandu-l, totodata, si pe patronul spiritual al institutiei, de la a carui nastere se implinesc 139 de ani. Programul manifestarilor include intalniri, dezbateri, diseminarea unor proiecte, conferinte si lansari de carte. Astazi, sediul CCD va gazdui, de la ora 11.
„A vrut să intre călare în...biserică”
feeds.monitorulsv.ro - Suceava
Inmormantat de viu La 2 Ianuarie 1892 a fost inmormantat in Burdujeni un Ovreu, care semena a fi mort. Cu doue oare mai tardiu a fost adus un al doilea mort, pre care voiau sa-l inmormenteze langa cel dintaiu. Cand cioclii asedau sicriul in mormant audisa vaete din mormantul lateral si, deschidandu-l, au aflat pre Ovreu cu fata intoarsa in jos si incruntat de sange.
Planul diabolic al unor dealeri de droguri: voiau să îi dea steroizi în loc de ecstasy unui ...
feeds.monitorulsv.ro - Suceava
Politistii de la Serviciul Antidrog al Brigazii de Combatere a Criminalitatii Organizate BCCO Suceava, sub coordonarea procurorilor de la DIICOT, Serviciul Teritorial Suceava, au actionat acum cateva zile pentru a stopa o tranzactie de ecstasy, in valoare de 25.000 de lei, insa si un act de violenta pe care il pregateau cativa tineri fata de cumparatorul drogurilor.
Trei suceveni, reţinuţi pentru contrabandă cu ţigări, în urma unor percheziţii în ...
feeds.monitorulsv.ro - Suceava
Trei persoane cu domicilii in localitati din judetul Suceava au fost retinute duminica in spatele gratiilor, dupa ce in urma perchezitiilor la locuintele acestora politistii au depistat importante cantitati de tigari de contrabanda.
Beat şi fără permis, s-a izbit cu mopedul într-un cap de pod
feeds.monitorulsv.ro - Suceava
Un barbat de 67 de ani din comuna Darmanesti a ajuns duminica la pranz la spital, dupa ce s-a izbit cu mopedul pe care il conducea intr-un cap de pod. In urma verificarilor facute de politisti s-a stabilit ca barbatul a condus mopedul fara a detine un permis de conducere si se afla sub influenta alcoolului. Evenimentul s-a produs duminica, in jurul orei 14.
Mărturia şoferului care a evitat o nenorocire, după depăşirea în orb a unui inconştient: ...
feeds.monitorulsv.ro - Suceava
Cazul soferului pericol public care a intrat intr-o depasire pe linia continua, intr-o curba la dreapta, in orb, pe DN 17, la Frasin, relatat pentru prima data de Monitorul de Suceava in editia de sambata, 2 noiembrie, s-a transformat intr-un scandal la nivel national, oameni din toata tara fiind revoltati de imaginile care surprind manevra conducatorului auto, dar si de atitudinea lui ulterioara, cand s-a luat la ce.
S-a ales cu un ordin de protecţie, după ce a provocat scandal în familie
feeds.monitorulsv.ro - Suceava
Un tanar de 21 de ani care a provocat scandal in locuinta unde traieste impreuna cu tatal sau s-a ales cu un ordin de protectie provizoriu din partea politistilor si cu un dosar penal, in urma plangerii depuse de parintele sau.
Țigări de aproape 30.000 de euro confiscate la frontiera româno-ucraineană
feeds.monitorulsv.ro - Suceava
Politistii de frontiera suceveni au capturat, in weekendul trecut, 12.000 de pachete de tigari de contrabanda, dupa o serie de actiuni in zona de munte a judetului si la Siret.
Primăria Vatra Dornei va primi 2,4 milioane de lei pentru finalizarea închiderii fostului ...
feeds.monitorulsv.ro - Suceava
Primaria Vatra Dornei va primi o suma de 2,4 milioane de lei de la Administratia Fondului de Mediu pentru finalizarea lucrarilor de inchidere a fostului depozit de deseuri din acest municipiu. Administratia Fondului de Mediu AFM a anuntat recent ca a fost aprobat dosarul de finantare depus de municipiul Vatra Dornei pentru inchiderea depozitelor de deseuri municipale neconforme.
Flutur a felicitat noul Guvern PNL pentru curaj şi i-a amintit lui Ludovic Orban de ...
feeds.monitorulsv.ro - Suceava
Presedintele PNL Suceava, Gheorghe Flutur, a felicitat noul Guvern al Romaniei pentru votul de investire primit ieri in Parlament. Gheorghe Flutur a tinut sa precizeze ca felicita noul Guvern pentru curaj, el declarand ca imediat dupa votul din Parlament i-a amintit premierului Ludovic Orban de necesitatea asigurarii incalzirii in Vatra Dornei.
Suceava are un ministru în noul Guvern Orban, prin deputatul PNL Bogdan Gheorghiu
feeds.monitorulsv.ro - Suceava
Guvernul condus de liderul PNL, Ludovic Orban, a fost investit ieri in Parlamentul Romaniei. Dupa ce au obtinut 240 de voturi pentru in Parlament, noul premier al Romaniei, Ludovic Orban, si cei 16 ministri din Cabinetul sau au depus juramantul la Palatul Cotroceni, in fata presedintelui Romaniei, Klaus Iohannis.
Cu Constituţia în mână, spitalul din Rădăuţi este primul din ţară care a pus la zid ...
feeds.monitorulsv.ro - Suceava
Spitalul Municipal Radauti a reusit o premiera in Romania, conform managerului unitatii medicale, avocat Traian Andronachi, respectiv a avut castig de cauza intr-un proces cu Casa de Asigurari de Sanatate, pe care a dat-o in judecata pentru refuzul decontarii internarilor efectuate peste valoarea de contract.
De astăzi, formularele pentru diverse solicitări la Spitalul de Urgenţă Suceava pot fi ...
feeds.monitorulsv.ro - Suceava
Formularele pentru solicitarea unor documente medicale, precum Solicitare privind comunicarea documentelor medicale personale, Declaratie privind comunicarea documentelor medicale personale sau Acordul pacientului privind comunicarea datelor medicale personale pot fi descarcate, de astazi, online, de pe site-ul Spitalului Judetean de Urgenta Sfantul Ioan cel Nou Suceava, a declarat directorul medical al institutiei, .
Toate investiţiile făcute de Spitalul Municipal Rădăuţi au fost finanţate din bugetul propriu
feeds.monitorulsv.ro - Suceava
Spitalul Municipal Radauti a inceput un proces de modernizare, in vederea cresterii calitatii serviciilor medicale oferite pacientilor. Desi nu beneficiaza de finantare decat din bugetul propriu, 98,5 din investitii fiind realizate din propriii bani, unitatea medicala a reusit sa aloce 2 milioane de lei pentru reabilitarea sectiei Anestezie-Terapie Intensiva.
Meteo: Vant de pana la 100km/ora pe crestele montane din Maramures
ziarmm.ro - Maramureş
Vremea se mentine si astazi calda in judetul nostru. Cerul va fi variabil, temporar noros. Spre seara si noaptea, pe arii extinse vor cadea ploi si cu caracter de aversa. Indeosebi in zona de munte ca
CAO 1910 Oradea nu are rival în Liga a IV-a: A câştigat clar şi derby-ul cu Crişul Sântandrei
www.ebihoreanul.ro - Bihor
Formaţia CAO 1910 Oradea s-a impus clar şi în derby-ul cu cea de-a doua clasată, Crişul Sântandrei, dovedind că nu are rival pe măsură în actuala ediţie de campionat. Jocul din etapa a 11-a a Ligii a IV-a s-a încheiat cu scorul de 4-0, „alb-verzii” distanţându-se la opt puncte în fruntea ierarhiei.
Un etaj al Spitalului Orăşenesc Zimnicea a fost predat către CNI, pentru amenajarea unei secţii de recuperare medicală
ziarulteleormanul.ro - Teleorman
Consiliul Local Zimnicea a aprobat în sedinţa de lucru extraordinară de marţi, 29 octombrie, un proiect de hotărâre referitor la crearea unei secţii de r
Maşină furată la Sibiu, găsită abandonată lângă Mediaş
www.oradesibiu.ro - Sibiu
Un sibian şi-a dat seama duminică la prânz că maşina lui nu mai era în parcarea unde o lăsase cu o zi în urmă. A sunat la poliţie, iar câteva ore mai târziu autoturismul său a fost găsit la aproape 80 de kilometri distanţă. Sibianul îşi parcase maşina în zona…
FOTO. Zâmbet si culoare la Centrul Școlar de Educaţie Incluzivă din Alba Iulia
ziarulunirea.ro - Alba
În perioada octombrie-noiembrie 2019, elevi ai Liceului de Arte „Regina Maria” din Alba Iulia, au fost oaspeţii Centrului Şcolar de Educaţie Incluzivă,
Poliţist din Piteşti, a ajutat o şoferiţă căreia era să-i ia foc maşina
ziarulargesul.ro - Argeş
În timp ce se deplasa la serviciu, agentul şef principal Pîrvu Florian Gabriel, poliţist în cadrul Secţiei 3 Poliţie Piteşti, a ajutat o şoferiţă a cărei maşină era să ia foc. S-a întâmplat în zona unui supermarket din Piteşti, când aflat în trecere, poliţistul a observat autoturismul de sub...
INCDFP: cutremur produs în Harghita astă-noapte
ziarharghita.ro - Harghita
Institutul Naţional de Cercetare - Dezvoltare pentru Fizica Pământului INCDFP transmite că în ziua de 05 Noiembrie 2019 la ora 01:47:38 (ora locală a
Punctul de vedere al Marchand, cu privire la mirosurile generate – drept la replică
www.gazetadambovitei.ro - Dâmboviţa
Domnule director, Articolul nostru (VEZI AICI) a reflectat realitatea pe care o invocaţi chiar şi dumneavoastră in parte, in
Mai multi abonati din Constanta, fara caldura
www.ziuaconstanta.ro - Constanţa
Electrocentrale Constanta S.A. CET Palas a comunicat in data de 05.11.2019 ca inregistreaza o avarie pe reteaua care alimenteaza cu energie termica primara punctul termic nr. 116. In consecinta, ...
FOTO Șocant! Elevă de 16 ani victima unui tânăr care făcea ritualuri satanice. Incredibil ce a putut să-i facă individul
www.botosaninews.ro - Botoşani
...
Internet gratuit în 15 locuri publice din Braşov
feedproxy.google.com - Braşov
Primăria Braşov va amenaja, până la începutul anului viitor, 15 locaţii publice din oraş, unde poate fi accesat gratuit internetul, pentru a oferi astfel acces de înaltă calitate la mediul online. Prin proiectul WiFi4EU, finanţat de Uniunea Europeană, vor fi instalate 15 puncte de acces gratuit la internet. 14 dintre aceste puncte gratuite de acces
Minora, batjocorita de un tanar. Detalii socante din ancheta DIICOT
www.ziuaconstanta.ro - Constanţa
Procurorii Directiei de Investigare a Infractiunilor de Criminalitate Organizata si Terorism Biroul Teritorial Giurgiu au dispus, la data de 3 noiembrie, retinerea pentru o perioada de 24 de ore a ...
ACCIDENT cu CINCI VICTIME pe un drum din judeţ! A fost solicitat elicopterul SMURD
newsar.ro - Arad
Citeşte azi ce scriu ziarele de mâine!
Sibianul Adrian Bibu propus secretar de stat în Guvernul Orban – „Sincer, mai mult vreau la Primăria Sibiu”
www.oradesibiu.ro - Sibiu
Adrian Bibu, consilier local PNL şi managerul Sălii Transilvania, ar putea întări lista sibienilor care fac parte din noul guvern. Acestuia i s-a propus, de către Raluca Turcan, funcţia de ministru secretar de stat în ministerul tineretului şi sportului. Adrian Bibu însă ar prefera să îşi continue munca la Sibiu…
NEAMȚ: MedLife a achiziţionat Centrul Medical Micromedica
www.stiri-neamt.ro - Neamţ
Sistemul Medical MedLife, a achiziţionat pachetului majoritar al companiei Centrul Medical Micromedica, unul dintre cei mai importanti furnizori de
Corul „Sfântul Ioan Botezătorul”, premiat la un festival organizat la Botoşani
www.botosaninews.ro - Botoşani
...
Trafic restrictionat, mai multe zile, pe bulevardul Aurel Vlaicu din Constanta
www.ziuaconstanta.ro - Constanţa
Pentru remedierea unei avarii pe conducta magistrala de alimentare cu apa, cu diametrul de 800 mm, din sensul giratoriu amplasat la intersectia bulevardului Aurel Vlaicu cu strada Nicolae Filimon, din ...
Maestrul terapiei de râs, Doru Octavian Dumitru, vine pe scena Casei de Cultură Moldova Nouă
expressdebanat.ro - Caraş-Severin
Instituţia culturală de la malul Dunării se pregăteşte să anuleze, pentru o zi, izul bacovian al anotimpului tomnatic aducând primăvara în sufletul publicului de la Moldova Nouă, însă nu oricum, ci prin intermediul unei porţii zdravene de râs livrate de nimeni altul decât maestrul comediei româneşti: Doru Octavian Dumitru.
Drumul şi tunul: PSD şi UDMR Bihor au dat 2,5 milioane euro din banii judeţului propriilor primari, care i-au „îngropat” în lucrări îndoielnice (FOTO)
www.ebihoreanul.ro - Bihor
PSD şi UDMR Bihor au direcţionat 2,5 milioane euro din banii Consiliului Judeţean către propriii primari, care i-au „îngropat” în contracte pe lucrări îndoielnice. După ce aleşii bihorenilor au refuzat să verifice cum au cheltuit primăriile 11,67 milioane lei daţi pentru repararea unor drumuri comunale, BIHOREANUL a făcut propriile verificări şi a descoperit că grosul banilor a fost tocat fără licitaţii, ajungând prin achiziţii directe la firme apropiate celor două partide care conduc judeţul.
Kelemen Hunor, discurs înaintea votului de învestire a noului guvern
ziarharghita.ro - Harghita
”Suntem în faţa unei situaţii inedite: într-un an electoral, înaintea alegerilor prezidenţiale, locale şi parlamentare, suntem chemaţi să învestim, prin
Activităţi de prevenire a corupţiei în cadrul campaniei „Tu poţi face lumină!”
ziarulteleormanul.ro - Teleorman
În perioada 28-29.10.2019, ofiţerii Direcţiei Generale Anticorupţie - Serviciul Judeţean Anticorupţie Teleorman au desfăşurat 3 activităţi de prevenir
“Aici e diferenţa între fotbaliştii cu pedigree şi cei cu pampers”. Marius Croitoru a avut un mesaj şi pentru Andrei Chindriş
www.botosaninews.ro - Botoşani
...
Radu Paraschivescu, Ana Blandiana şi Florin Piersic jr. pe scena Teatrului Naţional Timişoara
expressdebanat.ro - Caraş-Severin
Managerul Teatrului Naţional, Ada Hausvater a deschis ediţia 2019 a FEST-FDR duminică, 3 noiembrie, punând accent pe rolul fundamental al teatrului în societate dar şi pe importanţa asumării de către Teatrul Naţional a unei responsabilităţi majore în vederea dezvoltării comunităţii. Ediţia de anul acesta aduce un amalgam de emoţii în cadrul spectacolelor desfăşurate pe parcursul…
Noua Toyota C-HR evadeaza din tipare!
www.tion.ro - Timiş
ADVERTORIAL. Un hibrid de nouă generaţie mai conectat şi cu un design mai îndrăzneţ ca niciodată. Acum şi în showroom-ul din Timişoara!
Campanie electorala intrerupta brusc intr-un mod cat se poate de brailean, pe muchie de cutit
www.infobraila.ro - Brăila
Ieri, in jurul orei 17:25, politistii braileni au fost sesizati cu privire la faptul ca in jurul orei 15:40, in zona intersectiei Calea Calarasilor cu strada Milcov, un barbat necunoscut ar fi iesit cu o maceta dintr-un bar si ar fi inceput sa alerge trei tineri care distribuiau pliante in cadrul campaniei electorale. In urma […]
Minori reţinuţi de poliţiştii botoşăneni, după ce au dat mai multe spargeri
www.botosaninews.ro - Botoşani
,,,
Lant de cutremure, in Romania!
www.ziuaconstanta.ro - Constanţa
Nu mai putin de patru cutremure s-au produs astazi in Romania. Potrivit INFP, la ora 01 47 s-a produs in regiunea Transilvania, judesul Harghita, un cutremur cu magnitudinea ml 2.7, la adancimea de ...
Un arădean „a făcut cu NERVII” şi s-a răzbunat DISTRUGÂND mobilierul urban din parc (FOTO)
newsar.ro - Arad
Citeşte azi ce scriu ziarele de mâine!
VIDEO. Bărbat filmat când fură ţigările din buzunarul unui poliţist
portalsm.ro - Satu Mare
Bărbat filmat când fură ţigările din buzunarul unui poliţist
Doliu in lumea avocatilor din Constanta
www.ziuaconstanta.ro - Constanţa
Baroul Constanta si Casa de Asigurari a avocatilor, filiala Constanta anunta trecerea in nefiinta a avocatului Sebran Mischie. Potrivit reprezentantilor baroului Constanta, Sebran Mischie avea ...
Doliul in lumea avocatilor din Constanta
www.ziuaconstanta.ro - Constanţa
Baroul Constanta si Casa de Asigurari a avocatilor, filiala Constanta anunta trecerea in nefiinta a avocatului Sebran Mischie. Potrivit reprezentantilor baroului Constanta, Sebran Mischie avea ...
Anunt
www.infobraila.ro - Brăila
AGRILAND NECULA SRL DECLARA PIERDUT CERTIFICAT CONSTATATOR NR 14918 DIN 08.06.2018 EMIS DE ORC BRAILA Comentarii comentariu
PSD: Cu PNL la Guvernare, un val puternic de austeritate se va abate asupra judeţului Botoşani!
www.botosaninews.ro - Botoşani
...
Femeie jefuită în faţa unei grădiniţe! Au spart maşina şi i-au furat geanta
portalsm.ro - Satu Mare
O femeie din municipiul Satu Mare a fost victima unui jaf, în cursul zilei de ieri. Femeia a transmis un mesaj pe Facebook prin care spune cum s-a întâmplat totul şi le cere oamenilor să o ajute cu orice informaţie ar putea fi utilă pentru a îl descoperi pe făptaş.
ACIBADEM Healthcare Group a ajuns în Timişoara! Au fost încheiate parteneriate cu spitale locale
expressdebanat.ro - Caraş-Severin
Furnizorul de servicii medicale de top, ACIBADEM Healthcare Group, şi-a deschis cea de-a patra reprezentanţă din România - la Timişoara. Au fost încheiate şi parteneriate cu spitalele din oraşul de pe Bega.
Seară dedicată relaţiei de cuplu
www.zi-de-zi.ro - Mureş
Centrul de Psihoterapie Pozitivă ”Positum4Mureş” organizează o conferinţă dedicată relaţiilor de cup
Anunt
www.infobraila.ro - Brăila
CHITOI STELIEAN PFA DECLARA PIERDUT CERTIFICAT CONSTATATOR NR 13882 DIN 21.04.2009 EMIS DE ORC BRAILA Comentarii comentariu
Lucrări pe Valea Oltului – Restricţii în trei zone
www.oradesibiu.ro - Sibiu
Lucrările pe Valea Oltului continuă şi marţi, în două puncte. Se mai lucrează şi pe centura Călimăneştiului, aşa că şoferii care au drum prin zonă vor fi ”încercaţi”. Trebuie să se înarmeze cu răbdare şi să respecte indicaţiile rutiere. La km 2+000 -km 3+000 m ,Centura Calimanesti reparatii cu mixtura…
Hotelul de gheaţă aduce anul acesta lumea subacvatică la Bâlea Lac
www.oradesibiu.ro - Sibiu
Hotelul de gheaţă de la Bâlea Lac din Munţii Făgăraş îşi întâmpină turiştii an de an cu o nouă tematică. În acest sezon, tema celui mai inedit loc de cazare din România este lumea subacvatică: cu ajutorul unui număr impresionant de artişti locali fiecare cameră va fi decorată cu sculpturi…
NEAMȚ: S-a dus să culeagă ghebe şi a găsit un cadavru
www.stiri-neamt.ro - Neamţ
Un bărbat care s-a dus, sâmbătă, la cules de ghebe a găsit cadavrul unei persoane, pe dealul Cernegura din municipiul Piatra-Neamţ. Bărbatul care a făcut
Artist Talk cu Dan Perjovschi, la Comuniteca
www.ebihoreanul.ro - Bihor
În 16 noiembrie, la ora 17, în spaţiul Comuniteca amenajat de Fundaţia Comunitară Oradea în incinta Crişul Shopping Center la etajul 1, ne bucurăm să vă invităm la o întâlnire cu artistul Dan Perjovschi. Desenator, ilustrator, scriitor, jurnalist şi autor de performance român, Dan Perjovschi trăieşte la Bucureşti şi Sibiu. Desenează cu umor direct pe pereţii muzeelor din toată lumea comentând politic, social şi cultural cotidianul societăţii globale. Desenele lui sunt o sinteză între desenul de presă, graffiti, comix şi artă brută.
„Tramvaiul Revoluţiei”, transformat în operă de artă în capitala Banatului!
expressdebanat.ro - Caraş-Severin
„Tramvaiul Revoluţiei” a pornit prin Timişoara! Acesta a fost pictat timp de o săptămână de artiştii de la „Memoriile Cetăţii”, după care a fost trimis pe traseu, iar acum memoria evenimentelor petrecute în urmă cu 30 de ani poate fi admirată de călătorii oraşului.
FOTOGALERIE. Școală ultramodernă în judeţul Satu Mare. Investiţie de milioane de lei
portalsm.ro - Satu Mare
Școală ultramodernă în judeţul Satu Mare. Investiţie de milioane de lei
Ce se întâmplă cu creşterea SALARIILOR, odată cu instalarea noului Guvern: „Se vor ÎNCHIDE FIRME şi vor fi DISPONIBILIZĂRI”
newsar.ro - Arad
Citeşte azi ce scriu ziarele de mâine!
IN MEMORIAM Adrian Păunescu. Pete pe o biografie, nicidecum pe o operă!
ziarulargesul.ro - Argeş
Astăzi se împlinesc nouă ani de când nu mai este printre noi. S-a născut la 20 iulie 1943 în Copăceni, judeţul Bălţi, unde părinţii lui, Constantin şi Floarea, fuseseră trimişi ca tineri învăţători, spun istoriile şi dicţionarele literare; se pare, însă, că adevărul e altul, în ceea ce o...
Spiritul sărbătorilor, din ce în ce mai aproape. S-a dat startul înscrierilor pentru Târgul de Crăciun!
expressdebanat.ro - Caraş-Severin
Cu prilejul sărbătorilor de iarnă, Primăria Municipiului Timişoara, prin Casa de Cultură a Municipiului, organizează cea de-a XIII-a ediţie a Târgului de Crăciun. Ce trebuie să ştie expozanţii care doresc să se înscrie?
Necaz pentru un botoşănean care lucra cu un utilaj la modernizarea unor drumuri. A mers direct la Poliţie
www.botosaninews.ro - Botoşani
...
Ajutoare de urgenţă pentru 13 familii din Teleorman
ziarulteleormanul.ro - Teleorman
299 de familii şi persoane singure aflate în situaţii de necesitate vor primi ajutoare de urgenţă în valoare de 1.073.250 de lei, potrivit unei hotărâri
Elevii Şcolii Gimnaziale Nr. 30, din Braşov, implicaţi în campania „Un copil – un brăduţ”
feedproxy.google.com - Braşov
Regia Naţională a Pădurilor – Romsilva lansează campania „Un copil – Un brăduţ”, prin care îşi propune responsabilizarea copiilor faţă de natură, crearea unei legături trainice cu pădurea, educaţia forestieră prin implicarea acestora în acţiunile de plantare, dar şi socializare. Silvicultorii au fost primii care s-au alăturat acestei campanii şi au achiziţionat brăduţii dar şi
Apel al fanilor dinamovişti: clubul de fotbal Dinamo, cumpărat de suporterii dinamovişti!
ziarulunirea.ro - Alba
Asociaţia Dinamovişti pentru Dinamo anunţă lansarea platformei online care îşi propune să reunească toată suflarea dinamovistă din ţară şi străinătate, cu
Lucrări finalizate pe strada Lânăriei
ziarulargesul.ro - Argeş
Lucrările de reabilitare şi modernizare a străzii Lânăriei I (Veche), din zona staţiei de epurare din cartierul Prundu, au fost finalizate. Hotărârea privind modernizarea acestei străzi fusese luată încă din 2016, dar lucrările au început abia în iulie 2019. Investiţia a fost realizată de...
Campania „Un copil – un brăduţ”, la Şcoala Gimnazială Nr. 30, din Braşov
feedproxy.google.com - Braşov
Regia Naţională a Pădurilor – Romsilva lansează campania „Un copil – Un brăduţ”, prin care îşi propune responsabilizarea copiilor faţă de natură, crearea unei legături trainice cu pădurea, educaţia forestieră prin implicarea acestora în acţiunile de plantare, dar şi socializare. Silvicultorii au fost primii care s-au alăturat acestei campanii şi au achiziţionat brăduţii dar şi
Constanta: Accident rutier la intersectia bulevardului Ferdinand cu strada Atelierelor. Un minor, lovit pe trecerea de pietoni
www.ziuaconstanta.ro - Constanţa
Un minor de 14 ani a fost lovit, in aceasta dimineata, in timp ce traversa pe trecerea de pietoni, la intersectia bulevardului Ferdinand cu strada Atelierelor. Potrivit IPJ Constanta, astazi, in ...
Piaţa Decebal, închisă o zi pentru igienizare
timponline.ro - Bistriţa-Năsăud
Primăria Bistriţa aduce la cunoştinţa cetăţenilor faptul că Piaţa agroalimentară Decebal va fi închisă o zi pentru lucrări de salubrizare şi igienizare.
”Primăria municipiului Bistriţa anunţă că duminică, 10.11.2019, Piaţa agroalimentară Decebal va fi închisă pentru efectuarea lucrărilor de salubriz
SURSE: Primarul şi viceprimarul Focşaniului chemaţi la DNA să dea cu subsemnatul în faţa anchetatorilor
www.jurnaldevrancea.ro - Vrancea
Primarul Cristi Misăilă şi viceprimarul Marius Iorga vor ajunge astăzi în faţa procurorilor de la DNA Galaţi unde vor trebui să dea declaraţii cu privire | Jurnal de Vrancea - Stiri din Vrancea si Focsani
Microsoft Office îmbină Word, Excel şi PowerPoint pe iOS şi Android
www.tion.ro - Timiş
Doriţi să puneţi Microsoft Office pe un dispozitiv iOS sau Android? În curând, nu va mai trebui să descărcaţi versiuni individuale ale Word, Excel şi PowerPoint pentru a le folosi.
Consilierii locali convocaţi în sedinţă extraordinară
www.jurnaldevrancea.ro - Vrancea
Consiliul Local al municipiului Focşani a fost convocat în sedinţă extraordinară, marţi, cu începere de la ora 16:00, după ce joia trecută consilierii PSD | Jurnal de Vrancea - Stiri din Vrancea si Focsani
Raliu pentru amatori la Râşnov
feedproxy.google.com - Braşov
După ce în sezonul patru, populara competiţie dedicată exclusiv amatorilor, a părăsit oraşul în care a fost organizat pentru prima oară, sezonul al cincilea marchează extinderea conceptului Promo Rally către un alt oraş al Judeţului Braşov, respectiv Râşnov, dar şi către alt Judeţ, Harghita (Odorheiu Secuiesc). „Suntem extrem de bucuroşi că am reuşit să ieşim
Premiera spectacolului „Take, Ianke şi Cadîr”, la Luduş
www.zi-de-zi.ro - Mureş
Sala Mare a Casei de Cultură „Pompeiu Hărăşteanu” din Luduş, a găzduit duminică, 3 noiembrie, premie
10 medalii pentru elevii Colegiului Militar „Mihai Viteazul” la Campionatul Naţional de Karate
ziarulunirea.ro - Alba
A fost un weekend plin de medalii pentru elevii militari pregătiţi de domnul profesor Florin Grozav, aceştia reuşind să obţină în total 10 medalii (6 de
”Vrei un tur 2 fără PSD? Votează Dan Barna!”
timponline.ro - Bistriţa-Năsăud
(PE) Dacă vrei un tur 2 fără PSD, votează Dan Barna, candidatul Alianţei USR PLUS. Lupta dintre noi şi PSD este extrem de strânsă.
Pentru PSD, turul 2 la prezidenţiale este încă o şansă, probabil ultima înainte de colaps. Pentru noi este şansa de a continua schimbarea pe care am început-o în prim
Câţi bani primeşte de la stat stat sub formă de subvenţii ONG-ul bisericii ortodoxe
timponline.ro - Bistriţa-Năsăud
Asociaţia Filantropia Ortodoxă filiala Bistriţa-Năsăud este singurul ONG care primeşte bani de la stat pentru subvenţionarea activităţii în centrele de bătrâni de la Cuşma, Târlişua şi Maieru.
În total, în baza Legii 34/1998, statul va finanţa aceste trei centre cu suma de 258.000 de lei.
Câţi bani primeşte de la stat stat sub formă de subvenţii ONG-ul bisericii ortodoxe
timponline.ro - Bistriţa-Năsăud
Asociaţia Filantropia Ortodoxă filiala Bistriţa-Năsăud este singurul ONG care primeşte bani de la stat pentru subvenţionarea activităţii în centrele de bătrâni de la Cuşma, Târlişua şi Maieru.
În total, în baza Legii 34/1998, statul va finanţa aceste trei centre cu suma de 258.000 de lei.
Administraţia Bibarţ îşi dă cu stângul în dreptul. Șoferii sunt vânaţi, deşi nu au unde parca
newsar.ro - Arad
Citeşte azi ce scriu ziarele de mâine!
Constanta. 1500 de sportivi din peste 50 de tari au participat la Campionatul Mondial de Skandenberg. Cine sunt castigatorii
www.ziuaconstanta.ro - Constanţa
In perioada 26 octombrie - 4 noiembrie 2019, aproximativ 1500 de sportivi din peste 50 de tari au participat la cea de-a 41-a editie a Campionatului Mondial de Skandenberg si a 22-a serie a Campionatului ...
CAO va sista furnizarea apei potabile in data de 05.11.2019, intre orele 10:00 – 16:00, in zona cuprinsa intre str. Calea Bucuresti, str. A.I.Cuza, str. Aries, str. Caracal, Bld. Decebal, Cartierul Lapus
www.oltenasul.ro - Dolj
Related Posts via CategoriesPrimăria Craiova ACORDĂ O IMPORTANȚĂ MAJORĂ ÎNVĂȚĂMÂNTULUIPiaţă Volantă şi săptămâna aceasta, în centrul CraioveiPrimăria Craiova acordă facilităţi fiscale pentru obligaţiile bugetare restante la 31.12.2018SC Termo Craiova SRL dă drumul la căldură din această seară în Craiova, în regim permanentCJ Dolj: Vizită pe şantier, la Muzeul Cărţii şi Exilului Românesc. Lucrările, realizate în proporţie de 30 la sutăPreşedintele […]
Vremea este deosebit de caldă pentru luna lui Brumar
www.gazetadambovitei.ro - Dâmboviţa
PROGNOZA METEOROLOGICĂ PENTRU INTERVALUL 05.11.2019 ORA 08 – 06.11.2019 ORA 08 Vremea va fi deosebit de caldă pentru această dată,
FOTO: Noua şcoală din Iernut şi-a deschis porţile
www.zi-de-zi.ro - Mureş
Cu două luni în urmă, primarul oraşului Iernut, Ioan Nicoară, anunţa că intenţionează schimbarea des
Serviciul de stare civila Constanta. Publicatii de casatorie 01 noiembrie 2019
www.ziuaconstanta.ro - Constanţa
Tapalan Gheorghe Daniel Voiniciyc Veronica Trandafir Alexandru Paul Ivascu Irina Halmagean Alexandru Catalin Vandachievici Corina Vanda Balan Iulian Ene Lidia Florentina Deoarece suntem un ...
Spiritul sărbătorilor, din ce în ce mai aproape. Încep înscrierile pentru Târgul de Crăciun!
expressdebanat.ro - Caraş-Severin
Cu prilejul sărbătorilor de iarnă, Primăria Municipiului Timişoara, prin Casa de Cultură a Municipiului, organizează cea de-a XIII-a ediţie a Târgului de Crăciun. Ce trebuie să ştie expozanţii care doresc să se înscrie?
342 de copii parasiti in maternitati si unitati sanitare in 2018, numar in scadere cu 17%
ziarmm.ro - Maramureş
Numarul copiilor parasiti in maternitati si in alte unitati sanitare a scazut in primul semestru din 2019 cu 69 (17%), comparativ cu perioada similara a anului trecut, la 342 de copii, conform datelor
Clubul ”Red Dragon”, 9 titluri la Cupa României de Ju-Jitsu
www.zi-de-zi.ro - Mureş
Sportivii Clubul ”Red Dragon” din Reghin, antrenaţi de Gyori Tiberiu Ștefan, au participat în perioa
Roşu-n suflet: Scandal la PNL Beiuş, după ce un consilier local a mers s-o aplaude pe Dăncilă
www.ebihoreanul.ro - Bihor
Vizita pe care şefa PSD, Viorica Dăncilă, a făcut-o joia trecută la Beiuş se lasă cu scandal şi în organizaţia locală a… PNL. Sâmburele discordiei este isprava unui consilier local PNL-ist, Ioan Sferle, un profesor de educaţie fizică, fost membru PSD, dar adus între liberali de fostul primar Adrian Domocoş, iar săptămâna trecută prezent la adunarea susţinătorilor lui Dăncilă desfăşurată la fostul Teatru al Armatei din Beiuş.
Guvernul Orban este primul guvern liberal după perioada interbelică. Marţi e prima zi de muncă
www.oradesibiu.ro - Sibiu
Guvernul Orban este al şaselea guvern din ultimii cinci ani şi primul guvern liberal după perioada interbelică. După mai bine de 80 de ani liberalii guvernează singuri. ultimul guvern de dreapta a fost condus până în 1937 de Gheorghe Tătărescu, scrie digi24.ro. Cabinetul liberalului Ludovic Orban va avea prima şedinţă…
„Fimo Meşterit de Codru”, bucuria de final a poveştii ”Handmade in Reghin – De la Hobby la Antreprenoriat”
www.zi-de-zi.ro - Mureş
În toamna anului trecut, Alexandrina Biriş şi Diana Bejan puneau bazele unui proiect inedit intitula
Șase zimbri din Rezervaţia Vama Buzăului urmează să ajungă în sălbăticie, în judeţul Argeş
feedproxy.google.com - Braşov
Zimbrii crescuţi în Rezervaţia Vama Buzăului, din judeţul Braşov sunt lasaţi în număr tot mai mare în libertate. În perioada următoare trei femele şi trei masculi vor fi relocaţi în pădurile din judeţul Argeş. Prin proiectul de repopulare a lanţului Carpatic, din care face parte şi Rezervaţia Naturală Valea Zimbrilor din Vama Buzăului, au fost
feedproxy.google.com - Braşov
După ce în sezonul patru, populara competiţie dedicată exclusiv amatorilor, a părăsit oraşul în care a fost organizat pentru prima oară, sezonul al cincilea marchează extinderea conceptului Promo Rally către un alt oraş al Judeţului Braşov, respectiv Râşnov, dar şi către alt Judeţ, Harghita (Odorheiu Secuiesc). „Suntem extrem de bucuroşi că am reuşit să ieşim
Politia in alerta, dupa ce o persoana a anuntat la 112 ca mai multi morti s-ar afla intr-un camion frigorific
www.ziuaconstanta.ro - Constanţa
Politistii cauta autorul unui apel telefonic la numarul 112 care a anuntat, luni seara, ca pe autostrada Arad - Timisoara se afla un camion frigorific in care sunt sapte-opt cadavre umane. ...
Tradiţii la Braşov. Îngroparea vătafului junilor Dorobanţi
feedproxy.google.com - Braşov
Îngroparea Vatafului al Grupului Junilor Dorobanti este un vechi obicei tradiţional din Scheii Brasovului, care are loc cu preponderenta toamna, cand majoritatea evenimentelor junilor se termină. Cel care este vătaf, adică conducătorul grupului în anul in curs, este „îngropat” de viu. Ritualul presupune ca acesta să fie pus pe o scara, i se aduce o
NEAMȚ: Avarii ApaServ! Zonele care rămân, astăzi, fără apă (5 noiembrie)
www.stiri-neamt.ro - Neamţ
Pe parcursul zilei vom actualiza articolul în funcţie de anunţurile Companiei ApaServ Pentru remedierea unei avarii ĺa reteaua de distributie a apei
Biserica din parohia Băla, resfinţită de Înaltpreasfinţitul Părinte Irineu
www.zi-de-zi.ro - Mureş
Înaltpreasfinţitul Părinte Irineu, Arhiepiscop al Alba Iuliei, a fost prezent duminică, 3 noiembrie
Se poate împăca statul cu privatul?
ziarulargesul.ro - Argeş
În ultimii ani, în România s-a produs o fisură puternică între stat şi mediul privat. Fie numai dacă ne gândim la salariile care parcă au luat-o razna (în sus) la stat, în vreme ce mediul privat e sufocat de o fiscalitate excesivă, şi tot ne dăm seama de discrepanţele uriaşe din societate...
MFP redeschide in noiembrie o emisiune de obligatiuni in euro in suma de 200 milioane euro
ziarmm.ro - Maramureş
Ministerul Finantelor Publice a programat, in data de 6 noiembrie, redeschiderea unei emisiuni de obligatiuni de stat cu cupon denominate in euro in valoare de 200 milioane euro, informeaza AGERPRES.
NEAMȚ: Bani pentru nemţenii cărora le-au ars casele
www.stiri-neamt.ro - Neamţ
Guvernul a aprobat, ieri, printr-o hotărâre, acordarea de ajutoare de urgenţă în sumă totală de 1.073.250 lei pentru sprijinirea unui număr total de 299
Cine va fi noul prefect de Botoşani. Pe cine vrea să numească PNL!
www.botosaninews.ro - Botoşani
...
Duminică, alegeri prezidenţiale. 313 secţii de votare în BN. Cum arată buletinul de vot
timponline.ro - Bistriţa-Năsăud
Duminică 10 noiembrie, între orele 7.00 – 21.00, în ţară se vor desfăşura alegerile prezidenţiale, primul tur de scrutin. Alegătorii care la ora 21.00 se vor afla la secţiile de vot, precum şi cei care se vor afla la rând în afara secţiei vor putea să îşi exercite dreptul de vot până la ora 23.59.
FOTO Dorel „loveşte“ din nou la Botoşani. Trecerile de pietoni care dau în şanţuri adânci: „Ne căţărăm pe zebră cum putem“
www.botosaninews.ro - Botoşani
...
Capitala Indiei interzice accesul unora dintre vehicule, incercand sa combata poluarea aerului
ziarmm.ro - Maramureş
Autoritatile din capitala Indiei, New Delhi, au interzis luni accesul pe strazile orasului pentru vehiculele ale caror numere de inmatriculare se termina cu numere impare, incercand astfel sa reduca p
Accident rutier in Navodari. Un pieton, lovit pe trecere (galerie foto)
www.ziuaconstanta.ro - Constanţa
Un accident rutier s-a produs, marti dimineata, in centrul orasului Navodari, langa Biserica Sfanta Treime. O persoana, de sex feminin, a fost lovita in timp ce traversa pe trecerea de pietoni. ...
Un soţ bătăuş a încălcat ordinul de protecţie… de foame
www.botosaninews.ro - Botoşani
...
Viorel Viţelariu s-a retras din fruntea Sanitas Bistriţa-Năsăud. Cine e noul lider
timponline.ro - Bistriţa-Năsăud
Sindicatul Judeţean Sanitas Bistriţa-Năsăud are o nouă conducere, fostul lider judeţean Viorel Viţelariu retrăgându-se din fruntea organizaţiei sindicale după 27 de ani de activitate.
Potrivit unui comunicat al organizaţiei, delegaţii la cea de-a VIII-a Conferinţă a Sindicatului Judeţean Sanitas
Ghid ANCOM: Furnizorii de servicii de acces la internet, obligati sa includa in contractele cu utilizatorii detalii despre vitezele de acces
ziarmm.ro - Maramureş
Furnizorii de servicii de comunicatii sunt obligati sa includa in contractele cu utilizatorii mai multe detalii privind vitezele de acces, precum si procedura pe care consumatorii o pot urma pentru a
Înainte să plece, Dăncilă i-a oferit un post fostului lider ALDE Botoşani, Liliana Mincă
www.botosaninews.ro - Botoşani
...
IA, primul asistent virtual muzeal din România, la Casa Mureşenilor
feedproxy.google.com - Braşov
Primul asistent virtual muzeal bazat pe inteligenţă artificială din România a fost inaugurat luni, la Muzeul Casa Mureşenilor, din Braşov. Asistentul poartă numele de IA şi este programată să răspundă la întrebări despre Braşov, muzeu şi familia Mureşanu, să utilizeze gesturi şi expresii faciale prietenoase pentru a-i atrage pe vizitatori. IA are capacitatea de a
Consiliul Judetean Maramures aloca peste 550.000 lei din rezerva bugetara. Pentru ce vor fi folositi
ziarmm.ro - Maramureş
La sedinta ordinara din 29 octombrie, consilierii judeteni au aprobat utilizarea din rezerva bugetara constituita la dispozitia Consiliului judetean Maramures a sumei de 550.000,44 lei pentru finantar
Bolojan, lămureşte-ne! Cine are dreptate la Spitalul Municipal Oradea? Managerul Foncea şi directorul medical Burtă se acuză reciproc
www.ebihoreanul.ro - Bihor
Acuzat că duce Spitalul Municipal Oradea în faliment şi că persecută anumiţi medici, managerul Dacian Foncea a reacţionat printr-un comunicat în care acuză „minciuni” răspândite pe seama sa de angajaţi care au comis „fărădelegi”. Despre unul dintre aceştia, directorul medical dr. Ovidiu Burtă, care i-a cerut primarului Ilie Bolojan să îl demită pe manager, Foncea afirmă că ar fi derulat 'la negru' un studiu pentru testarea de medicamente pe pacienţii spitalului.
Primar, condamnat la inchisoare pentru pornografie infantila
www.ziuaconstanta.ro - Constanţa
Primarul comunei Sotrile din Prahova a fost condamnat, luni, de Curtea de Apel Ploiesti la un an si sase luni de inchisoare pentru pornografie infantila, pedeapsa fiind redusa fata de cea pronuntata ...
Autostrada Ploieşti – Braşov, „în aer”. Noul guvern nu susţine realizarea acesteia în parteneriat cu chinezii
feedproxy.google.com - Braşov
Proiectul cu chinezii pentru Autostrada Ploieşti – Comarnic – Braşov nu a mai apucat să fie aprobat de către Guvernul PSD demis. Cum noul Guvern PNL nu susţine varianta cu partenerii asiatici, rezultă încă mulţi ani pierduţi pentru şoseaua de mare viteză care ar trebui să preia din traficul de pe unul dintre cele mai
Foştii proprietari Delaco, după extinderea brandului Cartofisserie, lansează MA Pizza şi Ceaun Restaurant
feedproxy.google.com - Braşov
Foştii proprietari Delaco, fraţii Tudor şi Dragoş Comăniciu, care au preluat recent centrul comercial Magnolia Center din Braşov şi şi-au extins afacerea cu cartofi prăjiţi, lansată în 2006, dar menţinută până recent doar la nivel local, în Braşov, intră acum şi pe nişa de restaurante şi pizzerii. Ei au semnat actele pentru lansarea firmei MA
Costică Macaleţi, despre alegerile prezidenţiale: PSD va câştiga alegerile la Botoşani la o diferenţă mare
www.botosaninews.ro - Botoşani
Preşedintele Consiliului Judeţean şi vicepreşedinte al Biroului Executiv Judeţean a PSD, Costică Macaleţi, susţine că PSD va câştiga, duminică, alegerile prezidenţiale în judeţul Botoşani. Acesta apreciază că Viorica Dăncilă, candidatul PSD va intra în turul doi al alegerilor pentru Preşedintele României. ”Alegerile le va câştiga la o diferenţă mare PSD la Botoşani. Nu aş putea …
Măsura mediocrităţii sau Aradul pus la colţ în Guvernul Orban
newsar.ro - Arad
Citeşte azi ce scriu ziarele de mâine!
STUDIU: Viitorul INCERT al democraţiei? Majoritatea românilor se tem pentru dreptul lor la liberă exprimare şi că vor suferi consecinţe în plan personal în cazul în care critică autorităţile
ziarulunirea.ro - Alba
Potrivit cotidianului britanic The Guardian, majoritatea cetăţenilor din centrul şi estul Uniunii Europene, inclusiv din România, sunt îngrijoraţi în
Rectificarea bugetară de la Caransebeş ajută spitalul şi şcolile
expressdebanat.ro - Caraş-Severin
Primăria Caransebeş, cu aprobarea Consiliului Local, a reuşit să împartă banii pe care Guvernul Dăncilă i-a acordat UAT-urilor chiar cu o zi înainte să fie demis.
Domeniul în care firmele din Bistriţa-Năsăud au făcut cel mai mare profit
timponline.ro - Bistriţa-Năsăud
Firmele din Bistriţa-Năsăud care au făcut cel mai mare profit reprezintă 2,33% din totalul companiilor din judeţ. Sunt 686 în total, au avut toate la un loc o cifră de afaceri de 133,6 milioane de euro şi au făcut împreună un profit de 17,6 milioane de euro în 2018.
Potrivit unor site-uri specia
METEO: Vremea rămâne caldă în Neamţ. Prognoza meteo (5–6 noiembrie)
www.stiri-neamt.ro - Neamţ
Vremea a continuat să se încălzească în regiunea Moldovei, devenind deosebit de caldă pentru începutul lunii noiembrie. Cerul a fost temporar noros dar
TABLETA DE MARȚI – Puiu JIPA – Ce mi-e Guvern, ce mi-e Jules Verne
www.gazetadambovitei.ro - Dâmboviţa
E o anecdotă cu Iţic care se duce la rabin, plîngîndu-se că nu mai au loc în casă, el, Rachela,
Un codlean, preşedinte federal al Asociaţiei Saşilor Transilvaneni din Germania
feedproxy.google.com - Braşov
Codleanul Rainer Lehni (47 ani) a fost ales sâmbătă, 2 noiembrie, preşedinte federal al Asociaţiei Saşilor Transilvaneni din Germania. În contextul celor 70 de ani de existenţă a asociaţiei, atmosfera de lucru a acesteia se desfăşoară constructiv şi cu speranţe pentru viitorul comun, organizaţia fiind foarte activă pe plan internaţional. Bernd Fabritius, unul din foştii
Autostrada Ploieşti – Braşov, „în aer”. Noul guvern nu susţine realizarea acesteia în cu chinezii
feedproxy.google.com - Braşov
Proiectul cu chinezii pentru Autostrada Ploieşti – Comarnic – Braşov nu a mai apucat să fie aprobat de către Guvernul PSD demis. Cum noul Guvern PNL nu susţine varianta cu partenerii asiatici, rezultă încă mulţi ani pierduţi pentru şoseaua de mare viteză care ar trebui să preia din traficul de pe unul dintre cele mai
”Este de-a dreptul de nedescris!” Centura de sud a Timişoarei, blocată de orgolii regionale?
expressdebanat.ro - Caraş-Severin
Varianta de sud a centurii de ocolire a Timişoarei stagnează de un an de zile la stadiul de avize şi exproprieri. Dacă preşedintele CJT Călin Dobra spune că s-a reconfigurat traseul pentru a deservi cât mai bine şi comunele din zona periurbană, deputatul PRO România Adrian Pau lansează o ipoteză de tip teorie a conspiraţiei, cum că conducerea Direcţiei Regionale de Drumuri şi Poduri Timişoara ar sabota proiectul centurii, în defavoarea judeţului Arad!
Aniversaţii zilei de 5 noiembrie
www.botosaninews.ro - Botoşani
...
Explicaţia specialiştilor pentru cazul femeii din Botoşani care şi-a ucis fiul, apoi şi-a atacat soţul. Cum s-a întâmplat şi de ce ar suferi
www.botosaninews.ro - Botoşani
...
Veste proastă pentru şoferi: Cu cât ar putea creşte amenzile în 2020
www.botosaninews.ro - Botoşani
...
Infotrafic: Continua restrictiile de circulatie pe Autostrada Soarelui. Cat vor dura lucrarile
www.ziuaconstanta.ro - Constanţa
Centrul INFOTRAFIC din Inspectoratul General al Politiei Romane informeaza ca la aceasta ora nu sunt anuntate drumuri nationale sau autostrazi cu circulatia oprita din cauza vreunui eveniment rutier, ...
Pătraşcu, preşedinte PSD Municipiul Braşov: „Românii pot evalua singuri situaţia ţării lor şi pot lua decizia cea mai corectă, la vot”
feedproxy.google.com - Braşov
România are una dintre cele mai mici datorii publice din U.E: 34,2% din PIB. O confirmă Eurostat, care contrazice, în acest fel, una dintre cele mai vehiculate minciuni ale ultimilor ani, că PSD ar fi îndatorat ţara. ”Încă din prima zi a guvernării PSD, maşinăria propagandistică s-a pus în mişcare pentru a eroda imaginea partidului
Conacul fantomă din Banat. Imobilul care îşi duce zilele pe o mină de aur
expressdebanat.ro - Caraş-Severin
Încă o bijuterie arhitecturală dată uitării şi sfâşiată de interese obscure. Țara în care istoria se aruncă la gunoi.
La Bistriţa apar primele case smart. Unde se află şi ce dotări vor avea
timponline.ro - Bistriţa-Năsăud
Trei case smart se construiesc în premieră şi la Bistriţa, ceea ce înseamnă că vor putea fi controlate de la distanţă de pe telefonul mobil instalaţia electrică, centrala termică sau sistemul de irigare.
”Conceptul arhitectural propune un raport echilibrat între suprafaţa construită (155.61 m2 c
O decizie-doua schimbari. Sef nou la Departamentul pentru Lupta Antifrauda. Cine a plecat cine a venit
www.ziuaconstanta.ro - Constanţa
Aseara, in Monitorul Oficial al Romaniei partea I numarul 890 a fost publicata de cizia prin care Bogdan Ionut Dintoi a fost numit sef al DLAF.
Maşină implicată într-un accident rutier pe strada Libertăţii din Bistriţa
timponline.ro - Bistriţa-Năsăud
O maşină în care se aflau două persoane şi care rula în noaptea de luni spre marţi pe strada Libertăţii din Bistriţa a fost implicată într-un accident rutier. Potrivit Inspectoratului pentru Situaţii de Urgenţă Bistriţa, victimele au ieşit singure din autoturism până la sosirea echipajelor de interv
Revista presei locale
www.ziuaconstanta.ro - Constanţa
Revista presei locale